Poslovni prostor za izdavanje, Durmitorska, 8.481€, 289m²
























































8.481 €
- Prizemlje
- Renovirano
- Prostorije: toaleti (2)
- Opremljenost: klima
- Oglas oglašava agencija pod reg. brojem 1219
- 1 lift
Opis oglasa
Na jednoj od najtraženijih poslovnih lokacija na Savskom vencu, u blizini ulice Kneza Miloša, kompleksa Skyline i glavnih saobraćajnih pravaca, nalazi se poslovni prostor za izdavanje u renoviranoj poslovnoj zgradi sa recepcijom i odličnom infrastrukturom. Pozicija omogućava jednostavan pristup centru grada, Mostarskoj petlji, Novom Beogradu i železničkoj stanici, što ovaj deo čini izuzetno pogodnim za kompanije kojima je važna dostupnost i profesionalno okruženje.
Zgrada je u odličnom stanju, renovriana, sa dva ulaza, kartičnim pristupom, kontrolom ulaza i kompletnim video nadzorom, dok uređene zajedničke površine pružaju prijatan i reprezentativan ambijent za zaposlene i klijente.
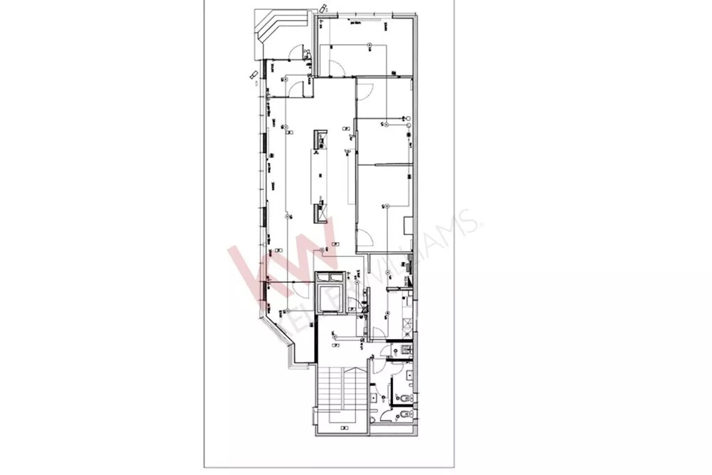
Ukupne površine 289 m², prostor je organizovan na dva nivoa – prizemlje i visoko prizemlje, pri čemu visoko prizemlje poseduje i zaseban ulaz, što daje dodatnu fleksibilnost različitim tipovima organizacija.
Prvi nivo (visoko prizemlje)
Ovaj deo prostora karakterišu širina, otvorenost i visok kvalitet enterijera. Najdominantnija zona je prostrana, reprezentativna recepcija, savršena za kompanije koje žele snažan prvi utisak — od ekspozitura banaka do većih sistema sa značajnim brojem klijenata.
Drugi nivo (prizemlje)
Na ovom nivou nalaze se kancelarije raspoređene tako da prate tok svakodnevnog poslovanja, kao i toalet i kuhinja. Drugi ulaz pruža mogućnost odvajanja timova, poslovnih celina ili različitih funkcija u okviru iste kompanije.
Glavne pogodnosti prostora
- Renoviran, odmah useljiv
- Dva ulaza + kartični pristup
- Video nadzor i kontrola ulaza
- Odlična organizacija prostora
- Grejanje na toplotne pumpe + klima
Uslovi zakupa
- Add-on faktor: 11%
- Service charge: 4,9 €/m² (add on faktor i service sharge su uključeni u navedenu cenu zakupa)
- PDV se obračunava na zakupninu
- Vlasnik je pravno lice
Ovaj poslovni prostor u blizini Kneza Miloša i Skyline-a nudi idealan balans prestižne lokacije, sigurnosti i funkcionalnosti — odličan izbor za kompanije koje žele kvalitetan i profesionalan radni prostor na Savskom vencu.
Za više informacija i zakazivanje gledanja, kontaktirajte nas — rado ćemo vam predstaviti prostor.
*Sačuvaj oglas uz belešku i primaj obaveštenja o njihovom pojeftinjenju ili pojavljivanju sličnih
Prikaz poslovnog prostora na mapi
Parkovi u blizini
- Park Lepi izgled5 min
- Savski park10 min
- Park Hajduk Veljkov venac12 min

Obeležja kulture u blizini
- Spomenik caru Dušanu Silnom5 min
- Spomenik Vojvodi Radomiru Putniku6 min
- Spomenik Stefanu Nemanji7 min

Škole/Fakulteti/Vrtići u blizini
- Osnovna škola (Osnovna škola Radojka Lakić)5 min
- Srednja škola (Škola za brodarstvo, brodogradnju i hidrogradnju)7 min
- Vrtić (Predškolska ustanova Montesori)3 min
- Fakultet (Futura fakultet za primenjenu ekologiju)4 min

- Bolnica (Opšta bolnica Euromedik)4 min
- Klinika (Poliklinika Rea Medika)5 min
- Teretana (Fitness centar Sport Active)2 min
- Prodavnica (Shop&Go)1 min
- Restoran (Sushi bar Sushi Factory)2 min
- Kafana (Kafana Kod Glumca)5 min
- Taksi stajalište (Taxi stanica)6 min
- Autobuska stanica (Drinska)2 min
- Tramvajska stanica (Savski Trg)14 min
- Trolejbuska stanica (Višegradska)4 min
- Banka (Eurobank Direktna)2 min
- Pošta (Pošta Beograd 115)4 min
Kontakt oglašivača
Keš krediti
Period otplate
13 meseci
