Poslovni prostor za izdavanje, Njegoševa 56, 3.500€, 1400m²
























3.500 €
mesečno
- Prizemlje od ukupno 1 sprat
- Renovirano
- Prostorije: kupatila (2), toaleti (2), kuhinja, ostava
- Opremljenost: Prazno - internet, centralna klima, ventilacija
- Pogled na: ulicu
- Izdavanje direktno od vlasnika
- 40 parking mesta, parking u dvorištu zgrade
- Godina izgradnje: 2008.
- Objekat poseduje: prilaz za invalide, dvorište, ventilacija
- Tip interneta: optički
- 1 telefonska linija
Opis oglasa
POSLOVNA PONUDA
IZDAJE SE LOKAL U ZAKUP U LESKOVCU
LOKAL SE NALAZI U ULICI NJEGOSEVA BB U INDUSTRISKOJ ZONI U LESKOVCU
GDE SE NALAZE LOKALI VECE KVADRATURE .
LOKALI NEPOSREDNO PORED OBJEKTA
OMW PUMPA , NIJANSA BULDING CENTAR ,EXPERT BELA TEHNIKA ,DONDON
PEKARA ,TERMO STIL, EXPERT STIL PLOCICE ITD…
U PONUDJENOM LOKALU SU BILI ZAKUPCI
ALBI CENTAR, ENMON PLOCICE 5 GODINA, GALI NAMESTAJ 3 GODINA,
FORMA IDEALE 7 GODINA ,DIT-S NAMESTAJ 6 GODINA .
LOKAL U PONUDI OD 01.05.2026.
Plac 20 ari vlasnik 1/1
Dozvola sa svim komunalijama, upotrebna dozvola
Asfalt . 40 Parkinga .
Prikljucak trafo stanica 50 kw merna grupa
LOKAL U PRIZEMLJU OD 800 DO 1400.M2
KANCELARISKI PROSTOR
PRIKLJUCAK GAS
KLIMATIZOVAN KLIMA UREDJAJIMA
TEL – INTERNET
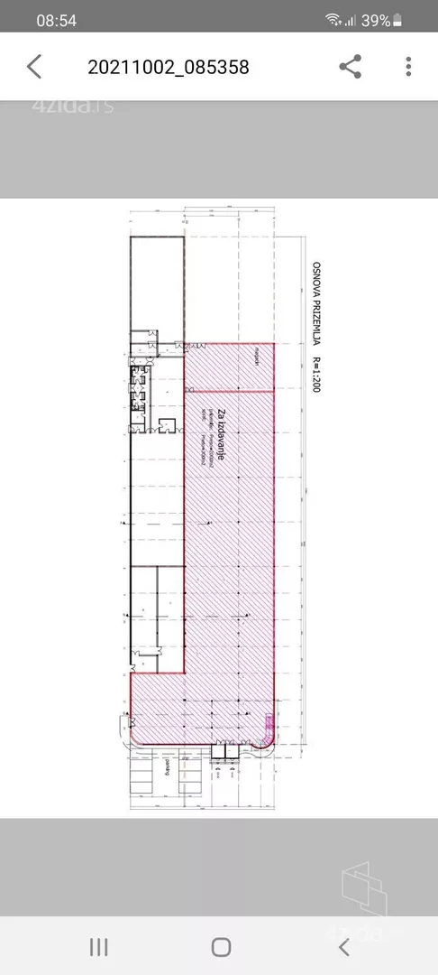
U PRILOGU SALJEM SLIKE OBJEKTA I SEMU –OSNOVE LOKALA
VLASNIK OBJEKTA RISTIC LJUBISA KONTAKT 065... (prikaži broj telefona) [email protected]
*Sačuvaj oglas uz belešku i primaj obaveštenja o njihovom pojeftinjenju ili pojavljivanju sličnih
Prikaz poslovnog prostora na mapi
Parkovi u blizini
- Gradski park Leskovac23 min
- Park Devet Jugovića33 min
- Spomen park Leskovac39 min

Obeležja kulture u blizini
- Kuća Šop Đokića5 min
- Spomenik Tomi Zdravkoviću6 min
- Spomen kuća Koste Stamenkovića15 min

Škole/Fakulteti/Vrtići u blizini
- Osnovna škola (Osnovna škola Vuk Karadžić)5 min
- Srednja škola (Srednja škola za tekstil i dizajn)10 min
- Vrtić (Dečiji vrtić Bambi)5 min
- Fakultet (Visoka tehnološko umetnička strukovna škola Leskovac)10 min

- Bolnica (Opšta bolnica Leskovac)8 min
- Klinika (Poliklinika Nova Medica)5 min
- Teretana (Fitness club XL)5 min
- Prodavnica (Aman market)11 min
- Restoran (Restoran Park)7 min
- Kafana (Murphy's Pub)17 min
- Taksi stajalište (Taxi stanica)22 min
- Autobuska stanica18 min
- Banka (Raiffeisen Bank)14 min
- Pošta (Pošta Leskovac 3)13 min
Kontakt oglašivača
Krediti OTP banke
Period otplate
13 mesecimesečno
Period otplate 13 - 71 mesec
Saznaj više