Ordinacija za izdavanje, Venizelosova, 1.400€, 138m²
































































































































1.400 €
mesečno
Za ovaj oglas se neko interesovao. Pozovi ranije kako ne bi propustio priliku.
- Obavezan depozit
- Na 1. spratu od ukupno 3 sprata
- Luksuzno
- Prostorije: kupatila (2), terasa
- Oglas oglašava agencija pod reg. brojem 758
- 1 lift
Opis oglasa
U neposrednoj blizini novog kondominijuma NOVI DORĆOL, u maloetažnoj zgradi novije gradnje, na raspolaganju je izuzetan stan u formi odlično organizovanog poslovnog prostora.
Izuzetna pozicija, nadomak starog gradskog jezgra, sa lakom dostupnošću raznovrsnim sadržajima komercijalno-uslužnog karaktera, administrativnim punktovima, kao i velikom broju linija javnog prevoza.
Stan je smešten na idealnom I spratu trospratnice sa liftom.
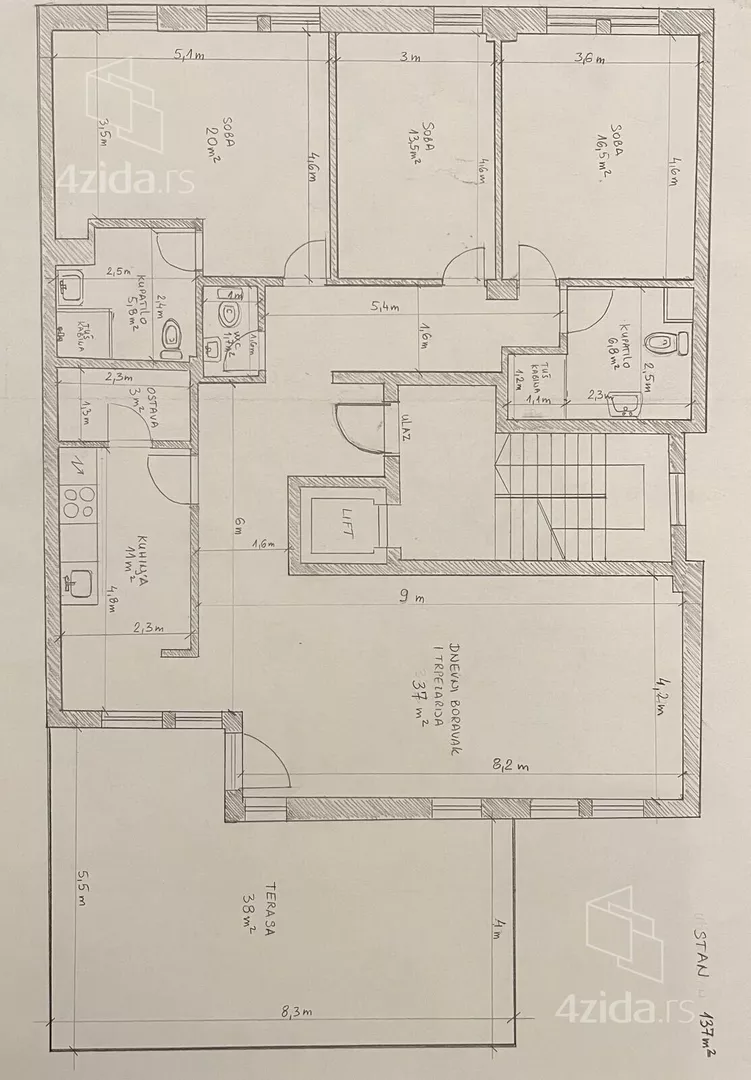
Sastoji se od:
ulaznog antrea iz kog se pristupa svim prostorijama;
velikog dnevnog boravka / kancelarije / ordinacije sa pripadajućom terasom od 45 m² (dvorišna, mirna orijentacija);
zasebne, prostrane kuhinje sa trpezarijom u celini i ostavom;
spavaćeg bloka koji čine tri veće sobe / kancelarije / ordinacije, dva kupatila i gostinjski toalet.
Dvostrano orijentisan, svetao, sa idealno profilisanom strukturom za poslovanje, predstavlja pravi izbor za širok spektar delatnosti administrativnog i uslužnog karaktera, IT kompanije i slično. Naročito je pogodan za sve vrste medicinskih delatnosti: poseduje laminat, izvedene umivaonike po sobama / ordinacijama, visinu plafona h = 2,85 m, dva kupatila i WC (ispunjava kompletnu uslovnost za obavljanje medicinskih delatnosti).
ODLIČAN! ZA PREPORUKU!
Dodatna mogućnost: zakup jednog nameštenog stana od 37 m², na II spratu iste zgrade, za potrebe stanovanja ili dodatnog poslovnog proširenja.
TROŠKOVI:
Infostan: 24.000 RSD mesečno (od sledeće grejne sezone uvode se kalorimetri);
struja po potrošnji;
SBB ili MTS optika – zakupac uvodi na svoje ime;
čišćenje, održavanje zgrade i lifta + upravnik: 30 € mesečno.
*Sačuvaj oglas uz belešku i primaj obaveštenja o njihovom pojeftinjenju ili pojavljivanju sličnih
Prikaz poslovnog prostora na mapi
Parkovi u blizini
- Pančićev park11 min
- Univerzitetski park14 min
- Park Vojvode Vuka17 min

Obeležja kulture u blizini
- Spomenik putujućem glumcu5 min
- Sebilj česma5 min
- Spomenik despotu Stefanu Lazareviću8 min

Škole/Fakulteti/Vrtići u blizini
- Osnovna škola (Osnovna škola Skadarlija)6 min
- Srednja škola (Prva beogradska gimnazija)5 min
- Vrtić (Predškolska ustanova Peekaboo)4 min
- Fakultet (Fakultet za menadžment malih i srednjih preduzeća)8 min

- Bolnica (Bolnica za estetsku i rekonstruktivnu hirurgiju Orea)4 min
- Klinika (Poliklinika Endo Top)5 min
- Teretana (Fitness centar Beogym)4 min
- Prodavnica (Moj špajz - prodaja domaće hrane)2 min
- Restoran (Restoran Trag)manje od 1 min
- Kafana (Pab Gradska priča)4 min
- Taksi stajalište (Taxi stanica)4 min
- Autobuska stanica (Gundulićev Venac)3 min
- Tramvajska stanica (Pijaca Skadarlija)4 min
- Trolejbuska stanica (Makedonska)10 min
- Banka (Raiffeisen Bank)5 min
- Pošta (Pošta Beograd 36)6 min
Kontakt oglašivača
Za ovaj oglas se neko interesovao. Pozovi ranije kako ne bi propustio priliku.
Krediti OTP banke
Period otplate
13 mesecimesečno
Period otplate 13 - 71 mesec
Saznaj više
