Lokal za izdavanje, Marka Oreškovića, 2.900€, 146m²
Beograd, Zvezdara opština, Đeram
Prikaži mapuŠifra oglasa: 4zida-4012Oglas ažuriran: pre 3 dana


2.900 €
Lokal
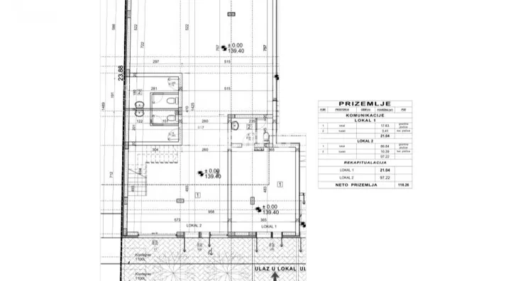
146 m²
Prazno
- Prizemlje od ukupno 5 spratova
- Renovirano
- Oglas oglašava agencija pod reg. brojem 391
- 1 telefonska linija
Opis oglasa
Odličan lokal, u dva nivoa. 97m2 + 49m2, u kvalitetnoj novogradnji. CG sa kalorimetrima, 3 mokra čvora. Izlog ka ulici. Pogodan za više namena. Na odličnoj lokaciji, za svaku preporuku. Agent Jelena Cmiljanović, lic.br.280 Telefon: 064... (prikaži broj telefona) Agencijska provizija 50%
*Sačuvaj oglas uz belešku i primaj obaveštenja o njihovom pojeftinjenju ili pojavljivanju sličnih
Prikaz poslovnog prostora na mapi
Parkovi u blizini
- Park Ćirila i Metodija13 min
- Park Starine Novaka15 min
- Park Hadžipopovac15 min

Obeležja kulture u blizini
- Spomenik Ćirilu i Metodiju5 min
- Spomenik Puškinu5 min
- Spomenik Vuku Karadžiću5 min

Škole/Fakulteti/Vrtići u blizini
- Osnovna škola (Osnovna škola Ivan Goran Kovačić)5 min
- Srednja škola (Srednja škola Arhimed)6 min
- Vrtić (Dečiji vrtić Plavo mače)3 min
- Fakultet (MiT Akademija za marketing i informatiku)5 min

Zdravlje
- Bolnica (Oftalmološka bolnica Revida)5 min
- Klinika (Poliklinika Panacea)6 min
- Teretana (EMS Studio Maxifit)4 min
Hrana i piće
- Prodavnica (Shop&Go)1 min
- Restoran (Kubanski restoran Garmer)2 min
- Kafana (Kafana Limun žut)4 min
Prevoz
- Taksi stajalište (Taxi stanica)5 min
- Autobuska stanica (Veljka Dugoševića)6 min
- Tramvajska stanica (Dalmatinska)11 min
- Trolejbuska stanica (Marka Oreškovića)1 min
Ostale ustanove
- Banka (Banca Intesa)9 min
- Pošta (Pošta Beograd 14)4 min
Kontakt oglašivača
▾Reklama▾
Krediti OTP banke
RSDIznos kredita
Period otplate
13 meseciod 12.261 RSD
mesečno
Za klijente banke
NKS 10.55%-EKS 12.53%
Period otplate 13 - 71 mesec
Saznaj više
