Kancelarija za izdavanje, Beograd centar, 1.600€, 120m²












































1.600 €
- Na 2. spratu od ukupno 3 sprata
- Novo
- Prostorije: terasa
- Opremljenost: Namešteno - internet, klima
- Oglas oglašava agencija pod reg. brojem 1691
- Kablovska
- 1 telefonska linija
Opis oglasa
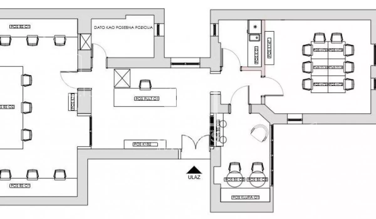
Poslovni prostor na drugom spratu zgrade u Brankovoj ulici. Radni prostor je kompletno namešten za 15 radnih mesta, sa mogućnošću proširenja za još 6-8 radnih mesta. Ulaz i recepcija sa kontrolom pristupa, interfonom, i inverter wifi klima uređajem. Multifunkcionalni ormarići namenjeni za svakog radnika. Utičnice u zidu, mreža sprovedena do svakog radnog mesta, gigabitni switch, optički internet + dual wifi. Savremena wifi klima i LED rasveta iznad svakog radnog mesta. Moderno uređen WC sa dve odvojene kabine. Čajna kuhinja potpuno opremljena sa novom ugradnom sudo-mašinom, indukcionom pločom i Saeco espresso aparatom.Lounge - soba sa odmorom i ručavanjem, nova garnitura za sedenje, barski stolovi koji mogu biti i dodatna radna mesta. Konferencijska sala kapaciteta 10+ ljudi sa LCD TV-om, magnetnom tablom, inverter wifi klimom. Natkrivena mala terasa za pušače. Tehnička opremljenost:Optički internet 400Mbs. Rack orman sa profesionalnim gigabitnim switchom, patch panel, 3 telefonske linije. Kontrola pristupa sa TAG-om, i video nadzor sa 5 kamera i NVR snimač. Prostor je idealan za IT firme, dizajn studio, call centre kao i razne druge delatnosti. Agencijska provizija 50% od prve zakupnine.ID oglasa: 42867.
*Sačuvaj oglas uz belešku i primaj obaveštenja o njihovom pojeftinjenju ili pojavljivanju sličnih
Prikaz poslovnog prostora na mapi
Parkovi u blizini
- Park nesvrstanih zemalja2 min
- Park Vojvode Vuka5 min
- Park Luke Ćelovića7 min

Obeležja kulture u blizini
- Spomenik Aleksandru Deroku4 min
- Stara Narodna biblioteka Srbije4 min
- Fontana Crveni petao6 min

Škole/Fakulteti/Vrtići u blizini
- Osnovna škola (Osnovna škola Kralj Petar I)4 min
- Srednja škola (Privatna gimnazija Milena Pavlović Barili)7 min
- Vrtić (Dečiji vrtić Avantura)12 min
- Fakultet (Univerzitet u Beogradu Fakultet primenjenih umetnosti)5 min

- Bolnica (Ordinacija za maksilofacijalnu hirurgiju Beograd Centar)12 min
- Klinika (Hirurška poliklinika Jana)3 min
- Teretana (Dynamic pilates & fitness studio)11 min
- Prodavnica (Market Zeleni ceger)3 min
- Restoran (Burger Bar & Pasta Bar)3 min
- Kafana (Oranje Rugby Pub)4 min
- Taksi stajalište (Taxi stanica)5 min
- Autobuska stanica (Brankov most)2 min
- Tramvajska stanica (Ekonomski Fakultet)8 min
- Trolejbuska stanica (Terazije)9 min
- Banka (NLB Komercijalna banka)2 min
- Pošta (Pošta Beograd 4)13 min
Kontakt oglašivača
Krediti OTP banke
Period otplate
13 mesecimesečno
Period otplate 13 - 71 mesec
Saznaj više
