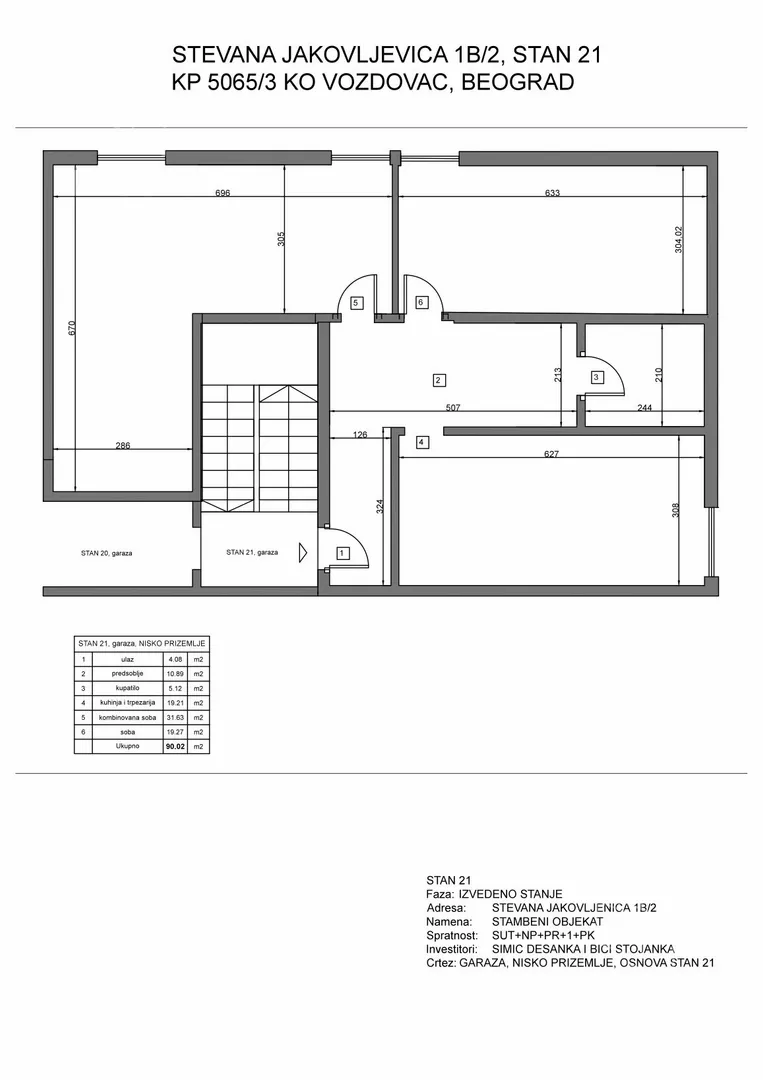
Ordinacija za izdavanje, Stevana Jakovljevića 1B, 700€, 93m²
Autokomanda, Voždovac opština, Beograd
Prikaži mapuOglas ažuriran: pre 1 dan
















700 €
mesečno
Ordinacija
93 m²
Polunamešteno
- Obavezan depozit 700 €
- Suteren od ukupno 2 sprata
- Novo
- Prostorije: kupatilo, kuhinja
- Opremljenost: Polunamešteno - klima, veš mašina, kuhinjski elementi, sudo mašina, frižider, mikrotalasna rerna, šporet, ležaj, plakar
- Pogled na: dvorište
- Izdavanje direktno od vlasnika
- 2 parking mesta, parking u dvorištu zgrade
- Godina izgradnje: 2018.
- Autobuske linije: 18, 25, 39
- Tramvajske linije: 8, 9, 10, 14
Opis oglasa
Stan sa parkinzima idealan za ordinacije, kancelarije, skolice. Trenutno jje opremeljen za stanovanje ali se sav namestaj moze ukloniti osim kuhinje. Plafoni na visini od 3,40 sto ga cini posebno atraktivnim.
Moguci su razni dogovori za duzi zakup, preuredjenje kupatila i prostora shodno buducoj nameni. Moguce je dodati na ovih 90m2 i dodatne stambene jedinice ako je potrebna veca kvadaratura, kao na pr. 40m2 ili 100m2.
*Sačuvaj oglas uz belešku i primaj obaveštenja o njihovom pojeftinjenju ili pojavljivanju sličnih
Prikaz poslovnog prostora na mapi
Parkovi u blizini
- Bajronov park11 min
- Park Jove Ilića16 min
- Park Šumice17 min

Obeležja kulture u blizini
- Spomenik Franše Depereu7 min
- Kuća Flašar9 min
- Spomenik oslobodilaca Beograda 1806. godine10 min

Škole/Fakulteti/Vrtići u blizini
- Osnovna škola (Osnovna škola Veselin Masleša)3 min
- Srednja škola (Geološka i hidrometeorološka škola Milutin Milanković)6 min
- Vrtić (Dečiji vrtić Pinokio)3 min
- Fakultet (Univerzitet Singidunum)4 min

Zdravlje
- Bolnica (Opšta bolnica Una)5 min
- Klinika (Poliklinika Voždmedik)7 min
- Teretana (Fitness centar Atom Ant)3 min
Hrana i piće
- Prodavnica (Market Jelena)5 min
- Restoran (Restoran Revanš)6 min
- Kafana (Kafanica Kod Slobe)9 min
Prevoz
- Taksi stajalište (Taxi stanica)11 min
- Autobuska stanica (Vitanovačka)4 min
- Tramvajska stanica (Vitanovačka)7 min
- Trolejbuska stanica (Kruševačka)18 min
Ostale ustanove
- Banka (Poštanska štedionica)7 min
- Pošta (Pošta Beograd 48)6 min
Kontakt oglašivača
Milos Simic

▾Reklama▾
Krediti OTP banke
RSDIznos kredita
Period otplate
13 meseciod 12.050 RSD
mesečno
Za klijente banke
NKS 7.50%-EKS 7.77%
Period otplate 13 - 71 mesec
Saznaj više