Dvosoban stan na prodaju, Vračar, 320.000€, 53m²




















320.000 €
6.038 € / m2
- Stan u zgradi
- Grejanje na struju
- U izgradnji
- Prostorije: kupatilo
- U procesu uknjižavanja
- Oglas oglašava agencija pod reg. brojem 2141
- 1 garažno mesto, garaža u sklopu zgrade
- 1 parking mesto
- 1 lift
- Godina izgradnje: 2026.
Opis oglasa
Na prodaju dvosoban stan na Vračaru – ulica Cara Nikolaja
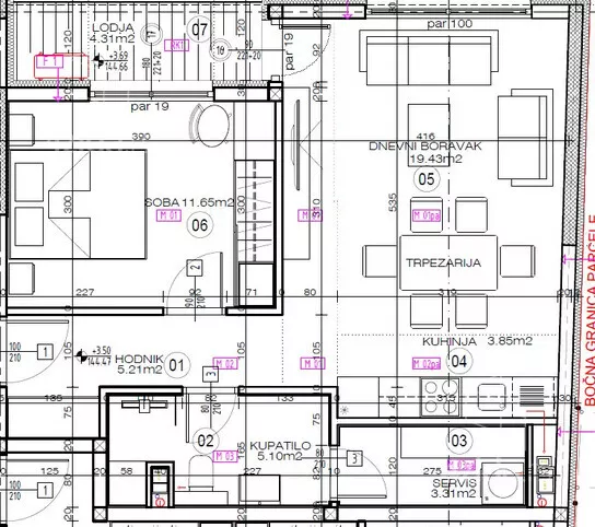
Prodaje se funkcionalan i svetao dvosoban stan površine 53 m², smešten na prvom spratu kvalitetne stambene zgrade u jednoj od najtraženijih lokacija na Vračaru.
Struktura stana je odlično organizovana i sastoji se od dnevnog boravka, spavaće sobe, kuhinje sa trpezarijom, kupatila, lodje i hodnika. Stan je pogodan kako za porodično stanovanje, tako i kao investicija za izdavanje.
Dodatna prednost je garažno mesto, što predstavlja veliku vrednost u ovom delu grada.
Lokacija je izuzetna – u neposrednoj blizini nalaze se škole, vrtići, kalenić pijaca, prodavnice, kao i brojni kafići i restorani. Odlična povezanost sa ostalim delovima grada.
Osnovne karakteristike:
- Površina: 53 m²
- Struktura: dvosoban
- Sprat: 1
- Garažno mesto: da, 14,5 kvadrata
Odlična prilika za život ili investiciju!
Završetak radova kraj 2026. godine.
U cenu je uračunat PDV.
Agencijska provizija (od cene): 2 %
*Sačuvaj oglas uz belešku i primaj obaveštenja o njihovom pojeftinjenju ili pojavljivanju sličnih
Prikaz stana na mapi
Kontakt oglašivača
Krediti OTP banke
Saznaj više
Prikazana rata odnosi se na maksimalni period otplate. Kalkulator je informativnog karaktera.
* Nakon isteka 5 godina, prelazi se na varijabilnu kamatnu stopu


