Dvosoban stan na prodaju, Veternik, 93.918€, 42m²














93.918 €
2.236 € / m2
- Stan u zgradi
- Oglas oglašava agencija pod reg. brojem 482
- Godina izgradnje: 2026.
Opis oglasa
Zadovoljstvo nam je što smo u prilici da ponudimo stanove u novogradnji koji se prostiru u sklopu savremenog stambenog kompleksa, osmišljen kako bi spojio komfor urbanog života sa prirodnim okruženjem.
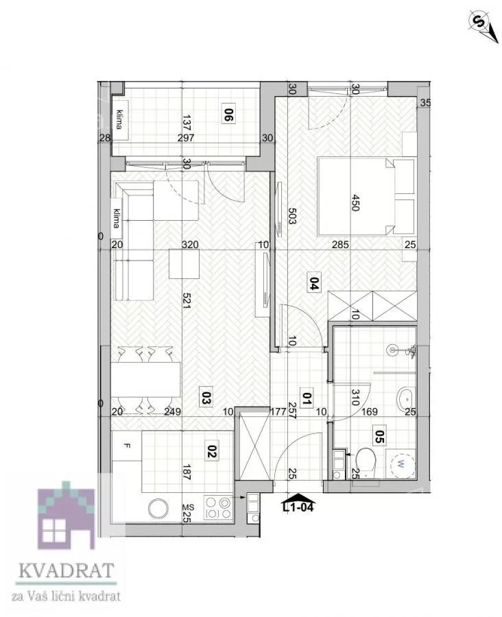
Stan 42.69m² se nalazi na prvom spratu i sastoji se iz hodnika, dnevne sobe sa kuhinjom i trpezarijom, spavaće sobe, kupatila i terase.
Pouzdan i siguran investitor koji se sa bogatim iskustvom i profesionalnim timom posvećeno bavi izgradnjom modernih i kvalitetnih stambenih kompleksa.
Svaki projekat grade sa posebnom pažnjom posvećujući se svakom detalju i osiguravajući vrhunski kvalitet gradnje.
Obezbeđuju najbolji odnos cene, kvaliteta i lokaliteta u Novom Sadu.
Potpuno nova rezidencijalna lokacija u Novom Sadu, gde je sve podređeno kvalitetu zivota, komforu i zdravlju buducih stanovnika.
Projektovan je kao stambeni kompleks, spratnosti Po+Pr+3.
Dvosobni stanovi su dostupni u lamelama 1-4, na prizemlju, I, II, III spratu.
Površine su od 42,69 m2 do 48,84 m2, a cene su od 2200€/m² do 2310€/m² (CENE SA PDV-om)
Mogućnost kupovine putem stambenog kredita.
Više informacija na tel.
062... (prikaži broj telefona)
i
069... (prikaži broj telefona)
Agencijska provizija 3% (min. 1000 €)
Ozbiljnost, predanost poslu, kao i visok stepen profesionalizma ističu agenciju Kvadrat na tržištu nekretnina kao veoma sigurnog i pouzdanog partnera svakoj porodici, pojedincu ili preduzeću koje se opredeli da prodaje, kupuje ili iznajmi nekretninu.
Prepustite brigu pronalaženja željene nekretnine našem iskusnom timu licenciranih agenata, uz obezbeđenu pravnu sigurnost.
*Sačuvaj oglas uz belešku i primaj obaveštenja o njihovom pojeftinjenju ili pojavljivanju sličnih
Prikaz stana na mapi
Parkovi u blizini
- Park Bistrica47 min

Obeležja kulture u blizini
- Dvorac Hadik-Kotek14 min
- Mađarska reformatorska crkva sa zgradom parohijskog doma15 min
- Jodna Banja20 min

Škole/Fakulteti/Vrtići u blizini
- Osnovna škola (Osnovna škola Mihajlo Pupin)5 min
- Srednja škola (Privatna medicinska škola Dositej Obradović)9 min
- Vrtić (Dečiji vrtić Zlatno sunce)10 min
- Fakultet (Protestantski teološki fakultet)14 min

- Bolnica (Opšta bolnica New Hospital)11 min
- Klinika (Poliklinika Consilium)13 min
- Teretana (Fitness studio Top Form)9 min
- Prodavnica (TSV Diskont)3 min
- Restoran (Restoran Na kraj sela)31 min
- Kafana (Pivoteka 77)50 min
- Taksi stajalište (Taxi prevoz Novi Sad)48 min
- Autobuska stanica (Veternik - Stadion)1 min
- Banka (Poštanska štedionica)5 min
- Pošta (Pošta Veternik 21203)4 min
Kontakt oglašivača
Krediti OTP banke
Saznaj više
Prikazana rata odnosi se na maksimalni period otplate. Kalkulator je informativnog karaktera.
* Nakon isteka 5 godina, prelazi se na varijabilnu kamatnu stopu


