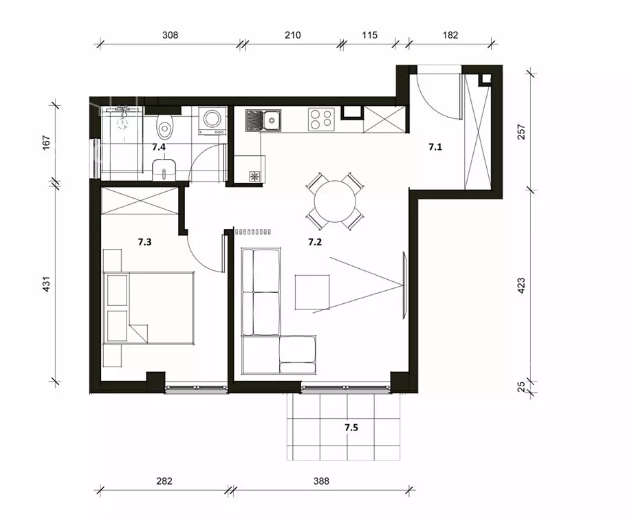
Dvosoban stan na prodaju, Trošarina, 172.800€, 48m²








172.800 €
3.600 € / m2
- Stan u zgradi
- Grejanje na toplotnu pumpu
- U izgradnji
- Prostorije: kupatilo, terasa
- Uknjiženo
- Oglas oglašava agencija pod reg. brojem 1299
- 1 garažno mesto, garaža u sklopu zgrade
- Parking u dvorištu zgrade
- 1 lift
Opis oglasa
Na izuzetnoj lokaciji na Voždovcu, u zoni Trošarine u ponudi je savremeni stambeni objekat vrhunskog kvaliteta gradnje i moderne arhitekture.
Pozicionirana u mirnoj ulici ova zgrada Vam pruža najbolje od oba, mir ali i blizinu svim sadržajima.
U blizini se nalaze: Saobraćajni fakultet, Fakultet organizacionih nauka, Studentski dom, Banjiča šuma, parkovi, sportski centri, pijaca, marketi, apoteke, banke i restorani.
Takođe i odlična povezanost sa linijama gradskog prevoza.
Visok nivo gradnje i najbolji materijali: Sigurnosna ulazna vrata, Aluminijumska stolarija, Italijanska/Španska keramika, sanitarije "Villeroy and Boch", baterije "Hansgrohe", višeslojni pod (tarket), podno grejanje (električni kotao), lift "OTIS", sigurnosne kamere, interfon, klima.
Dostupna kvadratura na prvom i drugom spratu.
Savršena pozicija kako za porodičan život, tako i kao investicija.
Mogućnost kupovine garažnog parking mesta. Cena 27.000 eura + PDV
Cena je izražena bez PDV -a (PDV 10%)
Povrat PDV-a za kupovinu prve nekretnine.
Posrednička naknada je u skladu sa Opštim uslovima poslovanja posrednika kompanije "Etagi com" d.o.o
*Sačuvaj oglas uz belešku i primaj obaveštenja o njihovom pojeftinjenju ili pojavljivanju sličnih
Prikaz stana na mapi
Parkovi u blizini
- Banjička šuma12 min
- Park Jove Ilića16 min
- Bajronov park27 min

Obeležja kulture u blizini
- Stara mehana u Kumodražu11 min
- Dvorska crkva Svetog Apostola Andreja Prvozvanog13 min
- Kraljevski dvor13 min

Škole/Fakulteti/Vrtići u blizini
- Osnovna škola (Osnovna škola Filip Filipović)4 min
- Srednja škola (Srednja škola Vasa Stajić)7 min
- Vrtić (Dečiji vrtić Avantura)1 min
- Fakultet (Visoka škola strukovnih studija za ekonomiju i upravu R&B College)2 min

- Bolnica (Opšta bolnica Medicinski sistem Beograd MSB)3 min
- Klinika (Poliklinika Nera)5 min
- Teretana (District Cross Fit)1 min
- Prodavnica (Gomex market)1 min
- Restoran (Restoran Pastino)3 min
- Kafana (Pivnica Drvce Kiselo 2002)12 min
- Taksi stajalište (Taxi stanica)3 min
- Autobuska stanica (Trošarina)3 min
- Tramvajska stanica (Saobraćajni Fakultet)5 min
- Trolejbuska stanica (Paunova)9 min
- Banka (Erste Bank)4 min
- Pošta (Pošta Beograd 163)8 min
Kontakt oglašivača
Krediti OTP banke
Saznaj više
Prikazana rata odnosi se na maksimalni period otplate. Kalkulator je informativnog karaktera.
* Nakon isteka 5 godina, prelazi se na varijabilnu kamatnu stopu


