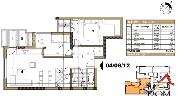
Trosoban stan na prodaju, Telep, 177.700€, 69m²


177.700 €
2.575 € / m2
- Stan u zgradi
- U izgradnji
- Prostorije: terasa
- Oglas oglašava agencija pod reg. brojem 174
- 1 lift
Opis oglasa
Fenomenalna lokacija! Odličan kvalitet gradnje! Poštovanje rokova izgradnje!
Agencija Moj Dom prodaje stanove razlicitih struktura i kvadratura u izgradnji u zgradi koju gradi pouzdan investitor.
Zgrada vrhunskog kvaliteta :
- Stolarija je izrađena od profila zastakljenih termopan staklom.
- Podna obloga u stambenim prostorijama je od tarketa, a u hodnicima i na terasama od keramike.
- Zidovi i podovi sanitarnih prostorija su obloženi keramikom.
- Sanitarne prostorije opremljene su sanitarnim elementima i tuš baterijama.
- Hidraulični liftovi
- Svaki stan ima ugrađene kalorimetre tako da se naplata troškova grejanja vrši po utrošku.
- Za kupce prve nekretnine postoji mogućnost povrata PDV-a.
Naša preporuka!
Šifra: 1028217
Kontakt -
063... (prikaži broj telefona)
Moj Dom nekretnine,Novi Sad,Reg.br.174
Phenomenal Location! Excellent Quality of Construction! Adherence to Construction Deadlines!
Moj Dom Agency is selling apartments of various structures and sizes under construction in a building being built by a reliable investor.
Top-quality Building Features:
Joinery is made of thermopane glass profile.
Flooring in residential areas is parquet, while hallways and terraces are tiled.
Walls and floors of sanitary facilities are tiled.
Sanitary facilities are equipped with sanitary elements and shower faucets.
Hydraulic lifts.
Each apartment has built-in calorimeters for heating cost calculation based on consumption.
First-time property buyers have the option of VAT refund.
Our Recommendation!
Code: 1028217
Contact -
063... (prikaži broj telefona)
Moj Dom Real Estate, Novi Sad, Reg. No. 174
(Moj Dom nekretnine,Novi Sad,Reg.br.174)
*Sačuvaj oglas uz belešku i primaj obaveštenja o njihovom pojeftinjenju ili pojavljivanju sličnih
Prikaz stana na mapi
Parkovi u blizini
- Park Bistrica28 min
- Futoški park33 min
- Limanski park36 min

Obeležja kulture u blizini
- Dvorac Eđšeg12 min
- Jodna Banja12 min
- Galerija Matice srpske16 min

Škole/Fakulteti/Vrtići u blizini
- Osnovna škola (Osnovna škola Jožef Atila)5 min
- Srednja škola (Gimnazija Laza Kostić)5 min
- Vrtić (Dečiji vrtić Zemlja čuda)2 min
- Fakultet (Protestantski teološki fakultet)4 min

- Bolnica (Ginekološka bolnica Ferona)1 min
- Klinika (Poliklinika Consilium)4 min
- Teretana (Fitness club Ozzy Gym)5 min
- Prodavnica (Supermarket Univerexport)6 min
- Restoran (Caffe restoran Rosetto)7 min
- Kafana (Atos pub)5 min
- Taksi stajalište (Taxi prevoz Novi Sad)20 min
- Autobuska stanica (Feješ Klare - Pravoslavna crkva)3 min
- Banka (Erste Bank Ekspres ekspozitura)5 min
- Pošta (Pošta Novi Sad 21124)2 min
Kontakt oglašivača

Stambeni krediti

- Period otplate od
96 -360 meseca
- NKS 4.75%
EKS 5.74%
Fiksna kamatna stopa
- Bez troškova obrade kredita
stranici kreditnih kalkulatora
Keš krediti
Period otplate
13 meseci