Garsonjera na prodaju, Telep, 87.431€, 29m²
















87.431 €
3.015 € / m2
- Stan u zgradi
- Centralno grejanje
- Novo
- Prostorije: terasa
- Opremljenost: Prazno - interfon, klima
- Oglas oglašava agencija pod reg. brojem 1596
- 1 garažno mesto
- 1 parking mesto
- 1 lift
- Zgrada poseduje: video nadzor
Opis oglasa
U ponudi je prodaja stanova u novogradnji na Telepu, površine od 29 m² do 85 m², na odličnoj lokaciji u mirnom i zelenom delu Novog Sada. Ovaj moderan stambeni kompleks predstavlja vrhunski kvalitet gradnje i savršen izbor za porodice koje žele da uživaju u mirnoj oazi uz potpunu povezanost sa svim ključnim sadržajima grada.
U neposrednoj blizini nalaze se škole, vrtići, parkovi, prodavnice i javni prevoz, dok odlična infrastruktura omogućava brz i jednostavan pristup svim važnim lokacijama u Novom Sadu. Ovaj projekat predstavlja idealnu priliku za sve koji prate tržište prodaja stanova Novi Sad i traže dom koji spaja luksuz, funkcionalnost i udobnost.
Osnovne karakteristike:
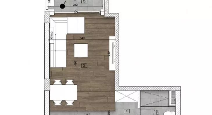
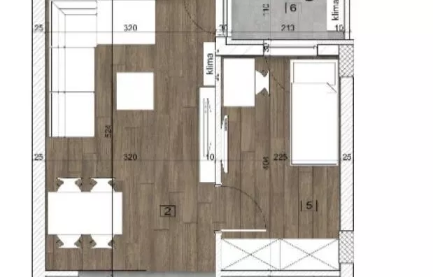
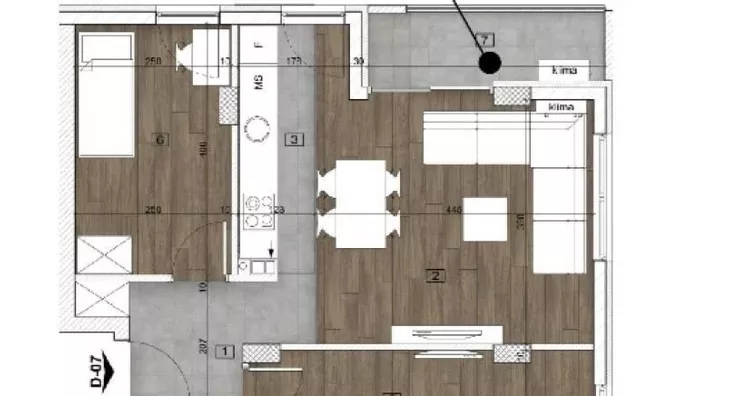
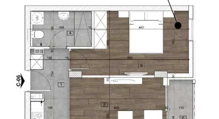
Površine od 29 m² do 85 m²
Različite strukture: jednosoban, dvosoban, trosoban i četvorosoban stan
Novogradnja vrhunskog kvaliteta – moderni materijali i savremena oprema
Odlična lokacija u zelenom delu Telepa
Kompleks sa privatnim dvorištem, dečijim igralištem i direktnim pristupom novom gradskom parku
Lokali orijentisani ka dvorištu – pogodni za kafiće, restorane i male radnje
Video nadzor, optika i garaža sa rampom i kamerama
Punjači za električna vozila i mogućnost dodatne instalacije
Pametne tehnologije za upravljanje sigurnosnim sistemima i režimima pristupa
Prednosti lokacije i kvaliteta:
Svaka lamela u okviru kompleksa odlikuje se modernim dizajnom, energetski efikasnim rešenjima i izuzetnom funkcionalnošću prostora. Objekat je osunčan tokom celog dana, pružajući maksimalan komfor i prijatnu atmosferu u svakom stanu.
Funkcionalnost i udobnost su na prvom mestu – svaki stan je projektovan tako da maksimalno iskoristi prostor, uz zadržavanje estetskog izgleda i lakoće prilagođavanja različitim potrebama stanara.
Uživajte u sigurnom, modernom i zelenom okruženju, u okviru kompleksa koji kombinuje urbani stil života i prirodni ambijent. Ovaj projekat je idealan za porodice, parove, kao i investitore koji traže prodaju stanova Novi Sad na odličnoj lokaciji sa visokim standardima gradnje.
Cena i uslovi kupovine:
Cena po dogovoru.
Kupovina direktno od investitora – bez skrivenih troškova.
Za više informacija, strukture stanova i obilazak lokacije, kontaktirajte nas!
Agencijska provizija se ne placa
Kompas Nekretnine – vaš pouzdan partner u kupovini i prodaji nekretnina.
*Sačuvaj oglas uz belešku i primaj obaveštenja o njihovom pojeftinjenju ili pojavljivanju sličnih
Prikaz stana na mapi
Parkovi u blizini
- Park Bistrica24 min
- Futoški park37 min

Obeležja kulture u blizini
- Jodna Banja10 min
- Galerija Matice srpske10 min
- Spomenik Svetozaru Miletiću10 min

Škole/Fakulteti/Vrtići u blizini
- Osnovna škola (Osnovna škola Miloš Crnjanski)5 min
- Srednja škola (Privatna medicinska škola Dositej Obradović)5 min
- Vrtić (Dečiji vrtić Dobra Vila)9 min
- Fakultet (Protestantski teološki fakultet)6 min

- Bolnica (Specijalna bolnica za hemodijalizu Fresenius Medical Care FMC)5 min
- Klinika (Poliklinika Consilium)6 min
- Teretana (Fintess centar Basic Control Academy)4 min
- Prodavnica (Mikromarket)6 min
- Restoran (Restoran Đeram)4 min
- Kafana (Kafanica Kod Dače)19 min
- Taksi stajalište (Taxi prevoz Novi Sad)17 min
- Autobuska stanica (Futoški Put - Garaža GSP)2 min
- Banka (Erste Bank Ekspres ekspozitura)13 min
- Pošta (Pošta Novi Sad 21135)7 min
Kontakt oglašivača
Krediti OTP banke
Saznaj više
Prikazana rata odnosi se na maksimalni period otplate. Kalkulator je informativnog karaktera.
* Nakon isteka 5 godina, prelazi se na varijabilnu kamatnu stopu


