Petosoban stan na prodaju, Ozrenska, 437.400€, 162m²










437.400 €
2.700 € / m2
- Stan u zgradi
- Etažno grejanje
- Novo
- Prostorije: kupatila (2), toalet, terasa
- U procesu uknjižavanja
- Oglas oglašava agencija pod reg. brojem 1299
- 1 garažno mesto, garaža u sklopu zgrade
- 1 lift
- Godina izgradnje: 2024.
Opis oglasa
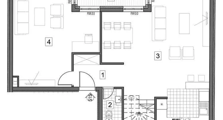
Na prodaju je prelep svetao petosoban stan duplex u mirnoj ulici na Voždovcu, blizu sportskog centra Šumice, autoputa, škola, brojnih restorana i kafića. Lokacija je dobro povezana sa ostalim delovima grada. U prizemlju se nalazi veliki dnevni boravak sa kuhinjom i trpezarijom, toalet, gostejska soba i garderober. Na gornjem nivou se nalazi glavna spavaća soba sa kupatilom, još dve prostrane spavaće sobe i dodatno kupatilo. Sve tri spavaće sobe imaju izlaz na terasu. U izgradnji su korišćeni najkvalitetniji materijali. Stan zaslužuje visoku preporuku.
For sale is a beautiful, bright five-bedroom duplex apartment in a quiet street in Voždovac, close to the Šumice sports center, the highway, schools, numerous restaurants and cafes. The location is well connected to other parts of the city. On the ground floor there is a large living room with a kitchen and dining room, a toilet, a guest room and a wardrobe. On the upper level there is a master bedroom with a bathroom, two more spacious bedrooms and an additional bathroom. All three bedrooms have access to a terrace. The highest quality materials were used in the construction. The apartment deserves a high recommendation.
Продается красивая, светлая пятикомнатная двухуровневая квартира на тихой улице в Вождоваце, недалеко от спортивного центра Шумице, автомагистрали, школ, многочисленных ресторанов и кафе. Расположение хорошо связано с другими частями города. На первом этаже находится большая гостиная с кухней и столовой, туалет, гостевая комната и гардеробная. На верхнем уровне расположена главная спальня с ванной комнатой, еще две просторные спальни и дополнительная ванная комната. Все три спальни имеют выход на террасу. При строительстве использовались материалы высочайшего качества. Квартира заслуживает высокой рекомендации.
*Sačuvaj oglas uz belešku i primaj obaveštenja o njihovom pojeftinjenju ili pojavljivanju sličnih
Prikaz stana na mapi
Parkovi u blizini
- Park Šumice5 min
- Park Urbani džep21 min
- Bajronov park25 min

Obeležja kulture u blizini
- Kuća Flašar6 min
- Spomenik oslobodilaca Beograda 1806. godine7 min
- Spomenik Internacionalnim brigadama7 min

Škole/Fakulteti/Vrtići u blizini
- Osnovna škola (Osnovna škola Janko Veselinović)6 min
- Srednja škola (Škola za negu lepote)7 min
- Vrtić (Dečiji vrtić Biseri)4 min
- Fakultet (Univerzitet Singidunum)6 min

- Bolnica (Klinika za fizikalnu medicinu Saint James)5 min
- Klinika (Poliklinika Antamedica)6 min
- Teretana (Teretana Vožd Tim)5 min
- Prodavnica (Bomz Bogojević market)6 min
- Restoran (Restoran Ustanak)3 min
- Kafana (Stara kafana Dušanovac)8 min
- Taksi stajalište (Taxi stanica)8 min
- Autobuska stanica (Grčića Milenka)3 min
- Tramvajska stanica (Bože Jankovića)21 min
- Trolejbuska stanica (Grčića Milenka)15 min
- Banka (Raiffeisen Bank)7 min
- Pošta (Pošta Beograd 11)7 min
Kontakt oglašivača
Krediti OTP banke
Saznaj više
Prikazana rata odnosi se na maksimalni period otplate. Kalkulator je informativnog karaktera.
* Nakon isteka 5 godina, prelazi se na varijabilnu kamatnu stopu


