Dvosoban stan na prodaju, Sremska Kamenica, 110.940€, 43m²
























110.940 €
2.580 € / m2
- Stan u zgradi
- Podno grejanje
- Novo
- Opremljenost: Prazno - internet, interfon, klima
- Oglas oglašava agencija pod reg. brojem 1808
- 1 lift
- Zgrada poseduje: video nadzor
- Kablovska
- 1 telefonska linija
Opis oglasa
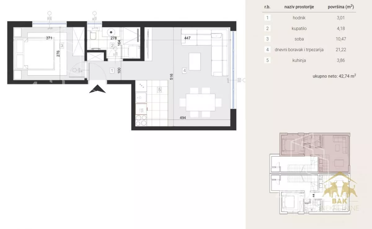
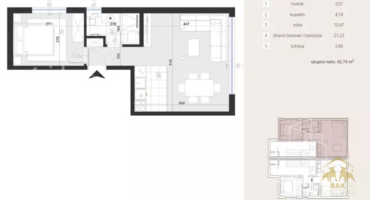
Na atraktivnoj i mirnoj lokaciji, u delu grada poznatom po kvalitetnoj novogradnji i prijatnom okruženju, nalazi se ekskluzivan dvosoban stan u izgradnji koji predstavlja odličan izbor za savremen način života. Kompleks je smešten na Tatarskom brdu, u ambijentu koji spaja privatnost, komfor i moderan arhitektonski izraz. Stan površine 43 m2 osmišljen je tako da pruži maksimalnu funkcionalnost i jednostavan, pregledan raspored prostorija. Sastoji se od dnevnog boravka povezanog sa trpezarijom i kuhinjom, jedne spavaće sobe, kupatila i hodnika. Posebnu vrednost ovom prostoru daje podno grejanje, koje doprinosi dodatnom osećaju udobnosti tokom cele godine. Zgrada se izdvaja savremenim eksterijerom sa čistim linijama i velikim staklenim površinama, dok su u gradnji i opremanju korišćeni kvalitetni materijali. Ugrađena je stolarija najnovije generacije, premium izolacija, kvalitetna keramika i parket, kao i smart-home sistem koji podiže nivo komfora i praktičnosti. Planirani završetak radova je proleće 2027. godine, što ovu nekretninu čini izuzetnom prilikom za kupce koji traže moderan stan u perspektivnom i prepoznatljivom prigradskom delu Novog Sada.
Za više informacija o stanu, dostupnosti i razgledanju, slobodno nas kontaktirajte.
BAK Nekretnine
Kontakt telefon:
060... (prikaži broj telefona)
,
065... (prikaži broj telefona)
,
065... (prikaži broj telefona)
*Sačuvaj oglas uz belešku i primaj obaveštenja o njihovom pojeftinjenju ili pojavljivanju sličnih
Prikaz stana na mapi
Parkovi u blizini
- Park prirode Instituta u Sremskoj Kamenici32 min
- Kamenički park35 min

Obeležja kulture u blizini
- Kuća Jovana Jovanovića Zmaja7 min
- Kuća iz 1797. godine7 min
- Dvorac Marcibanji-Karačonji9 min

Škole/Fakulteti/Vrtići u blizini
- Osnovna škola (Privatna osnovna škola Svitac)8 min
- Srednja škola (Francusko-srpska gimnazija Petar I od Srbije)9 min
- Vrtić (Dečiji vrtić Mala škola)6 min
- Fakultet (Educons Univerzitet)9 min

- Bolnica (Institut za kardiovaskularne bolesti Vojvodine)8 min
- Klinika (Poliklinika Nada Diva)15 min
- Teretana (Joga Yogaja Studio)9 min
- Prodavnica (Expeto market)7 min
- Restoran (Restoran Dinara)19 min
- Kafana (Kafana Tako je suđeno)42 min
- Autobuska stanica (Sremska Kamenica - Paragovski Put - Obilaznica)7 min
- Banka (Poštanska štedionica)7 min
- Pošta (Pošta Sremska Kamenica 21208)7 min
Kontakt oglašivača
Krediti OTP banke
Saznaj više
Prikazana rata odnosi se na maksimalni period otplate. Kalkulator je informativnog karaktera.
* Nakon isteka 5 godina, prelazi se na varijabilnu kamatnu stopu






















