Dvosoban stan na prodaju, Sremska Kamenica, 129.130€, 50m²
























129.130 €
2.583 € / m2
- Stan u zgradi
- Podno grejanje
- U izgradnji
- Opremljenost: Prazno - internet, interfon, klima
- Oglas oglašava agencija pod reg. brojem 1808
- 1 lift
- Zgrada poseduje: video nadzor
- Kablovska
- 1 telefonska linija
Opis oglasa
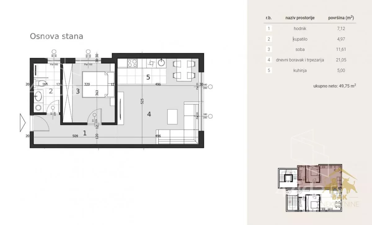
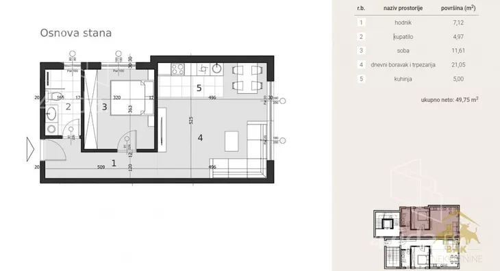
Na prodaju je moderan stan u izgradnji, smešten na atraktivnoj lokaciji na Tatarskom brdu, u neposrednoj blizini glavnih saobraćajnica i sa odličnom povezanošću ka gradu, a istovremeno izdvojen u mirnom i prijatnom okruženju idealnom za porodični život. Stan površine 50 m² pažljivo je projektovan kao dvosoban i nudi optimalan raspored prostora. Sastoji se od komfornog dnevnog boravka sa trpezarijom i kuhinjom u otvorenom konceptu, odvojene spavaće sobe, kupatila i funkcionalnog hodnika. Poseban akcenat stavljen je na udobnost, uz podno grejanje koje obezbeđuje ravnomernu temperaturu i visok nivo energetske efikasnosti. Sam objekat odlikuje se modernim arhitektonskim rešenjem sa čistim, ravnim linijama i velikim staklenim površinama koje prostoru daju obilje prirodne svetlosti. U gradnji su korišćeni materijali vrhunskog kvaliteta, stolarija najnovije generacije, premium termo i zvučna izolacija, kvalitetna keramika i parketi, što garantuje dugotrajnost i visok standard stanovanja. Dodatnu vrednost donosi implementacija smart home sistema, koji omogućavaju savremeni način upravljanja stanom i dodatni komfor u svakodnevnom životu. Ova nekretnina predstavlja odličnu priliku kako za život, tako i za investiciju u jednom od najtraženijih prigadskih naselja, koje beleži konstantan razvoj i rast vrednosti. Završetak radova je planiran na proleće 2027.
Za više informacija i rezervaciju, slobodno se javite.
BAK Nekretnine
Kontakt telefon:
065... (prikaži broj telefona)
,
060... (prikaži broj telefona)
,
065... (prikaži broj telefona)
*Sačuvaj oglas uz belešku i primaj obaveštenja o njihovom pojeftinjenju ili pojavljivanju sličnih
Prikaz stana na mapi
Parkovi u blizini
- Park prirode Instituta u Sremskoj Kamenici32 min
- Kamenički park35 min

Obeležja kulture u blizini
- Kuća Jovana Jovanovića Zmaja7 min
- Kuća iz 1797. godine7 min
- Dvorac Marcibanji-Karačonji9 min

Škole/Fakulteti/Vrtići u blizini
- Osnovna škola (Privatna osnovna škola Svitac)8 min
- Srednja škola (Francusko-srpska gimnazija Petar I od Srbije)9 min
- Vrtić (Dečiji vrtić Mala škola)6 min
- Fakultet (Educons Univerzitet)9 min

- Bolnica (Institut za kardiovaskularne bolesti Vojvodine)8 min
- Klinika (Poliklinika Nada Diva)15 min
- Teretana (Joga Yogaja Studio)9 min
- Prodavnica (Expeto market)7 min
- Restoran (Restoran Dinara)19 min
- Kafana (Kafana Tako je suđeno)42 min
- Autobuska stanica (Sremska Kamenica - Paragovski Put - Obilaznica)7 min
- Banka (Poštanska štedionica)7 min
- Pošta (Pošta Sremska Kamenica 21208)7 min
Kontakt oglašivača
Krediti OTP banke
Saznaj više
Prikazana rata odnosi se na maksimalni period otplate. Kalkulator je informativnog karaktera.
* Nakon isteka 5 godina, prelazi se na varijabilnu kamatnu stopu






















