Četvorosoban stan na prodaju, Sremska Kamenica, 212.540€, 82m²
























212.540 €
2.592 € / m2
- Stan u zgradi
- Podno grejanje
- Novo
- Prostorije: terasa
- Opremljenost: Prazno - internet, interfon, klima
- Oglas oglašava agencija pod reg. brojem 1808
- 1 lift
- Zgrada poseduje: video nadzor
- Kablovska
- 1 telefonska linija
Opis oglasa
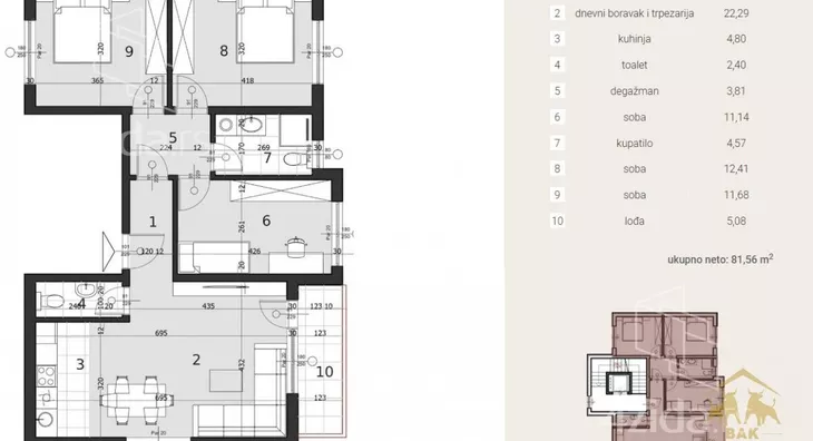
U srcu Tatarskog brda, na mirnoj i zelenoj lokaciji u blizini svih sadržaja i važnih saobraćajnica, čeka vas ovaj ekskluzivan četvorosoban stan u izgradnji površine 82 m² koji spaja moderan dizajn, funkcionalnost i udobnost. Stan je osmišljen sa pametnim rasporedom koji maksimalno koristi prostor i prirodnu svetlost, stvarajući topao, svetao i prijatan ambijent u kojem će vaša porodica uživati svaki dan. Prostran dnevni boravak povezan je sa trpezarijom i kuhinjom u otvorenom konceptu, dok tri velike spavaće sobe obezbeđuju mir i privatnost. Stan poseduje moderno kupatilo, dodatni gostinjski WC, lepo organizovan hodnik, degažman i terasu, kao i podno grejanje koje doprinosi komforu tokom cele godine. Raspored je izuzetno praktičan i funkcionalan, idealan za porodicu. Zgrada odiše modernim stilom sa čistim linijama i velikim staklenim površinama koje unose obilje prirodne svetlosti u enterijer. Ugrađena je stolarija najnovije generacije, premium termo i zvučna izolacija, dok enterijer krase kvalitetna keramika i parketi koji prostoru daju dugotrajnu vrednost i sofisticiran izgled. Smart home sistem omogućava jednostavno upravljanje i veću energetsku efikasnost. U cenu je uračunat PDV, što ovu nekretninu čini izuzetnom, kako za porodično stanovanje, tako i kao sigurnu investiciju. Završetak radova planiran je za proleće 2027. godine.
Za više informacija o stanu, dostupnosti i razgledanju, slobodno nas kontaktirajte.
BAK Nekretnine
Kontakt telefon:
060... (prikaži broj telefona)
,
065... (prikaži broj telefona)
,
065... (prikaži broj telefona)
*Sačuvaj oglas uz belešku i primaj obaveštenja o njihovom pojeftinjenju ili pojavljivanju sličnih
Prikaz stana na mapi
Parkovi u blizini
- Park prirode Instituta u Sremskoj Kamenici32 min
- Kamenički park35 min

Obeležja kulture u blizini
- Kuća Jovana Jovanovića Zmaja7 min
- Kuća iz 1797. godine7 min
- Dvorac Marcibanji-Karačonji9 min

Škole/Fakulteti/Vrtići u blizini
- Osnovna škola (Privatna osnovna škola Svitac)8 min
- Srednja škola (Francusko-srpska gimnazija Petar I od Srbije)9 min
- Vrtić (Dečiji vrtić Mala škola)6 min
- Fakultet (Educons Univerzitet)9 min

- Bolnica (Institut za kardiovaskularne bolesti Vojvodine)8 min
- Klinika (Poliklinika Nada Diva)15 min
- Teretana (Joga Yogaja Studio)9 min
- Prodavnica (Expeto market)7 min
- Restoran (Restoran Dinara)19 min
- Kafana (Kafana Tako je suđeno)42 min
- Autobuska stanica (Sremska Kamenica - Paragovski Put - Obilaznica)7 min
- Banka (Poštanska štedionica)7 min
- Pošta (Pošta Sremska Kamenica 21208)7 min
Kontakt oglašivača
Krediti OTP banke
Saznaj više
Prikazana rata odnosi se na maksimalni period otplate. Kalkulator je informativnog karaktera.
* Nakon isteka 5 godina, prelazi se na varijabilnu kamatnu stopu






















