Šestosoban stan na prodaju, Nemanjina, 580.000€, 171m²




















580.000 €
3.392 € / m2
- Grejanje na TA peć
- Uobičajeno stanje
- Prostorije: kupatilo, terasa
- Opremljenost: Prazno - internet, interfon, klima
- Uknjiženo
- Oglas oglašava agencija pod reg. brojem 2104
- Godina izgradnje: 1928.
- Kablovska
- 1 telefonska linija
Opis oglasa
Arhitektonski spomenik Elegancije:
Postoje nekretnine koje kupujete da biste imali krov nad glavom, i postoje one koje
kupujete da biste posedovali deo istorije Beograda. Ovo je ova druga.
Smešten na prestižnom prvom spratu (savršena pristupačnost) na Slaviji – lokaciji koja
upravo prolazi kroz najveću transformaciju u deceniji – ovaj stan predstavlja savršen spoj
predratnog luksuza i neograničenog modernog potencijala.
Zašto je ovo prilika koja se ne propušta?
Vazduh i svetlost: Sa neverovatnom visinom plafona od 3,64 metra, ovaj prostor ne samo
da izgleda prostrano – on deluje monumentalno. Svaka soba je okupana suncem, pružajući
nivo komfora koji moderna novogradnja ne može da dostigne.
Strateška fleksibilnost (2 ulaza): Zahvaljujući originalnom rasporedu sa dva ulaza, stan je
"kameleon". Može biti jedna grandiozna porodična rezidencija, luksuzan poslovni prostor
koji ostavlja klijente bez daha, ili se može podeliti u dve nezavisne, vrhunske stambene
jedinice.
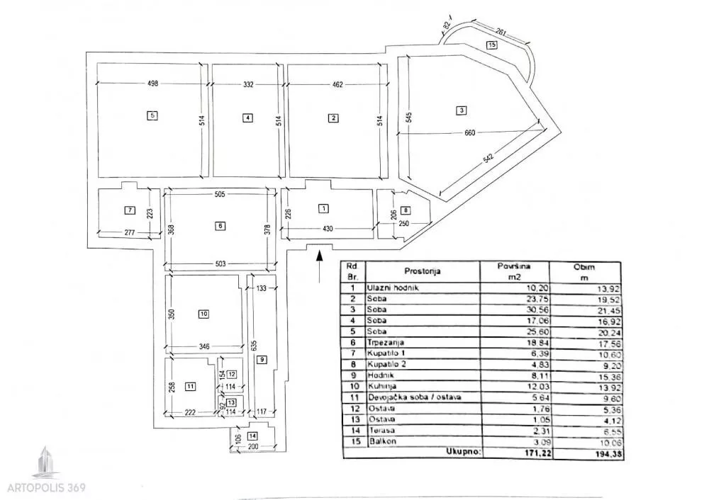
Funkcionalna raskoš: 4 prostrane sobe, 2 kupatila, 2 balkona, 2 ostave, + trpezarija
+devojačka soba (idealna za arhivu ili walk-in garderober), + kuhinja, +hodnik.
Investicioni "Fast-Track": Renoviranje je već započeto. Preskočili ste najtežu fazu – sada je
red na umetnost dekorisanja prema Vašem senzibilitetu.
Lokacija: Epicentar promene
Slavija više nije samo raskrsnica; ona postaje prestižna zona u neposrednoj blizini
najmodernijih poslovnih i stambenih kompleksa. Kupovina ovde nije samo trošak – to je
sigurno deponovan kapital čija vrednost eksponencijalno raste.
Ovakve nekretnine se ne prodaju često. One se nasleđuju ili se kupuju čim se pojave.
Savski venac, Slavija | I sprat | Vlasništvo 1/1
Zakažite Termin za razgledanje i osetite prostor uživo.
Agencijska nadoknada iznosi 2%.
*Sačuvaj oglas uz belešku i primaj obaveštenja o njihovom pojeftinjenju ili pojavljivanju sličnih
Prikaz stana na mapi
Parkovi u blizini
- Park Mitićeva rupa3 min
- Manjež3 min
- Park Milutina Milankovića7 min

Obeležja kulture u blizini
- Spomenik Dimitriju Tucoviću1 min
- Muzička fontana2 min
- Kuća pukovnika Elezovića5 min

Škole/Fakulteti/Vrtići u blizini
- Osnovna škola (Osnovna škola Dragan Hercog)7 min
- Srednja škola (Savremena gimnazija)7 min
- Vrtić (Dečiji vrtić studio za edukaciju Moj mali svet)6 min
- Fakultet (Univerzitet u Beogradu Fakultet muzičke umetnosti)5 min

- Bolnica (MB Gamma Trade okuloplastična hirurgija i očna protetika)3 min
- Klinika (Poliklinika Euromedik)7 min
- Teretana (Muscle Planet Gym)2 min
- Prodavnica (City market 16)2 min
- Restoran (Restoran Šporet)1 min
- Kafana (Beer bar Tri kralja)5 min
- Taksi stajalište (Taxi stanica)2 min
- Autobuska stanica (Trg Slavija /Nemanjina/)1 min
- Tramvajska stanica (Trg Slavija /Bulevar Oslobođenja/)3 min
- Trolejbuska stanica (Trg Slavija)1 min
- Banka (Banca Intesa)3 min
- Pošta (Pošta Beograd 5)6 min
Kontakt oglašivača
Krediti OTP banke
Saznaj više
Prikazana rata odnosi se na maksimalni period otplate. Kalkulator je informativnog karaktera.
* Nakon isteka 5 godina, prelazi se na varijabilnu kamatnu stopu


