Dvosoban stan na prodaju, Salajka, 194.850€, 54m²












194.850 €
3.608 € / m2
- Stan u zgradi
- Uobičajeno stanje
- Uknjiženo
- Oglas oglašava agencija pod reg. brojem 1415
- 1 garažno mesto
- 1 lift
Opis oglasa
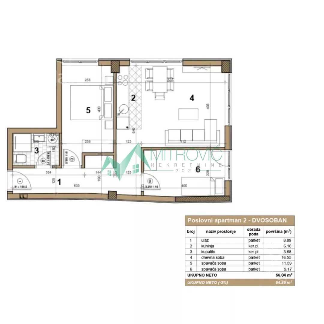
Predstavljamo vam savršenu priliku za kupovinu modernog dvosobnog poslovnog apartmana, koji se nalazi na galeriji elegantne zgrade. Pažljivo odabrani detalji čine ga idealnim za sofisticirane klijente koji traže udobnost i stil. Poslovni apartman se sastoji od dnevnog boravka, sa kuhinjom i trpezarijom, dve spavaće sobe i kupatila. Poslovni apartman će biti opremljen najnovijim trendovima u enterijeru, s fokusom na funkcionalnost i estetiku. Od podova do sanitarija, sve je pažljivo birano kako bi se postigao vrhunski kvalitet. Poslovni apartman se nalazi na atraktivnoj lokaciji, samo nekoliko minuta hoda od centra grada, što omogućava laku dostupnost svih sadržaja. Ovaj poslovni apartman je savršena investicija za one koji cene luksuz, udobnost i praktičnost. Ne propustite priliku da postanete vlasnik ovog izuzetnog stambenog prostora. Poslovni apartman je useljiv u junu 2026. godine. U cenu je uključena agencijska naknada u visini od 3%. Za više informacija obratite se na broj telefona: 060... (prikaži broj telefona) .
*Sačuvaj oglas uz belešku i primaj obaveštenja o njihovom pojeftinjenju ili pojavljivanju sličnih
Prikaz stana na mapi
Parkovi u blizini
- Železnički park22 min
- Dunavski park34 min
- Park srpsko-azerbejdžanskog prijateljstva35 min

Obeležja kulture u blizini
- Spomen ploča Albertu Ajnštajnu i Milevi Marić8 min
- Spomenik Kralju Petru I Karađorđeviću12 min
- Vladičanski dvor12 min

Škole/Fakulteti/Vrtići u blizini
- Osnovna škola (Osnovna škola Vuk Karadžić)6 min
- Srednja škola (Tehnička škola Pavle Savić)6 min
- Vrtić (Dečiji vrtić Bambi)6 min
- Fakultet (Univerzitet u Novom Sadu Akademija umetnosti)11 min

- Bolnica (Specijalna bolnica za bolesti zavisnosti Dr Boro Lazić)8 min
- Klinika (Poliklinika Uromedica NS)8 min
- Teretana (Fitness centar Mega Gym Novi Sad)5 min
- Prodavnica (Diskont hrane i pića Swisslion Takovo)5 min
- Restoran (Restoran Lasta)7 min
- Kafana (Kafana Naša priča)20 min
- Taksi stajalište (Novus taxi)14 min
- Autobuska stanica (Sentandrejski put - Benzinska pumpa)7 min
- Banka (Banca Intesa)9 min
- Pošta (Pošta Novi Sad 21130)4 min
Kontakt oglašivača
Krediti OTP banke
Saznaj više
Prikazana rata odnosi se na maksimalni period otplate. Kalkulator je informativnog karaktera.
* Nakon isteka 5 godina, prelazi se na varijabilnu kamatnu stopu


