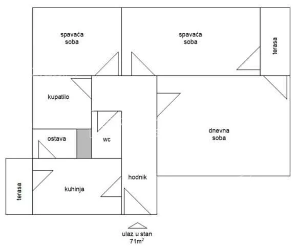
Trosoban stan na prodaju, Podbara, 156.200€, 71m²


156.200 €
2.200 € / m2
- Stan u zgradi
- Centralno grejanje
- Uobičajeno stanje
- Prostorije: terasa
- Uknjiženo
- Oglas oglašava agencija pod reg. brojem 1949
- Godina izgradnje: 1957.
Opis oglasa
NEKRETNINE NOVI SAD - ID OGLASA 1002293.
Poštovani klijenti, u skladu sa Zakonom o posredovanju u prometu i zakupu nepokretnosti i Opštim uslovima poslovanja posrednika, prezentacija i razgledanje predmetne nepokretnosti kao i svih nekretnina iz agencijske ponude, moguće je samo uz potpisan Ugovor o posredovanju.
Kupac je u obavezi da, u slučaju zaključenja kupoprodaje, isplati posredniku ugovorenu posredničku naknadu- agencijsku proviziju u ugovorenom iznosu, a u skladu sa Ugovorom o posredovanju.
Vaš agent za nekretnine: Natalija Radaković, licenca broj 2698, mob: 062... (prikaži broj telefona) .
Vaša agencija za nekretnine LEVEL PROPERTY, registar posrednika broj 1949, Novi Sad, Dimitrija Tucovića 1, lokal broj 3, tel: 021... (prikaži broj telefona) .
*Sačuvaj oglas uz belešku i primaj obaveštenja o njihovom pojeftinjenju ili pojavljivanju sličnih
Prikaz stana na mapi
Parkovi u blizini
- Park srpsko-azerbejdžanskog prijateljstva11 min
- Dunavski park14 min
- Železnički park27 min

Obeležja kulture u blizini
- Spomen ploča Albertu Ajnštajnu i Milevi Marić4 min
- Spomenik Kralju Petru I Karađorđeviću4 min
- Vladičanski dvor5 min

Škole/Fakulteti/Vrtići u blizini
- Osnovna škola (Osnovna škola Ivan Gundulić)6 min
- Srednja škola (Gimnazija Živorad Janković)6 min
- Vrtić (Dečiji vrtić Sigridrug)3 min
- Fakultet (Univerzitet u Novom Sadu Akademija umetnosti)6 min

- Bolnica (Bolnica za bolesti zavisnosti Vita)5 min
- Klinika (Poliklinika Novakov)4 min
- Teretana (Teretana Podbara Gym)5 min
- Prodavnica (Supermarket Univerexport)3 min
- Restoran (Restoran Kafanica)4 min
- Kafana (Dukat Fensi Kafana)4 min
- Taksi stajalište (MB Taxi)17 min
- Autobuska stanica (Marka Miljanova - Kosovska)4 min
- Banka (OTP banka)6 min
- Pošta (Pošta Novi Sad 21104)7 min
Kontakt oglašivača
Krediti OTP banke
Saznaj više
Prikazana rata odnosi se na maksimalni period otplate. Kalkulator je informativnog karaktera.
* Nakon isteka 5 godina, prelazi se na varijabilnu kamatnu stopu






















