Trosoban stan na prodaju, Novi Sad - Centar, 326.888€, 78m²








326.888 €
4.191 € / m2
- Stan u zgradi
- Novo
- Prostorije: terasa
- Oglas oglašava agencija pod reg. brojem 1405
- 1 lift
- Godina izgradnje: 2026.
Opis oglasa
Predstavljamo Vam moderan i luksuzan trosoban stan koji će biti smešten u jednoj od najreprezentativnijih zgrada u samom centru Novog Sada. Idealna buduća nekretnina za život, ali kao i investicija za izdavanje.
Zgradu će odlikovati moderan dizajn i udobnost. Objekat će imati svoju recepciju, bazen, teretanu, saunu i tursko kupatilo, koje će biti na raspolaganju rezidentima ovog objekta. Zgrada ima dve podzemne etaže sa parking mestima + sedam nadzemnih spratova sa lokalima i stambenim jedinicima. Završetak gradnje je planiran za kraj 2027. godine.
Informacije o stanu:
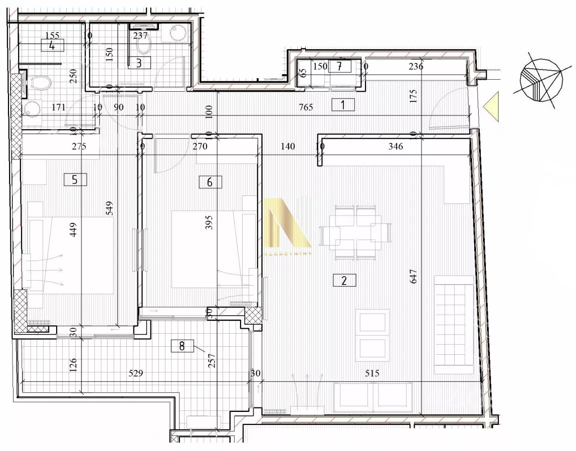
- 3.0 stan od 78.22m2 (dnevna soba sa kuhinjom 32,44m2, kupatilo 3,45m2, master soba 13m2 sa kupatilom 3,89m2, soba 10,66m2, hodnik 9,42m2, terasa 8,86m2 )
- plafon od 3-4m, troslojni parket I klasa, alu stolarija, vrhunska keramika, vrata sa magnetnim bravama, grejanje centralno/toplotne pumpe, izvodi za smart sistem, fasada od prirodnog kamena
NAPOMENA: KUPOVINA BEZ PROVIZIJE AGENCIJE! ISKAZANA CENA STANA JE SA URAČUNATIM PDV-om!
Zakažite svoju prezentaciju projekta i upoznavanje sa dinamikom plaćanja na broj telefona 066... (prikaži broj telefona) Igor Ćućuz i 066... (prikaži broj telefona) , Novi Sad, Bulevar Evrope 44, N-NEKRETNINE, upisan u registar posrednika 1405
*Sačuvaj oglas uz belešku i primaj obaveštenja o njihovom pojeftinjenju ili pojavljivanju sličnih
Prikaz stana na mapi
Parkovi u blizini
- Dunavski park12 min
- Park srpsko-azerbejdžanskog prijateljstva19 min
- Limanski park21 min

Obeležja kulture u blizini
- Spomenik Svetozaru Miletiću5 min
- Matičarsko zdanje7 min
- Galerija Matice srpske2 min

Škole/Fakulteti/Vrtići u blizini
- Osnovna škola (Privatna osnovna škola Tvrđava)6 min
- Srednja škola (Gimnazija Isidora Sekulić)5 min
- Vrtić (Dečiji vrtić Vila)4 min
- Fakultet (Univerzitet u Novom Sadu Fakultet sporta i fizičkog vaspitanja)5 min

- Bolnica (Hirurška ordinacija Aesculap)4 min
- Klinika (Poliklinika Nada Diva)4 min
- Teretana (Fitness centar World Class Bazaar)4 min
- Prodavnica (Mikromarket)4 min
- Restoran (Macchiato Kuća eat & dream)4 min
- Kafana (Pivnica Brauhaus)3 min
- Taksi stajalište (Zeleni Eko Taxi)18 min
- Autobuska stanica (Bul. Mihajla Pupina - Pothodnik)4 min
- Banka (Narodna banka Srbije)3 min
- Pošta (Pošta Novi Sad 21108)8 min
Kontakt oglašivača
Krediti OTP banke
Saznaj više
Prikazana rata odnosi se na maksimalni period otplate. Kalkulator je informativnog karaktera.
* Nakon isteka 5 godina, prelazi se na varijabilnu kamatnu stopu






















