Jednoiposoban stan na prodaju, Masarikova, 135.520€, 42m²


135.520 €
3.227 € / m2
- Centralno grejanje
- Novo
- Prostorije: kupatilo
- Oglas oglašava agencija pod reg. brojem 1784
- 1 telefonska linija
Opis oglasa
NOVOGRADNJA – CENTAR NOVOG SADA – BEZ PROVIZIJE
🏡 Na prodaju prostran jednoiposoban stan u kvalitetnoj novogradnji, u samom centru Novog Sada. Stan se nalazi na 1. spratu moderne stambene zgrade sa liftom.
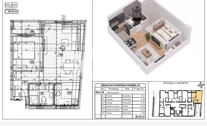
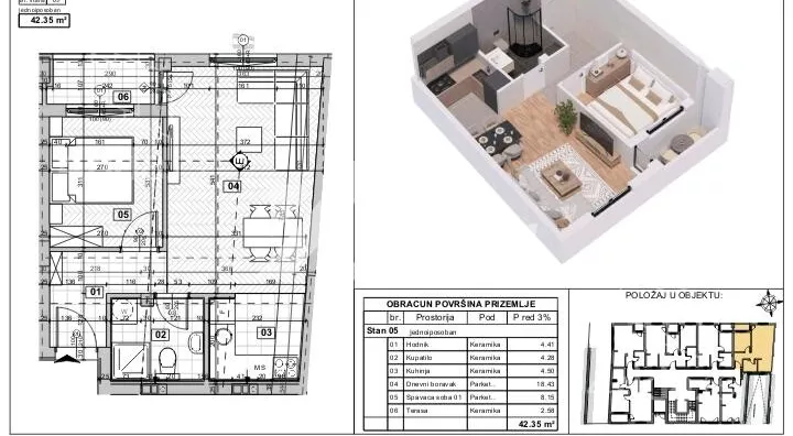
Površina: 42,35 m²
Struktura: jednoiposoban
Sprat: VP
Grejanje: centralno gradsko grejanje sa potenciometrom
Cena: 135.520€ (3.200 €/m² plus PDV)
📅 Završetak radova: maj 2027. godine
✨ Stan je u izgradnji i biće izveden po savremenim standardima, sa kvalitetnim materijalima i funkcionalnim rasporedom prostorija. Odličan izbor za stanovanje ili kao investicija u centralnoj gradskoj zoni.
📍 U neposrednoj blizini nalaze se škole, vrtići, prodavnice, gradski prevoz i pešačka zona.
📞 Za više informacija, planove i rezervaciju, kontakt 063... (prikaži broj telefona) !!!
*Sačuvaj oglas uz belešku i primaj obaveštenja o njihovom pojeftinjenju ili pojavljivanju sličnih
Prikaz stana na mapi
Parkovi u blizini
- Dunavski park14 min
- Park srpsko-azerbejdžanskog prijateljstva19 min
- Futoški park21 min

Obeležja kulture u blizini
- Katolička plebanija6 min
- Spomenik Svetozaru Miletiću7 min
- Matičarsko zdanje9 min

Škole/Fakulteti/Vrtići u blizini
- Osnovna škola (Osnovna škola Ivo Lola Ribar)6 min
- Srednja škola (Gimnazija Svetozar Marković)3 min
- Vrtić (Dečiji vrtić Plavi zec)6 min
- Fakultet (Farmaceutski fakultet Novi Sad)9 min

- Bolnica (Ginekološka bolnica Genesis)4 min
- Klinika (Poliklinika Dijagnostika Centar)4 min
- Teretana (Fitness Mim Team)2 min
- Prodavnica (IDEA)2 min
- Restoran (Restoran Tri petice)4 min
- Kafana (Kafana Šešir)1 min
- Taksi stajalište (Grand Taxi)12 min
- Autobuska stanica (Uspenska - Šafarikova)4 min
- Banka (OTP banka)7 min
- Pošta (Pošta Novi Sad 21117)7 min
Kontakt oglašivača
Krediti OTP banke
Saznaj više
Prikazana rata odnosi se na maksimalni period otplate. Kalkulator je informativnog karaktera.
* Nakon isteka 5 godina, prelazi se na varijabilnu kamatnu stopu

