Trosoban stan na prodaju, Podmorničara Đorđa Mitrovića, 145.500€, 64m²
























145.500 €
2.273 € / m2
- Stan u zgradi
- Grejanje na norveške radijatore
- Novo
- Oglas oglašava agencija pod reg. brojem 2007
- 1 garažno mesto
- 1 parking mesto
- 1 lift
- Godina izgradnje: 2025.
- Zgrada poseduje: lođa
Opis oglasa
Odlična novogradnja pouzdanog investitora, u blizini OŠ Pavle Savić.
Petokomorna PVC stolarija. Keramika je granitna I klase, kupatila imaju tuš kabine sa staklom i linijskim slivnikom. Parket hrastov debljine 22mm. Grejanje je na struju.
Zgrada sa demit fasadom. Poseban akcenat je na termo i hidro izolaciji, objekat je visokog nivoa energetske efikasnosti
Završetak radova 2026.godine.
Cene su izražene bez PDV-a(+10%).
Plaćanje je fazno, 70% prilikom overe, 20% kada bude postavljen parket i 10% useljenje.
Mogućnost kupovine putem stambenog kredita.
Povraćaj PDV-a za kupce prvog stana.
Mogućnost kupovine garažnog mesta po ceni od 10.000EUR+PDV(+20%).
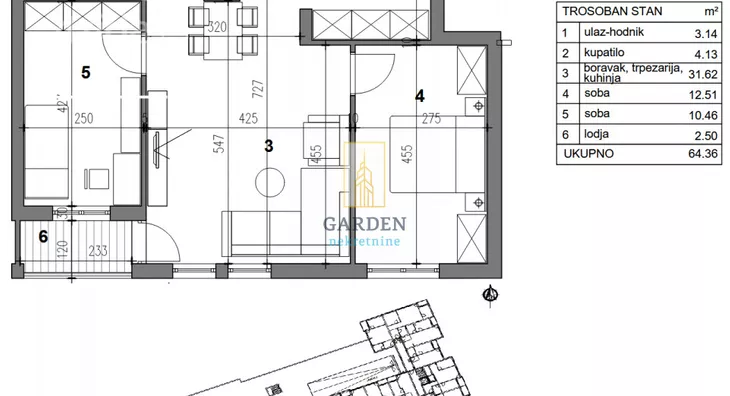
PROSTORIJE: predsoblje, dnevno-trpezarijski deo sa kuhinjom, dve spavaće sobe, kupatilo, lođa
Agencijska provizija iznosi 2%.
*Sačuvaj oglas uz belešku i primaj obaveštenja o njihovom pojeftinjenju ili pojavljivanju sličnih
Prikaz stana na mapi
Parkovi u blizini
- Zvezdarska šuma36 min
- Park Slavujev potok37 min
- Park Urbani džep50 min

Obeležja kulture u blizini
- Pašina česma9 min
- Trećepozivačka česma11 min
- Tripod13 min

Škole/Fakulteti/Vrtići u blizini
- Osnovna škola (Osnovna škola Despot Stefan Lazarević)5 min
- Srednja škola (Sedma beogradska gimnazija)6 min
- Vrtić (Dečiji vrtić Sunce)3 min
- Fakultet (Visoka građevinsko-geodetska škola Beograd)9 min

- Bolnica (Gradski zavod za plućne bolesti i tuberkulozu)12 min
- Klinika (Poliklinika i laboratorija LaboMedica)12 min
- Teretana (Body building i fitness klub Ahilej)3 min
- Prodavnica (Maxi Supermarket)1 min
- Restoran (Restoran Obećana zemlja)1 min
- Kafana (Pivnica Krigla)10 min
- Taksi stajalište (Taxi stanica)5 min
- Autobuska stanica (Stojčino Brdo)manje od 1 min
- Tramvajska stanica (Ustanička)21 min
- Trolejbuska stanica (Marčanska)30 min
- Banka (OTP banka)4 min
- Pošta (Pošta Beograd 74)4 min
Kontakt oglašivača
Krediti OTP banke
Saznaj više
Prikazana rata odnosi se na maksimalni period otplate. Kalkulator je informativnog karaktera.
* Nakon isteka 5 godina, prelazi se na varijabilnu kamatnu stopu


