Dvosoban stan na prodaju, Podmorničara Đorđa Mitrovića, 111.800€, 47m²














111.800 €
2.379 € / m2
- Stan u zgradi
- Grejanje na norveške radijatore
- Novo
- Prostorije: terasa
- Opremljenost: Prazno - internet, interfon
- Oglas oglašava agencija pod reg. brojem 2007
- 1 garažno mesto
- 1 parking mesto
- 1 lift
- Zgrada poseduje: lođa
- 1 telefonska linija
Opis oglasa
Odlična novogradnja pouzdanog investitora, u blizini OŠ Pavle Savić.
Petokomorna PVC stolarija. Keramika je granitna I klase, kupatila imaju tuš kabine sa staklom i linijskim slivnikom. Parket hrastov debljine 22mm. Grejanje je na struju, norveški radijatori.
Zgrada sa demit fasadom. Poseban akcenat je na termo i hidro izolaciji, objekat je visokog nivoa energetske efikasnosti
Završetak radova do kraja 2027.godine.
Cene su izražene bez PDV-a(+10%),
Postoji mogućnost povraćaja PDV-a za kupce prvog stana.
Mogućnost kupovine garažnog mesta po ceni od 10.000EUR+PDV(+20%).
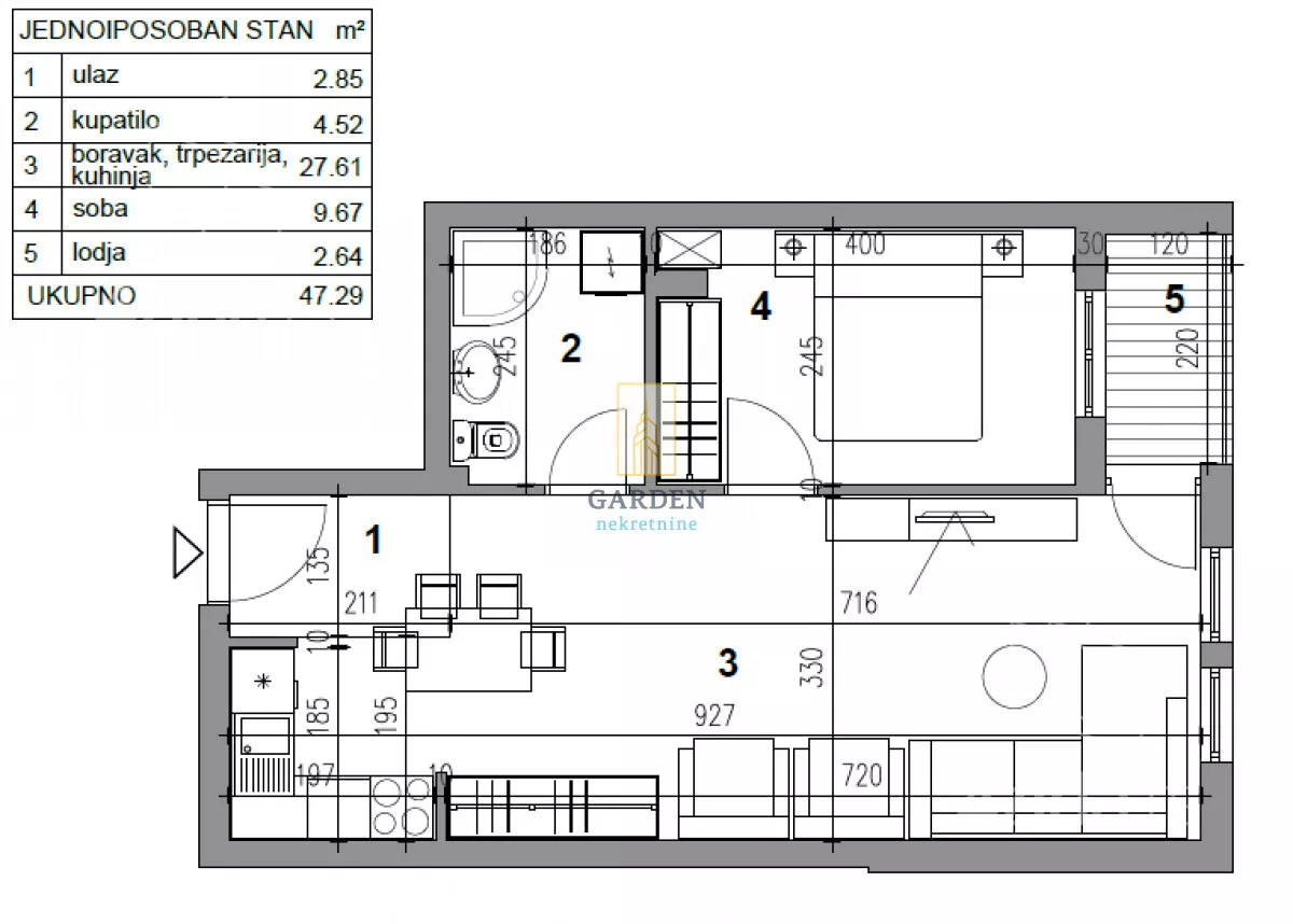
PROSTORIJE: predsoblje, dnevno-trpezarijski deo sa kuhinjom, spavaća soba, kupatilo, lođa
Agencijska provizija iznosi 2%.
*Sačuvaj oglas uz belešku i primaj obaveštenja o njihovom pojeftinjenju ili pojavljivanju sličnih
Prikaz stana na mapi
Parkovi u blizini
- Zvezdarska šuma49 min

Obeležja kulture u blizini
- Pašina česma14 min
- Trećepozivačka česma16 min
- Tripod18 min

Škole/Fakulteti/Vrtići u blizini
- Osnovna škola (Osnovna škola Pavle Savić)6 min
- Srednja škola (Sedma beogradska gimnazija)7 min
- Vrtić (Dečiji vrtić Bubamara)9 min
- Fakultet (Visoka građevinsko-geodetska škola Beograd)14 min

- Bolnica (Kovid trijažni centar - Gradski zavod za plućne bolesti i tuberkulozu)16 min
- Klinika (Klinika Impuls)16 min
- Teretana (Teretana Trio)8 min
- Prodavnica (Aman market)2 min
- Restoran (Restoran Mirijevac MG)14 min
- Kafana (Pivnica Krigla)25 min
- Taksi stajalište (Taxi stanica)11 min
- Autobuska stanica (Mirijevo 3)9 min
- Tramvajska stanica (Mite Ružića)39 min
- Trolejbuska stanica (Marčanska)46 min
- Banka (Banca Intesa)7 min
- Pošta (Pošta Beograd 78)10 min
Kontakt oglašivača
Krediti OTP banke
Saznaj više
Prikazana rata odnosi se na maksimalni period otplate. Kalkulator je informativnog karaktera.
* Nakon isteka 5 godina, prelazi se na varijabilnu kamatnu stopu


