Dvosoban stan na prodaju, Mirijevo, 111.644€, 51m²














111.644 €
2.189 € / m2
- Etažno grejanje
- Prostorije: kupatilo, terasa
- Opremljenost: Prazno - internet, interfon, klima
- Oglas oglašava agencija pod reg. brojem 1119
- 1 garažno mesto
- 1 parking mesto
- 1 lift
- Godina izgradnje: 2025.
- Kablovska
- 1 telefonska linija
Opis oglasa
PRODAJA BEZ PROVIZIJE
Prodaja stana u izgradnji – Mirijevo, mirna i porodična oaza na samo 5km od centra Beograda
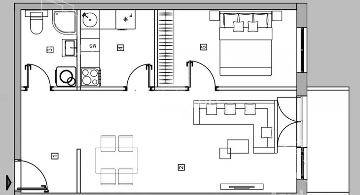
Na prodaju funkcionalan dvosoban stan u izgradnji, smešten u prizemlju moderne zgrade visokog kvaliteta gradnje, u mirnom i zelenilom okruženom delu Mirijeva. Idealno za porodično stanovanje!
Osnovne karakteristike stana:
Jedna spavaća soba
Prostran dnevni boravak sa trpezarijom u sklopu i odvojenom kuhinjom.
Kupatilo
Etažno grejanje na struju
Višeslojni kvalitetni parket
Sigurnosna ulazna vrata
Klima uređaj
Karakteristike zgrade:
Lift
Mogućnost kupovine garažnog mesta u okviru objekta
Gradnja po visokim standardima
Lokacija:
Zgrada se nalazi u tihoj ulici, okružena zelenilom
U neposrednoj blizini su škole, vrtići, prodavnice i sve što je potrebno za udoban porodični život
Samo 5km od centra Beograda, sa dobrom povezanošću sa gradom
Finansiranje i pogodnosti:
Mogućnost kupovine putem stambenog kredita
Povraćaj PDV-a za kupce prvog stana
Cena u oglasu je bez uračunatog PDV-a.
Stan je u fazi izgradnje, što ostavlja prostor za dogovor o završnim materijalima prema vašim željama.
Za više informacija i obilazak, slobodno nas kontaktirajte!
*Sačuvaj oglas uz belešku i primaj obaveštenja o njihovom pojeftinjenju ili pojavljivanju sličnih
Prikaz stana na mapi
Parkovi u blizini
- Zvezdarska šuma36 min
- Park Slavujev potok37 min
- Park Urbani džep50 min

Obeležja kulture u blizini
- Pašina česma9 min
- Trećepozivačka česma11 min
- Tripod13 min

Škole/Fakulteti/Vrtići u blizini
- Osnovna škola (Osnovna škola Despot Stefan Lazarević)5 min
- Srednja škola (Sedma beogradska gimnazija)6 min
- Vrtić (Dečiji vrtić Sunce)3 min
- Fakultet (Visoka građevinsko-geodetska škola Beograd)9 min

- Bolnica (Kovid trijažni centar - Gradski zavod za plućne bolesti i tuberkulozu)12 min
- Klinika (Poliklinika i laboratorija LaboMedica)12 min
- Teretana (Body building i fitness klub Ahilej)3 min
- Prodavnica (Maxi Supermarket)1 min
- Restoran (Restoran Obećana zemlja)1 min
- Kafana (Pivnica Krigla)10 min
- Taksi stajalište (Taxi stanica)5 min
- Autobuska stanica (Stojčino Brdo)manje od 1 min
- Tramvajska stanica (Ustanička)21 min
- Trolejbuska stanica (Marčanska)30 min
- Banka (OTP banka)4 min
- Pošta (Pošta Beograd 74)4 min
Kontakt oglašivača
Krediti OTP banke
Saznaj više
Prikazana rata odnosi se na maksimalni period otplate. Kalkulator je informativnog karaktera.
* Nakon isteka 5 godina, prelazi se na varijabilnu kamatnu stopu


