Četvorosoban stan na prodaju, Meše Selimovića 3, 200.000€, 103m²














200.000 €
1.942 € / m2
- Dupleks
- Grejanje na klimu
- U izgradnji
- Prostorije: kupatila (2), terase (2)
- Uknjiženo
- Oglas oglašava agencija pod reg. brojem 1978
- Javni parking van zone
Opis oglasa
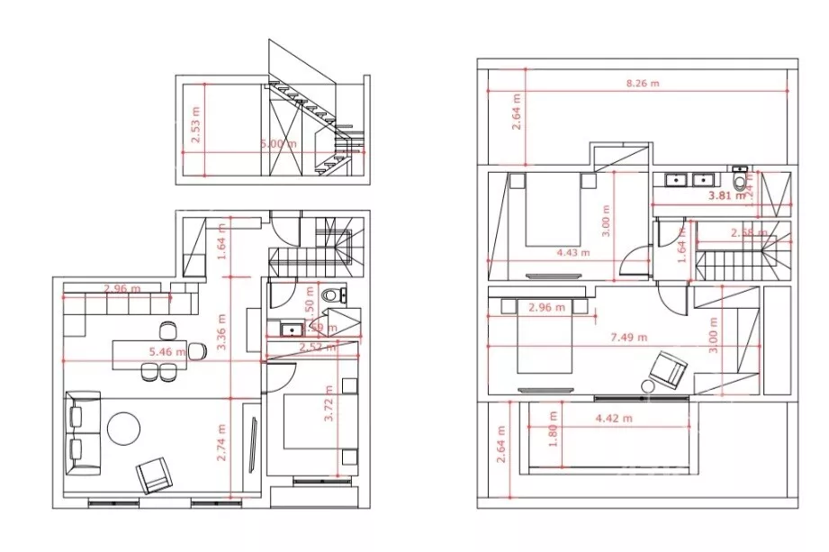
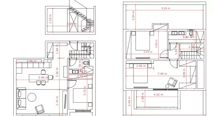
Na odličnoj lokaciji u Mirijevu prodaje se prostran četvorosoban duplex stan površine 103m², u sivoj fazi, idealan za porodično stanovanje ili investiciju.
Stan je veoma funkcionalno organizovan na dva nivoa:
Prizemlje stana čine:
ulazni hodnik
open space dnevna soba sa kuhinjom i trpezarijom
spavaća soba
kupatilo
terasa
Na spratu se nalaze:
dve spavaće sobe
drugo kupatilo
terasa
Stan poseduje odličan raspored prostorija, dosta prirodne svetlosti i dve terase koje pružaju dodatni komfor.
Za grejanje je predvidjen inverter sistem
Nalazi se na dobroj lokaciji, u blizini škole, vrtića, prodavnica i svih sadržaja neophodnih za svakodnevni život.
Uknjižen, moguća kupovina putem stambenog kredita
Za više informacija i razgledanje, pozovite.
Agencijska provizija 2%.
*Sačuvaj oglas uz belešku i primaj obaveštenja o njihovom pojeftinjenju ili pojavljivanju sličnih
Prikaz stana na mapi
Parkovi u blizini
- Zvezdarska šuma36 min
- Park Slavujev potok41 min

Obeležja kulture u blizini
- Pašina česma8 min
- Trećepozivačka česma10 min
- Spomenik Oslobodiocima Beograda10 min

Škole/Fakulteti/Vrtići u blizini
- Osnovna škola (Osnovna škola Despot Stefan Lazarević)11 min
- Srednja škola (Sedma beogradska gimnazija)11 min
- Vrtić (Dečiji vrtić Srećica)5 min
- Fakultet (Visoka građevinsko-geodetska škola Beograd)6 min

- Bolnica (Kovid trijažni centar - Gradski zavod za plućne bolesti i tuberkulozu)10 min
- Klinika (Poliklinika i laboratorija LaboMedica)8 min
- Teretana (Teretana Trio)3 min
- Prodavnica (MV Market)2 min
- Restoran (Restoran Stari gurman)9 min
- Kafana (Pivnica Krigla)14 min
- Taksi stajalište (Taxi stanica)10 min
- Autobuska stanica (Mirijevo 3)4 min
- Tramvajska stanica (Koste Trifkovića)26 min
- Trolejbuska stanica (Marčanska)34 min
- Banka (NLB Komercijalna banka)15 min
- Pošta (Pošta Beograd 78)9 min
Kontakt oglašivača
Krediti OTP banke
Saznaj više
Prikazana rata odnosi se na maksimalni period otplate. Kalkulator je informativnog karaktera.
* Nakon isteka 5 godina, prelazi se na varijabilnu kamatnu stopu

