Dvosoban stan na prodaju, Gradske lokacije, 80.000€, 52m²


80.000 €
1.538 € / m2
- Stan u zgradi
- Grejanje na gas
- U izgradnji
- U procesu uknjižavanja
- Oglas oglašava agencija pod reg. brojem 266
Opis oglasa
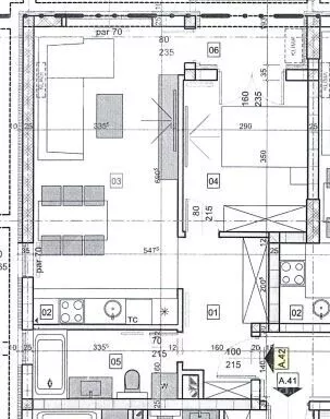
Prodajemo dvosoban stan površine 52 m² u izgradnji, u zgradi sa liftom, Kruševac,
Stan za kupce koji žele pametnu kupovinu u novogradnji – funkcionalan raspored, kvalitetnu gradnju i sigurnu investiciju kroz faznu isplatu.
Dnevni boravak sa kuhinjom i trpezarijom čini centralni deo stana, uz izlaz na terasu. Posebna prednost je što i dnevni boravak i spavaća soba imaju direktan izlaz na terasu, što značajno povećava osećaj prostora, svetlosti i komfora.
✔ terasa (izlaz iz obe prostorije)
✔ lift
✔ grejanje na gas – ekonomično
✔ inverter klima
✔ PVC stolarija (5-komorna)
✔ tarket podovi visokog kvaliteta
✔ moderna kupatila
Kvalitet gradnje i opreme izdvaja ovaj projekat u odnosu na standardnu ponudu na tržištu.
Kupovina direktno od investitora – cena je sa PDV-om.
Kupci prvog stana imaju pravo na povraćaj PDV-a.
Rok završetka: februar 2028.
Cena: 80.000 € (SA PDV-OM)
Dinamika plaćanja:
– 50% odmah: 40.000 €
– 25% u toku izgradnje: 20.000 €
– 25% po završetku: 20.000 €
Stanovi ove kvadrature su među najtraženijima.
Preostao je ograničen broj stanova na različitim spratnostima – cena će rasti kako izgradnja napreduje.
Za rezervaciju i izbor sprata pozovite odmah.
Za više informacija i razgledanje pozovite:
063... (prikaži broj telefona)
037... (prikaži broj telefona)
Tu smo za vas.
Nekretnine KRUNA – više od 30 godina poverenja.
*Sačuvaj oglas uz belešku i primaj obaveštenja o njihovom pojeftinjenju ili pojavljivanju sličnih
Prikaz stana na mapi
Parkovi u blizini
- Park minijatura Srbija17 min
- Zabavni park Šarengrad25 min

Obeležja kulture u blizini
- Spomenik rodoljubima4 min
- Spomenik kosovskim junacima5 min
- Spomenik mira11 min

Škole/Fakulteti/Vrtići u blizini
- Osnovna škola (Osnovna škola Jovan Popović)8 min
- Srednja škola (Gimnazija Kruševac)3 min
- Vrtić (Dečiji vrtić Dečiji klub)4 min
- Fakultet (Visoka hemijsko tehnološka škola strukovnih studija Kruševac)3 min

- Bolnica (Opšta bolnica Kruševac)12 min
- Klinika (Poliklinika Multimedika)5 min
- Teretana (Cafe bar & gym Mr. Hill)33 min
- Prodavnica (IDEA)2 min
- Restoran (Kafanica Nova priča)1 min
- Kafana (Gradska kafana)5 min
- Autobuska stanica (Fontana)5 min
- Banka (mts Banka)2 min
- Pošta (Pošta 37000 (šalter))8 min
Kontakt oglašivača
Krediti OTP banke
Saznaj više
Prikazana rata odnosi se na maksimalni period otplate. Kalkulator je informativnog karaktera.
* Nakon isteka 5 godina, prelazi se na varijabilnu kamatnu stopu


