Trosoban stan na prodaju, Cara Dušana, 175.080€, 58m²








175.080 €
3.019 € / m2
- Stan u zgradi
- Centralno grejanje
- U izgradnji
- Nije uknjiženo
- Oglas oglašava agencija pod reg. brojem 1299
- 1 lift
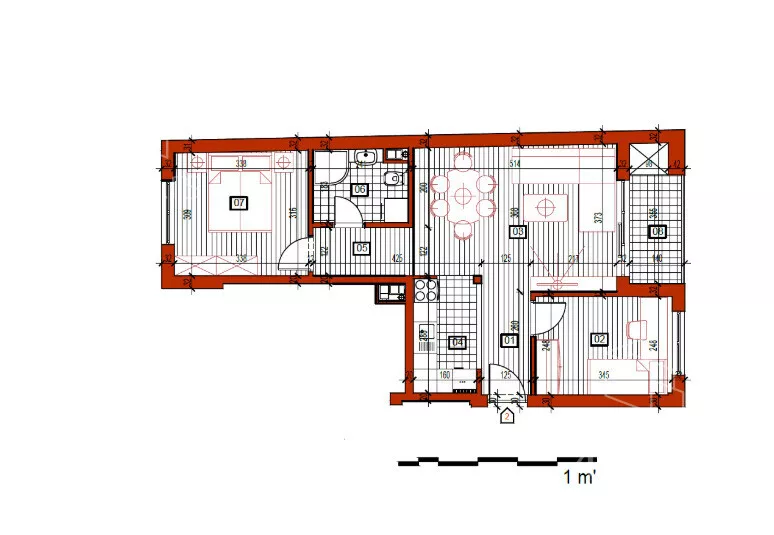
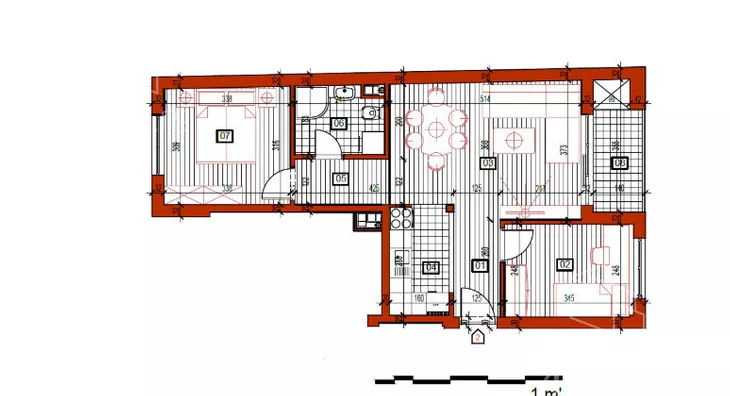
Opis oglasa
Na prodaju izuzetni stanovi u novogradnji, smešteni u mirnoj i prijatnoj ulici Cara Dušana, u jednoj od najtraženijih lokacija u Zemunu. U neposrednoj blizini nalazi se Dunav, kao i stambeno-poslovni kompleks Zemunske kapije.
Osnovne informacije:
- Dve stambene zgrade na parceli (ukupno 23 stana)
- Prva zgrada: 15 stanova (Po+P+3+Ps)
- Druga zgrada: 8 stanova (Po+P+2)
- Struktura stanova: od jednosobnih do trosobnih
- Kvadrature: od 30,82m² do 63,79m²
- Planirano useljenje: septembar 2026.
Cena:
- Cena stanova: od 3.000€/m² + PDV
- Garažno mesto: od 23.000€ (obavezna kupovina uz stan)
- Moguć povrat PDV-a za kupce prve nekretnine
Parking:
- Parking mesta obezbeđena u garaži ispod objekta
Dokumentacija:
- Građevinska dozvola
- Pravosnažnost
- Prijava radova
- Plaćena direkcija
Lokacija i povezanost:
- 2 km od centra Zemuna
- 10 minuta vožnje do centra Beograda
- Brz pristup autoputevima E-75 i E-70
- U blizini most Mihajlo Pupin
Sadržaji u blizini:
- Pošta, prodavnice, apoteke, vrtići
- Obrazovne institucije:
- Geografski fakultet
- Kriminalističko-policijska akademija
- Saobraćajno-tehnička škola
- Visoka zdravstvena škola strukovnih studija
- OŠ „Radivoj Popović“
- Škola „Veljko Radmanović“
- Institut za fiziku
- Centar za razvoj dečjih interesovanja
- Gardoš
- Sportski centar Partizan-Teleoptik
Prevoz:
- Autobuske linije: 17, 73, 84, 704, 705, 706, 707
Zašto odabrati ovu nekretninu?
- Odlična lokacija u mirnom delu Zemuna
- Kvalitetna novogradnja sa kompletnom dokumentacijom
- Blizina svih važnih sadržaja
- Idealno za život ili investiciju
📞 Za više informacija i zakazivanje razgledanja, kontaktirajte nas!
Продаются эксклюзивные квартиры в новостройке, расположенной в тихой и уютной улице Цара Душана, в одном из самых востребованных районов Земуна. В непосредственной близости находятся река Дунай, а также жилой и коммерческий комплекс «Zemunske kapije».
Основная информация:
Два жилых здания на участке (всего 23 квартиры)
Первое здание: 15 квартир (подвал + первый этаж + 3 этажа + мансарда)
Второе здание: 8 квартир (подвал + первый этаж + 2 этажа)
Планировки: от однокомнатных до трехкомнатных
Площадь: от 30,82 м² до 63,79 м²
Планируемый срок сдачи: сентябрь 2026 года
Цены:
Стоимость квартир: от 3.000 €/м² + НДС
Гаражное место: от 23.000 € (обязательная покупка вместе с квартирой)
Возможен возврат НДС для покупателей первой недвижимости
Парковка:
Парковочные места предусмотрены в подземном гараже
Документация:
Разрешение на строительство
Полная юридическая готовность
Уведомление о начале работ
Оплачены все городские сборы
Локация и транспортная доступность:
2 км до центра Земуна
10 минут езды до центра Белграда
Быстрый доступ к автомагистралям E-75 и E-70
Вблизи находится мост Михаила Пупина
Инфраструктура поблизости:
Почта, магазины, аптеки, детские сады
Образовательные учреждения:
Географический факультет
Криминалистико-полицейская академия
Транспортно-техническая школа
Высшая медицинская школа профессиональных исследований
Начальная школа «Радивой Попович»
Школа «Велько Радманович»
Институт физики
Центр развития детских интересов
Гардош
Спортивный центр «Партизан-Телеоптик»
Транспорт:
Автобусные линии: 17, 73, 84, 704, 705, 706, 707
Почему стоит выбрать эту недвижимость?
Отличное расположение в тихой части Земуна
Качественное новое строительство с полной документацией
Близость всех необходимых объектов инфраструктуры
Идеально как для проживания, так и для инвестиций
Для получения дополнительной информации и записи на просмотр свяжитесь с нами!
Exclusive apartments for sale in a newly built development, located in a quiet and pleasant Cara Dušana Street, in one of the most sought-after areas of Zemun. The Danube River and the residential-commercial complex “Zemunske kapije” are in close proximity.
Basic information:
Two residential buildings on the plot (23 apartments in total)
First building: 15 apartments (basement + ground floor + 3 floors + penthouse)
Second building: 8 apartments (basement + ground floor + 2 floors)
Apartment types: from one-bedroom to three-bedroom units
Size range: from 30.82 m² to 63.79 m²
Planned completion: September 2026
Prices:
Apartment price: from €3,000/m² + VAT
Garage space: from €23,000 (mandatory purchase with apartment)
VAT refund available for first-time property buyers
Parking:
Parking spaces provided in the underground garage
Documentation:
Building permit
Fully valid legal documentation
Construction officially registered
Development fees paid
Location & connectivity:
2 km from Zemun center
10-minute drive to Belgrade city center
Fast access to highways E-75 and E-70
Close to Mihajlo Pupin Bridge
Nearby amenities:
Post office, shops, pharmacies, kindergartens
Educational institutions:
Faculty of Geography
Academy of Criminalistic and Police Studies
Transport and Technical School
College of Health Studies
Primary School “Radivoj Popović”
School “Veljko Radmanović”
Institute of Physics
Center for Children’s Development
Gardoš
Sports Center Partizan-Teleoptik
Transport:
Bus lines: 17, 73, 84, 704, 705, 706, 707
Why choose this property?
Excellent location in a მშვიდ and quiet part of Zemun
High-quality new construction with complete documentation
Close to all essential amenities
Ideal for living or investment
*Sačuvaj oglas uz belešku i primaj obaveštenja o njihovom pojeftinjenju ili pojavljivanju sličnih
Prikaz stana na mapi
Parkovi u blizini
- Park Sava Kovačević18 min
- Dečje igralište23 min
- Park Jelovac25 min

Obeležja kulture u blizini
- Livnica Pantelić4 min
- Kuća sa sunčanim satom21 min
- Kuća Dimitrija Davidovića24 min

Škole/Fakulteti/Vrtići u blizini
- Osnovna škola (Specijalna osnovna škola Branko Pešić)5 min
- Srednja škola (Specijalna srednja škola Veljko Ramadanović)10 min
- Vrtić (Dečiji vrtić Povratak prirodi)2 min
- Fakultet (BusinessAcademy)13 min

- Bolnica (Kovid ambulanta Zemun - Gradski zavod za plućne bolesti i tuberkulozu)6 min
- Klinika (Poliklinika O2)9 min
- Teretana (Namaste Yoga Centar)4 min
- Prodavnica (Shop&Go)3 min
- Restoran (Restoran A la Grekos)9 min
- Kafana (Kafana Biblioteka kod Majora)13 min
- Taksi stajalište (Taxi stanica)16 min
- Autobuska stanica (Tršćanska)2 min
- Banka (Poštanska štedionica)17 min
- Pošta (Pošta Beograd 82)10 min
Kontakt oglašivača
Krediti OTP banke
Saznaj više
Prikazana rata odnosi se na maksimalni period otplate. Kalkulator je informativnog karaktera.
* Nakon isteka 5 godina, prelazi se na varijabilnu kamatnu stopu


