Troiposoban stan na prodaju, Durlan, 245.200€, 111m²






245.200 €
2.209 € / m2
- Etažno grejanje
- Prostorije: kupatilo, terasa
- Oglas oglašava agencija pod reg. brojem 940
- 1 lift
- 1 telefonska linija
Opis oglasa
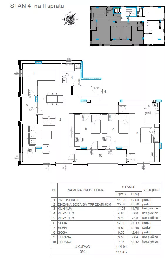
Prodaje se troiposoban stan u novogradnji u Durlanu u stambenoj zgradi koja ima P+4 sprata. Stan je površine 111,46m2, na II spratu. Struktura stana: ulazni hodnik, dnevni boravak sa trpezarijom i kuhinjom, tri spavaće sobe, kupatilo i terasa. Stanovi su veoma kvalitetne i moderne gradnje: fasada po standardima energetske efikasnosti objekata, 10cm stiropor spoljne izolacije, izolacija podova i zidova, PVC stolarija, 4s klima gard stakla, elektro podizači za roletne, eg kompletno, masiv parket , sanitarija prve klase. Zgrada je smeštena u mirnoj ulici na lepoj lokaciji, idealnoj za mirno, porodično stanovanje i u neposrednoj je blizini svih objekata neophodnih za svakodnevni život. U cenu je uključen PDV i kupci prvog stana imaju pravo na povraćaj PDV-a u iznosu od 10%. Za više informacija o ovoj ili drugim nekretninama i zakazivanje razgledanja kontaktirajte agenta na broj telefona iz oglasa (poziv, sms, viber) ili putem e-maila. Kompletnu ponudu dostupnih nekretnina možete pronaći na našem sajtu. Agencija Proagent nekretnine je upisana u Registru posrednika pod brojem: 940.
*Sačuvaj oglas uz belešku i primaj obaveštenja o njihovom pojeftinjenju ili pojavljivanju sličnih
Prikaz stana na mapi
Parkovi u blizini
- Park Svetog Save19 min
- Park složnih komšija20 min
- Park heroja NOB-a30 min

Obeležja kulture u blizini
- Ranohrišćanska grobnica7 min
- Ranohrišćanska bazilika8 min
- Ćele kula10 min

Škole/Fakulteti/Vrtići u blizini
- Osnovna škola (Osnovna škola Čegar)9 min
- Srednja škola (Trgovinska škola Niš)9 min
- Vrtić (Dečiji vrtić Meca Dobrica)8 min
- Fakultet (Fakultet za pravne i poslovne studije Dr Lazar Vrkatić)9 min

- Bolnica (Bolnica Đorić)7 min
- Klinika (Family Medica poliklinika)4 min
- Teretana (Fitness centar TNT Gym)4 min
- Prodavnica (Maxi Supermarket)1 min
- Restoran (Restoran President Lux)8 min
- Kafana (Kafana Stari ambar)4 min
- Taksi stajalište (Duga taksi)18 min
- Autobuska stanica (RK Sinđelić)1 min
- Banka (Poštanska štedionica)3 min
- Pošta (Pošta Niš 3)2 min
Kontakt oglašivača
Krediti OTP banke
Saznaj više
Prikazana rata odnosi se na maksimalni period otplate. Kalkulator je informativnog karaktera.
* Nakon isteka 5 godina, prelazi se na varijabilnu kamatnu stopu


