Troiposoban stan na prodaju, Durlan, 141.460€, 64m²






141.460 €
2.210 € / m2
- Stan u zgradi
- Etažno grejanje
- Novo
- Prostorije: kupatilo, ostava, terasa
- Opremljenost: internet
- Uknjiženo
- Oglas oglašava agencija pod reg. brojem 6831
- Parking u dvorištu zgrade
- 1 lift
- Tip interneta: optički
- Kablovska
- 1 telefonska linija
Opis oglasa
MODERNA NOVOGRADNjA – DIREKTNA PRODAJA – POVRAĆAJ PDV-a
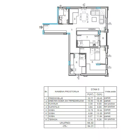
Izdvajamo iz ponude savremeni stambeni projekat u izgradnji, smešten u mirnom delu grada, u blizini Tržnog centra Roda. U ponudi su stanovi različite strukture i kvadrature, a mi izdvajamo troiposoban stan površine 64,3 m2. Stan je dostupan na drugom spratu, a prostor je pažljivo organizovan kako bi pružio maksimalnu funkcionalnost i udobnost. Stan obuhvata ulazni hodnik, dnevni boravak povezan sa trpezarijskim delom i kuhinjom, tri spavaće sobe, terasu, i kupatilo. Savremeni koncept uređenja i kvalitetna gradnja čine ovu nekretninu praktičnim i dugoročno isplativim izborom.
Svi radovi izvode se temeljno, uz upotrebu najsavremenijih i najkvalitetnijih materijala renomiranih građevinskih proizvođača, što garantuje dugotrajnost i vrhunski standard stanovanja. Zgrada je opremljena video nadzorom radi dodatne sigurnosti, i bešumnim liftom, koji doprinosi komforu stanovanja. Spoljna stolarija je PVC petokomorna sa niskoemisionim staklima 4S i aluminijumskim roletnama, čime se postiže odlična termo i zvučna izolacija. U objektu je predviđeno etažno grejanje na struju, koje omogućava potpunu kontrolu potrošnje i komfor tokom cele godine. Slojevita međuspratna konstrukcija sa termoizolacijom od stiropora i akustičnom zaštitom fono blok pločama, za potpunu tišinu i toplinu doma. Poseban akcenat stavljen je na unutrašnje završne radove – biće ugrađen prvoklasni višeslojni parket, sobna vrata od medijapana, ulazna sigurnosna vrata visokog kvaliteta, granitne pločice renomiranih proizvodjača, na terasi obložene protivkliznim materijalima za dodatnu sigurnost, konzolne wc šolje sa ugradnim vodokotlićima.
Ono što ovu nekretninu posebno izdvaja jeste sama lokacija – u pitanju je miran i bezbedan kraj, bez buke, a opet odlično povezan sa ostalim delovima grada. U neposrednoj blizini nalazi se vrtić, škola, park, što čini svakodnevicu porodica praktičnom i organizovanom. Kompletna infrastruktura, dostupnost prodavnica, apoteka, poliklinika, i drugih važnih sadržaja dodatno obezbeđuju lagodan i siguran život.
Cena stana je 1.910 €/m2 + PDV. Kupovina je direktno od investitora, po istoj ceni – bez plaćanja provizije. Ono što je takođe važno istaći kod ove nekretnine, jeste da je za kupce koji ispunjavaju uslove (kupovina prve nekretnine) omogućen povraćaj PDV-a. Dostupna su i parking mesta na platou i u podzemnoj garaži. Očekivani završetak radova je avgust 2027. godine.
Zgrada poseduje svu urednu dokumentaciju, pa je moguća brza i bezbedna kupovina, uz kompletnu pravnu podršku i asistenciju prilikom overe ugovora kod javnog beležnika. Za sve dodatne informacije i zakazivanje obilaska, možete nas kontaktirati na brojeve 064... (prikaži broj telefona) i 064... (prikaži broj telefona) . Više detalja i sličnih ponuda dostupno je na sajtu http://deltanekretnine.rs
*Sačuvaj oglas uz belešku i primaj obaveštenja o njihovom pojeftinjenju ili pojavljivanju sličnih
Prikaz stana na mapi
Parkovi u blizini
- Park Svetog Save14 min
- Park složnih komšija22 min
- Park heroja NOB-a33 min

Obeležja kulture u blizini
- Ranohrišćanska grobnica8 min
- Ranohrišćanska bazilika9 min
- Ćele kula9 min

Škole/Fakulteti/Vrtići u blizini
- Osnovna škola (Osnovna škola Čegar)11 min
- Srednja škola (Trgovinska škola Niš)7 min
- Vrtić (Dečiji vrtić Zum-Zum)11 min
- Fakultet (Univerzitet u Nišu Medicinski fakultet)8 min

- Bolnica (Bolnica Đorić)7 min
- Klinika (Poliklinika Bocokić)4 min
- Teretana (Top Form Plus Aerobik Centar)10 min
- Prodavnica (IDEA)5 min
- Restoran (Restoran Premijer)7 min
- Kafana (Kafana Stari ambar)9 min
- Taksi stajalište (Duga taksi)17 min
- Autobuska stanica (Proleterska)2 min
- Banka (Raiffeisen Bank)5 min
- Pošta (Pošta Niš 3)7 min
Kontakt oglašivača
Krediti OTP banke
Saznaj više
Prikazana rata odnosi se na maksimalni period otplate. Kalkulator je informativnog karaktera.
* Nakon isteka 5 godina, prelazi se na varijabilnu kamatnu stopu


