Dvosoban stan na prodaju, Majke Kujundžić, 213.500€, 61m²


213.500 €
3.500 € / m2
- Stan u zgradi
- Podno grejanje
- Novo
- Prostorije: terasa
- Opremljenost: Prazno - interfon, kanalizacija
- Oglas oglašava agencija pod reg. brojem 167
- 1 garažno mesto
- 1 lift
- Kanalizacija
- Godina izgradnje: 2025.
- 1 telefonska linija
Opis oglasa
Zvezdara, Cvetkova pijaca - Majke Kujundžić
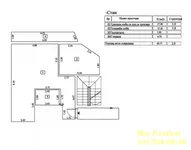
2.0, 61m2 (terasa 7m2), 2/4, podno grejanje, lift, telefon, interfon, garaža
U ponudi su novi, dvosobni, moderno projektovani stanovi u kvalitetnoj stambenoj zgradi na odličnoj lokaciji na Zvezdari, u ulici Majke Kujundžić. Zgrada je izvedena po savremenim standardima gradnje, sa visokokvalitetnim materijalima, energetskom efikasnošću i odličnom zvučnom i toplotnom izolacijom.
Funkcionalan raspored i maksimalna iskorišćenost prostora, velike staklene površine i obilje prirodne svetlosti, izuzetno završno uređenje stanova!
Karakteristike zgrade:
– moderna fasada;
– lift nove generacije;
– video-interfon i kontrolisani ulaz;
– podzemna garaža u okviru objekta;
– mirno i izuzetno povezano okruženje (neposredna blizina doma zdravlja, pijace, škola, vrtića, prevoza, prodavnica).
Uz stanove su opciono dostupna parking mesta u podzemnoj garaži ispod zgrade po ceni od 26.000€ bez uračunatog PDV-a.
U cenu stana je uračunat PDV.
Građevinska dozvola.
Agencijska provizija 2%.
*Sačuvaj oglas uz belešku i primaj obaveštenja o njihovom pojeftinjenju ili pojavljivanju sličnih
Prikaz stana na mapi
Parkovi u blizini
- Park Slavujev potok15 min
- Zvezdarska šuma21 min
- Park Urbani džep22 min

Obeležja kulture u blizini
- Pašina česma5 min
- Trećepozivačka česma8 min
- Osnovna škola Kralj Petar II Karađorđević11 min

Škole/Fakulteti/Vrtići u blizini
- Osnovna škola (Osnovna škola Ćirilo i Metodije)5 min
- Srednja škola (Farmaceutsko-fizioterapeutska škola)5 min
- Vrtić (Dečiji vrtić Veseljko)6 min
- Fakultet (Visoka građevinsko-geodetska škola Beograd)7 min

- Bolnica (MedicOne - specijalna bolnica za plastičnu, estetsku i rekonstruktivnu hirurgiju)5 min
- Klinika (Poliklinika i laboratorija LaboMedica)7 min
- Teretana (Fitness centar Maxifit Garage)5 min
- Prodavnica (Prodavnica Sunce)3 min
- Restoran (Restoran Zavičaj Zvezdara)2 min
- Kafana (Kafana Bajk)3 min
- Taksi stajalište (Radio Beo Taxi)5 min
- Autobuska stanica (Zvezdara)5 min
- Tramvajska stanica (Pijaca Zvezdara)4 min
- Trolejbuska stanica (Dr Velizara Kosanovića)7 min
- Banka (AIK Banka)6 min
- Pošta (Pošta Beograd 151)5 min
Kontakt oglašivača
Stambeni krediti

- Period otplate od
96 -360 meseca
- NKS 4.75%
EKS 5.74%
Fiksna kamatna stopa
- Bez troškova obrade kredita
Za iznos kredita ispod 30000 € poseti sajt banke.
Saznaj višestranici kreditnih kalkulatora
Keš krediti
Period otplate
13 meseci




















