Četvorosoban stan na prodaju, Cerak, 281.625€, 112m²








281.625 €
2.515 € / m2
- Grejanje na gas
- Renovirano
- Prostorije: kupatila (3+), terasa
- Opremljenost: Prazno - klima
- Oglas oglašava agencija pod reg. brojem 1791
- 1 garažno mesto
- 1 parking mesto
- 1 lift
- 1 telefonska linija
Opis oglasa
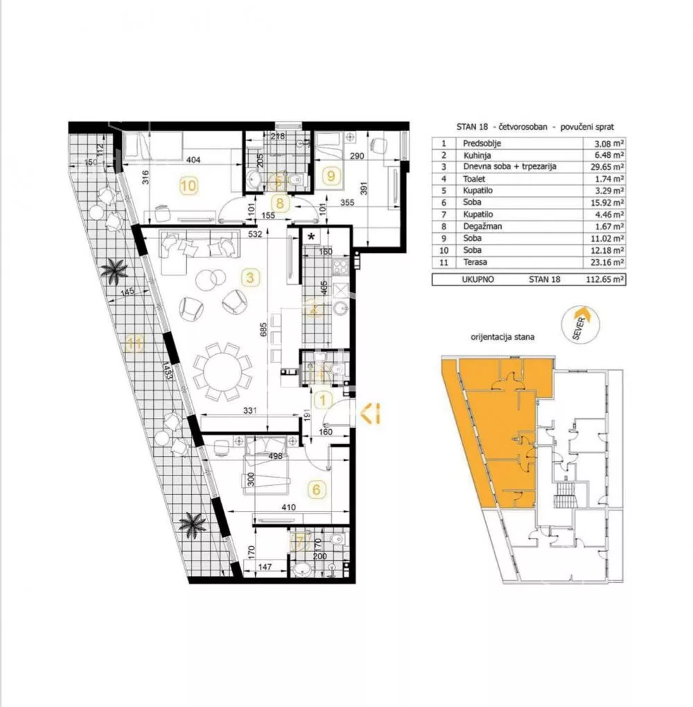
NOVOGRADNJA - PENTHOUSE 4.0 LUX STAN NA ATRAKTIVNOJ LOKACIJI, CERAK, PRODAJA BEZ PROVIZIJE! Kontakt: +38... (prikaži broj telefona) Cena: 281.625 € + PDV Lokacija: Čukarica, Cerak, sprat povučen Površina: 112.65 m2 Struktura: Četvorosoban stan koji se sastoji od: - Prostrane open space dnevne sobe; - Tri spavaće sobe; - Kuhinje i trpezarije; - Dva kupatila; - Toaleta; - Predsoblja; - Deganžmana; - Velike terase. OPIS: Na prodaju četvorosoban penthouse, površine 112.65 m2, koji se nalazi u na poslednjem, povučenom spratu, moderne zgrade, izuzetno kvalitetne nove gradnje na Ceraku, sa rokom završetka radova - leto 2027. godine! Stan je izuzetno svetao, sa odličnim, funkcionalnim rasporedom! Iz komotnog ulaznog predsoblja, dolazi se do open space dnevnog boravka, čijom celom dužinom se prostire komotna terasa sa koje se pruža lep pogled. Dnevna soba je direktno povezana sa kuhinjom i trpezarijom, koji su izuzetno lepo pozicionirani i dovoljno prostrani za funkcionisanje višečlane porodice. Stan poseduje i master spavaću sobu sa izlazom na terasu i kupatilom. Takođe, odvojeno od master spavaće sobe, nalazi se drugi spavaći blok u kome se nalaze još dve spavaće sobe, od kojih jedna ima i izlaz na terasu, dok obe sobe dele zajedničko kupatilo. Dodatni toalet, smešten blizu ulaza u stan, pruža dodatni komfor stanu! Stan je obložen hrastovim parketom prve klase, a poseduje i kvalitetnu PVC stolariju sa niskoemisionim staklom, komarnicima, aluminijumske roletne sa elektromotorima, kvalitetna sobna i sigurosna ulazna vrata, granitnu keramiku i sanitariju prve klase, kao i ugradne vodokotliće. Grejanje je centralno na gas sa ugradjenim kalolimetrima. Stan poseduje Fondital aluminijumske radijatore sa instalacijom u podu, kao i Inverter klima Split sistem, koji omogućava ekonomično i tiho hladjenje i grejanje. Zgrada u kojoj se stan nalazi sadrži putnički lift najsavremenije generacije, dok je fasada moderna, sa maksimalnom spoljnom termoizolacijom. U okviru objekta se nalaze i garažna parking mesta, do kojih vlasnici mogu direktno pristupiti liftom. Stan je odlično pozicioniran, nalazi se u mirnom, zelenom okruženju perspektivnog naselja Cerak, sa svom dostupnom infrastrukturom: škole, vrtići, prodavnice, pošte, kafići, restorani, kao i odlična saobraćajna povezanost sa ostalim delovima grada. Za svaku preporuku!!! Bez agenciske provizije!
*Sačuvaj oglas uz belešku i primaj obaveštenja o njihovom pojeftinjenju ili pojavljivanju sličnih
Prikaz stana na mapi
Parkovi u blizini
- Park Bele vode17 min
- Košutnjak31 min
- Park Banovo Brdo45 min

Obeležja kulture u blizini
- Česma izvor Bele vode7 min
- Česma izvor Zmajevac10 min
- Spomenik partizanskim borcima Žarkova12 min

Škole/Fakulteti/Vrtići u blizini
- Osnovna škola (Osnovna škola Ujedinjene nacije)5 min
- Srednja škola (Obrazovni sistem Crnjanski)8 min
- Vrtić (Dečiji vrtić Čarobni kutak)6 min
- Fakultet (Visoka sportska i zdravstvena škola)11 min

- Bolnica (Eterna Hospital)13 min
- Klinika (Poliklinika Vaša kuća zdravlja)9 min
- Teretana (Budafit fitness studio)5 min
- Prodavnica (Market S Maksima Plus)5 min
- Restoran (Restoran Pink)7 min
- Kafana (Beertija pub)18 min
- Taksi stajalište (Taxi stanica)8 min
- Autobuska stanica (Ljubice Ivošević)6 min
- Tramvajska stanica (Trebevićka)34 min
- Banka (Banca Intesa)5 min
- Pošta (Pošta Beograd 69)9 min
Kontakt oglašivača
Krediti OTP banke
Saznaj više
Prikazana rata odnosi se na maksimalni period otplate. Kalkulator je informativnog karaktera.
* Nakon isteka 5 godina, prelazi se na varijabilnu kamatnu stopu


