Četvorosoban stan na prodaju, Cerak, 281.625€, 112m²








281.625 €
2.515 € / m2
Za ovaj oglas se neko interesovao. Pozovi ranije kako ne bi propustio priliku.
- Centralno grejanje
- Prostorije: kupatilo, terasa
- Opremljenost: Prazno - interfon
- Oglas oglašava agencija pod reg. brojem 1288
- 1 parking mesto
- 1 lift
- Zgrada poseduje: podrum
- 1 telefonska linija
Opis oglasa
Na mirnoj lokaciji, na granici Filmskog grada i naselja Žarkovo, gde gradska gužva ustupa mesto miru i tišini, nalazi se stambeni objekat u izgradnji - idealan za one koji biraju komfor i kvalitet.
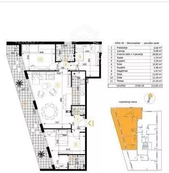
Na poslednjem, povučenom spratu, nalazi se prostran četvorosoban stan površine 112m2, pažljivo projektovan da zadovolji potrebe savremenog života.
Veliki open space dnevni boravak sa trpezarijom i kuhinjom, pun prirodnog svetla, tri komforne spavaće sobe idealne za porodični život ili rad od kuće, kupatilo i dodatni toalet odlično organizovani za svakodnevnu funkcionalnost. Kvalitet gradnje potpisan je visedecenijskim iskustvom investitora. Završetak radova planiran je za kraj 2026.
Poslednji stan u ponudi, zakažite svoj termin prezentacije.
Cena je izražena bez PDV-a.
Agencijska nadoknada iznosi 2%.
*Sačuvaj oglas uz belešku i primaj obaveštenja o njihovom pojeftinjenju ili pojavljivanju sličnih
Prikaz stana na mapi
Parkovi u blizini
- Park Bele vode17 min
- Košutnjak31 min
- Park Banovo Brdo45 min

Obeležja kulture u blizini
- Česma izvor Bele vode6 min
- Česma izvor Zmajevac9 min
- Spomenik partizanskim borcima Žarkova12 min

Škole/Fakulteti/Vrtići u blizini
- Osnovna škola (Osnovna škola Ujedinjene nacije)5 min
- Srednja škola (Obrazovni sistem Crnjanski)8 min
- Vrtić (Dečiji vrtić Čarobni kutak)6 min
- Fakultet (Visoka sportska i zdravstvena škola)10 min

- Bolnica (Eterna Hospital)13 min
- Klinika (Poliklinika Vaša kuća zdravlja)9 min
- Teretana (Budafit fitness studio)5 min
- Prodavnica (Market S Maksima Plus)5 min
- Restoran (Restoran Pink)7 min
- Kafana (Beertija pub)18 min
- Taksi stajalište (Taxi stanica)8 min
- Autobuska stanica (Ljubice Ivošević)6 min
- Tramvajska stanica (Trebevićka)34 min
- Banka (Banca Intesa)5 min
- Pošta (Pošta Beograd 69)9 min
Kontakt oglašivača
Za ovaj oglas se neko interesovao. Pozovi ranije kako ne bi propustio priliku.
Krediti OTP banke
Saznaj više
Prikazana rata odnosi se na maksimalni period otplate. Kalkulator je informativnog karaktera.
* Nakon isteka 5 godina, prelazi se na varijabilnu kamatnu stopu






















