Četvorosoban stan na prodaju, Bežanijskih Ilegalaca, 392.600€, 106m²


























392.600 €
3.704 € / m2
- Grejanje na toplotnu pumpu
- Novo
- Prostorije: terasa
- Oglas oglašava agencija pod reg. brojem 1294
- 1 garažno mesto
- 1 lift
- 1 telefonska linija
Opis oglasa
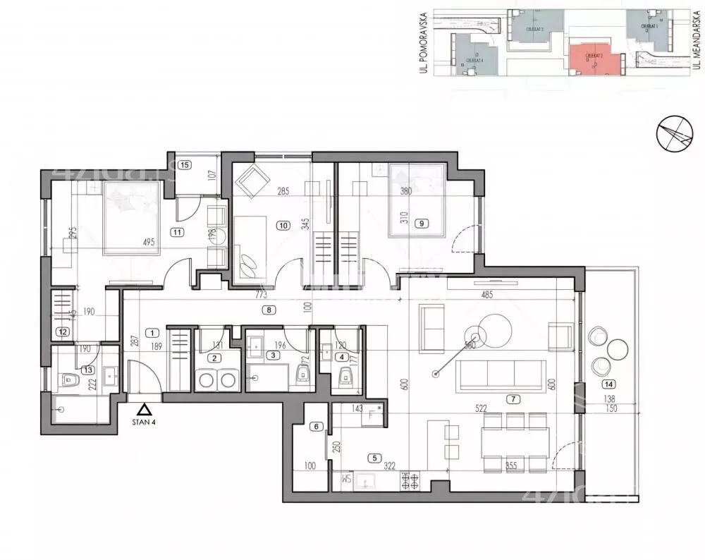
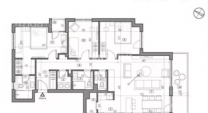
U ponudi je izuzetan stan u novogradnji vrhunskog kvaliteta, smešten u mirnoj i povučenoj ulici na Bežanijskoj kosi 2, u modernom kompleksu građenom u stilu kondominijuma.
Stan površine 106 m² nalazi se na povučenom spratu i pruža poseban osećaj privatnosti.
Po strukturi je četvorosoban, pažljivo projektovan da pruži maksimalnu funkcionalnost i komfor – idealan kako za porodičan život, tako i za one koji žele luksuzan prostor bez kompromisa.
Objekat je trenutno u izgradnji, a planirani rok za useljenje je druga polovina 2027. godine.
Objekat se gradi od materijala visokog kvaliteta, sa akcentom na savremeni stil života i dugoročnu vrednost nekretnine.
U neposrednoj blizini nalaze se škola, vrtić, kao i svi neophodni sadržaji za svakodnevni život, što ovu lokaciju čini izuzetno praktičnom i traženom.
Postoji mogućnost kupovine garažnog mesta u okviru objekta.
Cena stana je izražena bez PDV-a. Moguća kupovina na kredit.
Ova nekretnina predstavlja savršen spoj luksuza, lokacije i kvaliteta – prava prilika za kupce koji žele više od običnog stana.
Posrednička provizija u skladu sa uslovima poslovanja 2%
*Sačuvaj oglas uz belešku i primaj obaveštenja o njihovom pojeftinjenju ili pojavljivanju sličnih
Prikaz stana na mapi
Parkovi u blizini
- Park Republike Argentine17 min
- Park Blok 7030 min
- Dečje igralište39 min

Obeležja kulture u blizini
- Hangar Starog aerodroma na Novom Beogradu8 min
- Česma10 min
- Stara osnovna škola9 min

Škole/Fakulteti/Vrtići u blizini
- Osnovna škola (Škola matematike Moja Škola)7 min
- Srednja škola (Srednja politehnička škola Politehnika)8 min
- Vrtić (Dečiji vrtić Zvezdana prašina)5 min
- Fakultet (Visoka tehnička škola strukovnih studija Beograd)10 min

- Bolnica (Opšta bolnica Avala)7 min
- Klinika (Poliklinika As Medicus Biorezonanca)7 min
- Teretana (Fitness klub Jump)2 min
- Prodavnica (Maxi Supermarket)5 min
- Restoran (Restoran Tema)7 min
- Kafana (Kafana Savski biseri)17 min
- Taksi stajalište (Taxi stanica)6 min
- Autobuska stanica (Marka Ristića)2 min
- Banka (Banca Intesa)5 min
- Pošta (Pošta Beograd 134)3 min
Kontakt oglašivača
Krediti OTP banke
Saznaj više
Prikazana rata odnosi se na maksimalni period otplate. Kalkulator je informativnog karaktera.
* Nakon isteka 5 godina, prelazi se na varijabilnu kamatnu stopu


