Trosoban stan na prodaju, Beograd na vodi, 288.888€, 70m²






















288.888 €
4.127 € / m2
- Centralno grejanje
- Prostorije: kuhinja, ostava, terasa
- Oglas oglašava agencija pod reg. brojem 1250
- Godina izgradnje: 2027.
Opis oglasa
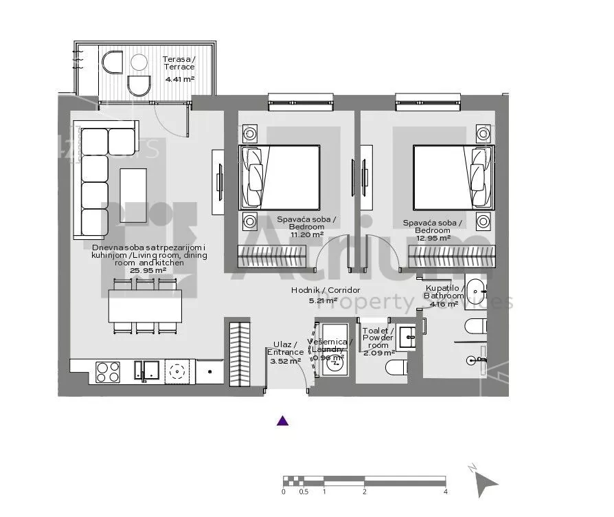
Stan se nalazi na 9. spratu, prostire se na 70.45m2, prostran open space dnevni boravak objedinjuje dnevnu sobu, trpezariju i kuhinju, sa direktnim izlazom na terasu sa prelepim pogledom. Stan takođe poseduje dve komforne spavaće sobe, moderno kupatilo, dodatni toalet za goste i praktičnu odvojenu vešernicu. Stan je orijentisan ka unutrašnjem dvorištu.
BW Vizia, nova stambena zgrada u srcu Beograda na Vodi, pruža jedinstvene sadržaje za sport i rekreaciju, smeštena neposredno uz novi Linijski park i pešački most koji spaja Senjak s Beogradom na vodi.
Ova stambena zgrada je centralni deo novog kompleksa, smeštenog jugozapadno od mosta Gazela, ističući se kao spoj dinamičnog gradskog trga, muzeja i mirne zelene zone unutrašnjeg dvorišta. Na kratkoj pešačkoj udaljenosti su Sava Promenada, planirani pešački most i Linijski park, povezujući kompleks s novobeogradskim šetalištem.
Kupovina garažnog mesta je obavezna uz stan. Cena garažnog mesta u ovoj zgradi iznosi 25.000 €.
Zgrada će biti spremna za useljenje od septembra 2027. godine.
BW Vizia nije samo mesto za stanovanje, već je zamisljena kao sportsko središte, s modernim sportskim sadržajima na otvorenom i u zatvorenom prostoru. Uređeno unutrašnje dvorište pruža prostor za druženje, opuštanje i igru, uključujući košarkaški teren i dečije igralište.
Plaćanje se vrši po specijanom planu otplate na 7 rata.
Bez agencijske provizije!
Postoji mogućnost povrata PDV-a za kupce prvog stana.
*Sačuvaj oglas uz belešku i primaj obaveštenja o njihovom pojeftinjenju ili pojavljivanju sličnih
Prikaz stana na mapi
Kontakt oglašivača
Krediti OTP banke
Saznaj više
Prikazana rata odnosi se na maksimalni period otplate. Kalkulator je informativnog karaktera.
* Nakon isteka 5 godina, prelazi se na varijabilnu kamatnu stopu

