Trosoban stan na prodaju, Beograd na vodi, 262.888€, 66m²







262.888 €
3.983 € / m2
- Orijentacija ka: jugoistok
- Oglas oglašava agencija pod reg. brojem 1250
- 1 garažno mesto
Opis oglasa
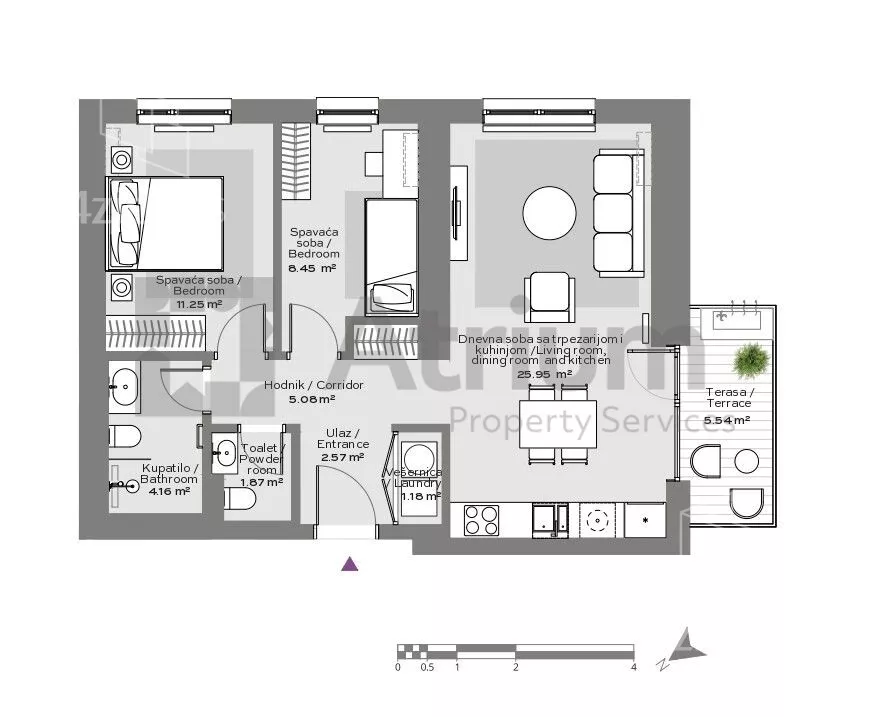
Vrlo praktična struktura ovog stana nudi dve spavaće sobe, dnevni boravak sa trpezarijom, otvorenu kuhinju, kupatilo, toalet, vešernicu i terasu, stan se prostire na 66.06m2. Odličan za porodicu ili investiciju.
Zgrada će biti spremna za useljenje od juna 2027. godine. Kupovina garažnog mesta je obavezna uz stan. Cena garažnog mesta u ovoj zgradi iznosi 25.000 €.
Posebne pogodnosti za kupce ovog stana su blizina Kulturnog centra Ložionica, nove najmodernije pijace u gradu, linijskog parka i novog pešačkog mosta.
Ovaj stan je osim za stanovanje idealan i kao investicija obzirom na odnos cene i kvaliteta.
Bez agencijske provizije!
Postoji mogućnost povrata PDV-a za kupce prvog stana.
*Sačuvaj oglas uz belešku i primaj obaveštenja o njihovom pojeftinjenju ili pojavljivanju sličnih
Prikaz stana na mapi
Parkovi u blizini
- Savski park5 min
- Park Lepi izgled11 min
- Park Bristol13 min

Obeležja kulture u blizini
- Manakova kuća4 min
- Zgrada Železničke stanice4 min
- Spomenik caru Dušanu Silnom9 min

Škole/Fakulteti/Vrtići u blizini
- Osnovna škola (Osnovna škola Isidora Sekulić)15 min
- Srednja škola (Škola za brodarstvo, brodogradnju i hidrogradnju)9 min
- Vrtić (Dečiji vrtić Futurino)4 min
- Fakultet (Fakultet za medije i komunikacije)14 min

- Bolnica (Opšta bolnica Euromedik)9 min
- Klinika (Poliklinika Rea Medika)6 min
- Teretana (Ashtanga Yoga Beograd)10 min
- Prodavnica (Shop&Go)2 min
- Restoran (Kaldi Gastro Bar)1 min
- Kafana (Kafana Kod Glumca)10 min
- Taksi stajalište (Taxi stanica)6 min
- Autobuska stanica (Palata Pravde 1)3 min
- Tramvajska stanica (Ekonomski Fakultet)11 min
- Trolejbuska stanica (Višegradska)10 min
- Banka (Banca Intesa)3 min
- Pošta (Pošta Beograd 115)10 min
Kontakt oglašivača
Krediti OTP banke
Saznaj više
Prikazana rata odnosi se na maksimalni period otplate. Kalkulator je informativnog karaktera.
* Nakon isteka 5 godina, prelazi se na varijabilnu kamatnu stopu

