Trosoban stan na prodaju, Luke Ćelovića Trebinjca, 328.000€, 71m²




























328.000 €
4.620 € / m2
- Centralno grejanje
- Novo
- Oglas oglašava agencija pod reg. brojem 1850
- 1 telefonska linija
Opis oglasa
🏙️ MAXIS GROUP DOO BEOGRAD – AGENCIJA ZA NEKRETNINE
BROJ U REGISTRU POSREDNIKA: 1850
🌿 BW ECHO – Savremeni luksuz i poslovni potencijal u srcu Beograda na vodi
BW Echo – Park distrikt, Beograd na vodi
Predstavljamo vam izuzetno funkcionalan i moderan trosoban stan u zgradi BW Echo, smeštenoj u prestižnom Park distriktu Beograda na vodi, u neposrednoj blizini Savskog parka i tržnog centra Galerija Belgrade.
Zgrada je deo savremenog Elements kompleksa, pozicionirana u četvrtom redu od reke Save, što obezbeđuje idealan balans između urbane dinamike i privatnosti — sa obiljem zelenila i otvorenog prostora.
Posebnu investicionu vrednost lokaciji daje blizina budućeg sedišta E-uprave i kreativno-inovativnog centra Ložionica, koji će postati novo središte kulturnih, poslovnih i tehnoloških događaja u gradu.
🛋️ Detalji stana
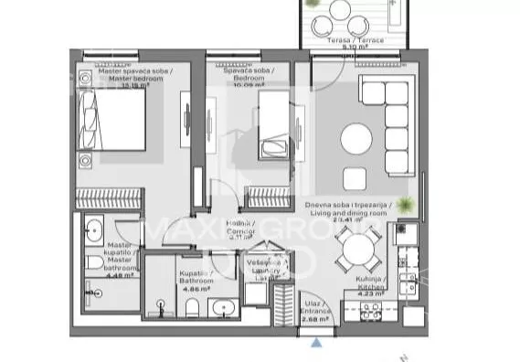
📐 Površina: 71,62 m²
🏡 Struktura: TROSOBAN
🛏️ 2 spavaće sobe
🛋️ Prostran dnevni boravak sa kuhinjom i trpezarijom
🧺 Vešernica
🛁 Kupatilo
🌇 Terasa
♨️ Centralno grejanje
Stan predstavlja idealnu kombinaciju porodičnog doma, investicije ili poslovnog prostora, zahvaljujući izuzetnoj lokaciji i funkcionalnom rasporedu.
🏢 Karakteristike zgrade
Reprezentativan ulazni lobi sa recepcijom
24/7 fizičko-tehničko obezbeđenje
Video nadzor
Podzemna garaža na dva nivoa
Uređeno dvorište sa dečjim igralištem
Prodavnice, kafići i restorani u prizemlju
Vrtić i sadržaji za porodice u neposrednoj blizini
Savski park, šetalište uz reku i komercijalni sadržaji nalaze se na svega nekoliko minuta lagane šetnje.
🌳 Park distrikt – savršena ravnoteža života i poslovanja
Lokacija omogućava brz pristup:
Savskom parku i rekreativnim zonama
restoranskoj i poslovnoj ponudi Beograda na vodi
kulturnim i inovacionim sadržajima Ložionice
centralnim gradskim saobraćajnicama
🚗 Garaža
✅ Obavezna kupovina garažnog mesta — 28.000 €
📞 Kontakt i prezentacija
Za više informacija, kompletnu ponudu stanova u Beogradu na vodi ili zakazivanje razgledanja:
📱 060... (prikaži broj telefona)
Bojan Vranić — Agent prodaje
Licenca br. 5744
MAXIS GROUP DOO BEOGRAD
Agencija za nekretnine — registar posrednika 1850
💼 Agencijska provizija iznosi 2% od dogovorene kupoprodajne cene.
Agencijska provizija 2%
*Sačuvaj oglas uz belešku i primaj obaveštenja o njihovom pojeftinjenju ili pojavljivanju sličnih
Prikaz stana na mapi
Parkovi u blizini
- Park Lepi izgled8 min
- Savski park8 min
- Hajd park16 min

Obeležja kulture u blizini
- Spomenik caru Dušanu Silnom6 min
- Spomenik Vojvodi Radomiru Putniku6 min
- Zgrada Železničke stanice7 min

Škole/Fakulteti/Vrtići u blizini
- Osnovna škola (Osnovna škola Radojka Lakić)5 min
- Srednja škola (Škola za brodarstvo, brodogradnju i hidrogradnju)4 min
- Vrtić (Dečiji vrtić Kraljica Marija)4 min
- Fakultet (Fakultet za inženjerski menadžment)4 min

- Bolnica (Opšta bolnica Euromedik)5 min
- Klinika (Poliklinika Rea Medika)6 min
- Teretana (Ashtanga Yoga Beograd)5 min
- Prodavnica (City market BW Sole)4 min
- Restoran (Restoran Primavera)6 min
- Kafana (Kafana Sipaj, ne pitaj)6 min
- Taksi stajalište (Taxi stanica)7 min
- Autobuska stanica (TC Galerija)3 min
- Tramvajska stanica (Savski Trg)15 min
- Trolejbuska stanica (Ortopedski Zavod)11 min
- Banka (Banca Intesa)9 min
- Pošta (Pošta Beograd 115)5 min
Kontakt oglašivača
Krediti OTP banke
Saznaj više
Prikazana rata odnosi se na maksimalni period otplate. Kalkulator je informativnog karaktera.
* Nakon isteka 5 godina, prelazi se na varijabilnu kamatnu stopu


