Dvosoban stan na prodaju, Hercegovačka bb, 425.000€, 71m²














425.000 €
5.986 € / m2
- Stan u zgradi
- Centralno grejanje
- Novo
- Prostorije: kupatilo, terasa
- Opremljenost: Namešteno - internet
- Nije uknjiženo
- Oglas oglašava agencija pod reg. brojem 5
- 1 garažno mesto, garaža u sklopu zgrade
- 1 lift
- Tip interneta: kablovska
- Kablovska
- 1 telefonska linija
Opis oglasa
Prodajemo stan na jednoj od najprestižnijih adresa u Beogradu na vodi, u zgradi BW Perla, prepoznatljivoj po elegantnoj fasadi i izuzetnoj lokaciji uz reku i Sava Promenadu.
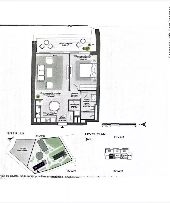
Pored vrhunske pozicije, zgrada BW Perla poseduje wellness centar, bazen i teretanu namenjene isključivo stanarima, čime se obezbeđuje visok nivo komfora i privatnosti. Stan se nalazi na 3. spratu, orijentisan prema gradskoj panorami. Sastoji se od ulaza, dnevnog boravka sa kuhinjom i trpezarijom, spavaće sobe, kupatila, vešernice i prostrane terase.
Zahvaljujući strukturi i lokaciji, stan predstavlja dobru opciju kako za život, tako i za investiciju, za dugoročno ili kratkoročno izdavanje. U neposrednom okruženju nalaze se svi sadržaji neophodni za savremen život, buduća internacionalna škola, TC Galerija, vrtići, prodavnice, šetalište, kao i bogata gastronomska i kulturna ponuda.
**Ukupna površina stana iznosi 70.5m2 (59.5m2 unutrašnje površine+11m2 terasa). Useljenje i tehnički prijem očekuju se u narednim mesecima, a stan je moguće posetiti već sada. Mogućnost kupovine garažnog mesta po ceni od 45000e. **
Stan se vodi na jednog vlasnika, bez tereta i zabeležbi.
Posrednička naknada se obračunava prema Opštim uslovima poslovanja agencije DIVIS NEKRETNINE DOO.
*Sačuvaj oglas uz belešku i primaj obaveštenja o njihovom pojeftinjenju ili pojavljivanju sličnih
Prikaz stana na mapi
Parkovi u blizini
- Park Bristol3 min
- Park nesvrstanih zemalja5 min
- Park Luke Ćelovića6 min

Obeležja kulture u blizini
- Krst sa Male pijace3 min
- Manakova kuća3 min
- Betonski brod SIP5 min

Škole/Fakulteti/Vrtići u blizini
- Osnovna škola (Osnovna škola Isidora Sekulić)7 min
- Srednja škola (Ugostiteljsko turistička škola)4 min
- Vrtić (Dečiji vrtić Futurino)10 min
- Fakultet (Fakultet za diplomatiju i bezbednost)2 min

- Bolnica (Specijalna bolnica Sveti Sava)11 min
- Klinika (Poliklinika Tesla Medical group)3 min
- Teretana (Edukativno rekreativni centar Movimiento)11 min
- Prodavnica (IDEA)3 min
- Restoran (Restoran Salon 1905)1 min
- Kafana (Oranje Rugby Pub)2 min
- Taksi stajalište (Taxi stanica)2 min
- Autobuska stanica (Brankov most)4 min
- Tramvajska stanica (Ekonomski Fakultet)5 min
- Trolejbuska stanica (Terazije)11 min
- Banka (Erste Bank)6 min
- Pošta (Pošta Beograd 44)7 min
Kontakt oglašivača
Krediti OTP banke
Saznaj više
Prikazana rata odnosi se na maksimalni period otplate. Kalkulator je informativnog karaktera.
* Nakon isteka 5 godina, prelazi se na varijabilnu kamatnu stopu


