Dvosoban stan na prodaju, BELGRADE WATERFRONT - BW KINGS PARK RESIDENCES, 335.888€, 70m²






























335.888 €
4.798 € / m2
- Centralno grejanje
- Novo
- Prostorije: terasa
- Oglas oglašava agencija pod reg. brojem 109
- 1 garažno mesto
- 1 lift
Opis oglasa
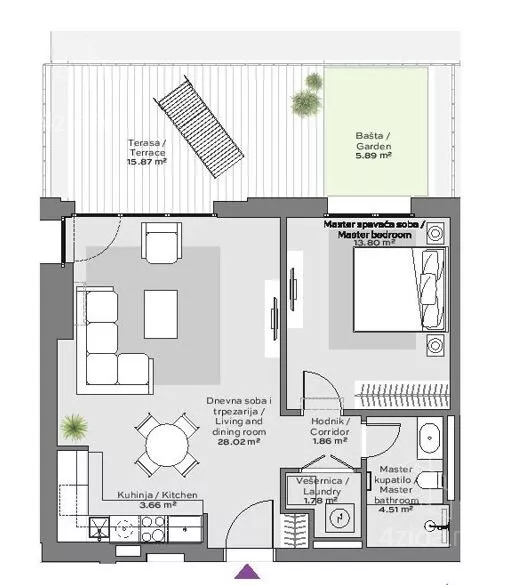
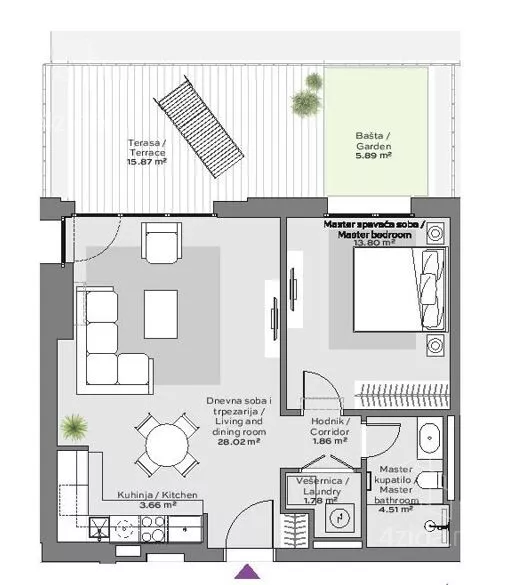
Predstavljamo ekskluzivan stan sa dvoristem u okviru kompleksa Beograd na vodi. Nekretnina se nalazi u zgradi BW Kings Park Residences - pozicionirana u trecem redu od reke Save - blize starom gradskom jezgru, sa direktnim izlazom na Savski park i pruza nesvakidasnji ugodjaj svojim stanarima u urbanim uslovima zivota. Ova savremena visespratnica(15 spratova raspolaze sa 233 stambene jedinice razlicitih struktura i kvadratura, od dvosobnih do petosobnih stanova. Prostrana terasa, u cijem nastavku je i uredjena basta okruzeni su zelenilom koje daje osecaj privatnosti i intime, cemu doprinosi i orijentacija stana - ka centralnom zajednickom dvoristu. Stanarima zgrade BW Kings Park Residences na raspolaganju ce biti lobi sa recepcijom, podzemna garaza na dva nivoa, maloprodajni objekti, kao i fizicko-tehnicko obezbedjenje 24/7. Useljenje je planirano sredinom 2025. godine. Doplata za garazno mesto. Kvadrature ostalih raspolozivih stanova u zgradi BW Kings Park Residences, krecu se od 55-160m2.
*Sačuvaj oglas uz belešku i primaj obaveštenja o njihovom pojeftinjenju ili pojavljivanju sličnih
Prikaz stana na mapi
Parkovi u blizini
- Savski park5 min
- Park Lepi izgled11 min
- Park Bristol13 min

Obeležja kulture u blizini
- Spomenik caru Dušanu Silnom6 min
- Zgrada Železničke stanice7 min
- Krst sa Male pijace7 min

Škole/Fakulteti/Vrtići u blizini
- Osnovna škola (Osnovna škola Radojka Lakić)6 min
- Srednja škola (Škola za brodarstvo, brodogradnju i hidrogradnju)4 min
- Vrtić (Dečiji vrtić Futurino)4 min
- Fakultet (Akademija Dositej)6 min

- Bolnica (Opšta bolnica Euromedik)5 min
- Klinika (Poliklinika Rea Medika)6 min
- Teretana (Ashtanga Yoga Beograd)5 min
- Prodavnica (Shop&Go)2 min
- Restoran (Kaldi Gastro Bar)1 min
- Kafana (Kafana Kod Glumca)10 min
- Taksi stajalište (Taxi stanica)6 min
- Autobuska stanica (Palata Pravde 1)3 min
- Tramvajska stanica (Ekonomski Fakultet)11 min
- Trolejbuska stanica (Višegradska)10 min
- Banka (Banca Intesa)3 min
- Pošta (Pošta Beograd 115)6 min
Kontakt oglašivača
Krediti OTP banke
Saznaj više
Prikazana rata odnosi se na maksimalni period otplate. Kalkulator je informativnog karaktera.
* Nakon isteka 5 godina, prelazi se na varijabilnu kamatnu stopu


