Postavi oglas
4zida.rs, Nekretnine u pokretu
  • Prodaja
  • Izdavanje
  • Novogradnja
  • Cenovnik
  • Blog
Izdvajamo
O BeograduPitaj pravnikaKretanje cena kvadrata u SrbijiProcena vrednosti nekretnineIsplativost: kupovina ili iznajmljivanje?Kalkulator kredita i osiguranjaKalkulator kreditne sposobnosti

Prodaja stanova u Beogradu

  • Prodaja stanova u Beogradu
  • Prodaja stanova u Borči
  • Prodaja stanova u Zemunu
  • Prodaja stanova u Novom Beogradu
  • Prodaja stanova u Mirijevu

Izdavanje stanova u Beogradu

  • Izdavanje stanova u Beogradu
  • Izdavanje stanova u Zemunu
  • Izdavanje stanova u Novom Beogradu
  • Izdavanje stanova na Vračaru
  • Izdavanje stanova u Rakovici

Prodaja stanova

  • Prodaja stanova u Novom Sadu
  • Prodaja stanova u Nišu
  • Prodaja stanova u Kragujevcu
  • Prodaja stanova u Subotici
  • Prodaja stanova u Zrenjaninu
  • Prodaja stanova u Šapcu
  • Prodaja stanova u Kruševcu
  • Prodaja stanova u Pančevu
  • Prodaja stanova na Zlatiboru
  • Prodaja stanova u Kraljevu

Izdavanje stanova

  • Izdavanje stanova u Novom Sadu
  • Izdavanje stanova u Nišu
  • Izdavanje stanova u Kragujevcu
  • Izdavanje stanova u Subotici
  • Izdavanje stanova u Zrenjaninu
  • Izdavanje stanova u Kruševcu
  • Izdavanje stanova u Pančevu
  • Izdavanje stanova u Jagodini
  • Izdavanje stanova u Vranju
  • Stan na dan na Zlatiboru

Popularne pretrage

  • Kuće na prodaju u Novom Sadu
  • Kuće na prodaju u Nišu
  • Kuće na prodaju u Kragujevcu
  • Kuće na prodaju u Subotici
  • Kuće na prodaju u Zrenjaninu
  • Kuće na prodaju u Beogradu
  • Kretanje cena nekretnina
  • Pitaj pravnika
  • Kalkulator kredita i osiguranja
  • Blog
  • Kontakt/O nama
  • Digitalno oglašavanje
  • Cenovnik
  • Pravila i uslovi korišćenja
  • Najčešća pitanja
  • Privatnost
Inspira grupa

Infostud Logo | 4zida
Poslovi Infostud Logo | 4zidaStartuj Logo | 4zidaHrLab Logo | 4zidaHelloworld Logo | 4zida

Polovni automobili Logo | 4zida4zida Logo | 4zidaInternet prodaja guma Logo | 4zidaOsiguranik Logo | 4zidaAutohub Logo | 4zidaProdaja delova Logo | 4zidaMojagaraža Logo | 4zidaInspira hub Logo | 4zida

Google Play store badgeApp Store badge
Sadržaj sajta je vlasništvo 4zida.rs. Zabranjeno je njegovo preuzimanje bez dozvole 4zida.rs, zarad komercijalne upotrebe ili u druge svrhe, osim za lične potrebe posetilaca sajta. 4zida.rs je deo Inspira grupe.
logo
|
Dvosoban stan na prodaju, Avijatičarsko Naselje, 116.200€, 42m²
▾Reklama▾
  1. Naslovna
  2. prodaja stanova
  3. Novi Sad
  4. Gradske lokacije
  5. Avijatičarsko Naselje
  6. Dvosoban stan

Dvosoban stan na prodaju, Avijatičarsko Naselje, 116.200€, 42m²

Novi Sad, Gradske lokacije, Avijatičarsko Naselje
Prikaži mapu
Šifra oglasa: 4zida-1043961Oglas ažuriran: pre 10 dana
Dvosoban stan | 4zida
Dvosoban stan | 4zida
OTP banka logo
Rata kreditaod 471 €

116.200 €

2.767 € / m2

Prosek cene m2 u ovom kraju iznosi 2.644 €
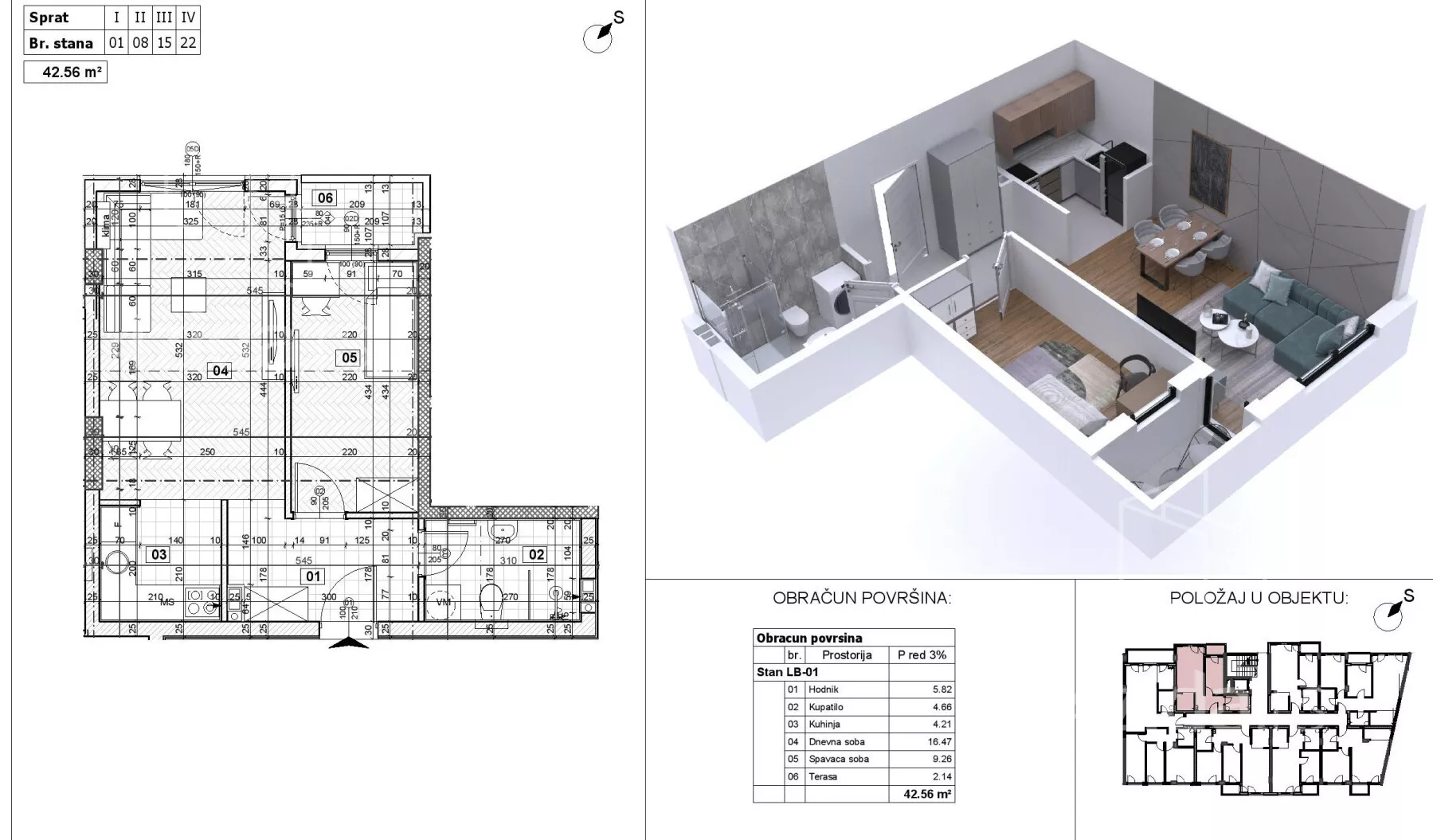
42 m²
2 sobe
1/5 spratova
Stan,NOVI SAD,AVIJACIJA,kv: 42.56, € 116200, ID: 1043961
O stanu
  • Stan u zgradi
  • Centralno grejanje
  • U izgradnji
  • Prostorije: terasa
  • Oglas oglašava agencija pod reg. brojem 405
Izračunaj koliko ti treba od ovog stana do tebi bitnih lokacija
O zgradi
  • 1 lift
  • Godina izgradnje: 2026.

Opis oglasa

NOVI SAD. AVIJACIJA.DVOSOBAN STAN. PLUS PDV(Svet nekretnine, Novi Sad, Reg. br. 405)

Prikaži broj telefona

*Sačuvaj oglas uz belešku i primaj obaveštenja o njihovom pojeftinjenju ili pojavljivanju sličnih


Prikaz stana na mapi

Parkovi u blizini

  • Železnički park
    21 min
  • Park Bistrica
    29 min
  • Futoški park
    33 min
pozadinska slika

Obeležja kulture u blizini

  • Spomen ploča Albertu Ajnštajnu i Milevi Marić
    12 min
  • Jodna Banja
    13 min
  • Spomenik Kralju Petru I Karađorđeviću
    16 min
pozadinska slika

Škole/Fakulteti/Vrtići u blizini

  • Osnovna škola (Osnovna škola Dositej Obradović)
    4 min
  • Srednja škola (Škola za dizajn Bogdan Šuput)
    8 min
  • Vrtić (Dečiji vrtić Veseli vozić)
    6 min
  • Fakultet (Univerzitet u Novom Sadu Medicinski fakultet)
    12 min
pozadinska slika
Zdravlje
  • Bolnica (Opšta bolnica New Hospital)
    10 min
  • Klinika (Poliklinika Galetić)
    11 min
  • Teretana (Fitness studio Top Form)
    6 min
Hrana i piće
  • Prodavnica (Market Marko-M)
    3 min
  • Restoran (Restoran Vida)
    12 min
  • Kafana (Radnički Pub)
    9 min
Prevoz
  • Taksi stajalište (SOS Taxi)
    23 min
  • Autobuska stanica (Rumenački put - Benzinska pumpa)
    5 min
Ostale ustanove
  • Banka (Banca Intesa)
    6 min
  • Pošta (Pošta Novi Sad 21113)
    4 min

Kontakt oglašivača

Svi oglasi - Svet NekretnineTatjana Aćimović
Tatjana Aćimović avatar
11 godina na 4zida

Štampaj

▾Reklama▾

Krediti OTP banke

OTP bank logo

Bez troškova obrade kredita
NKS 4.50% - EKS 5.74%
Period otplate 96 -360 meseca

Saznaj više

Prikazana rata odnosi se na maksimalni period otplate. Kalkulator je informativnog karaktera.

* Nakon isteka 5 godina, prelazi se na varijabilnu kamatnu stopu


Osiguranje domaćinstva online

Osiguraj svoje domaćinstvo u slučaju požara...
osiguranik logo
512.87 mesečno (ukupno 6,154.39)
Osiguraj svoje domaćinstvo u slučaju požara, udara groma, grada, tuče, eksplozije, izliva vode iz instalacije, provalnih krađa, loma stakla, odgovornosti prema trećim licima i zemljotresa.Kupi osiguranje online

Kontakt oglašivača

Svi oglasi - Svet NekretnineTatjana Aćimović
Tatjana Aćimović avatar
11 godina na 4zida
▾Reklama▾
▾Reklama▾
▾Reklama▾

Dvosoban stan u zgradi za prodaju, Avijatičarsko Naselje, 42 m2, na 1. spratu, ima lift. Stanje - U izgradnji, Centralno, ima terasu.

Cena kvadrata posmatrane nekretnine u odnosu na prosek za kraj Avijatičarsko Naselje

2.767 € / m2
Novi Sad, Gradske lokacije, Avijatičarsko Naselje | 4zida.rs | 4zida.rs
2.337 € / m2
2.644 € / m2
2.951 € / m2

Oglasi ove agencije

Bulevar Patrijarha Pavla (Somborski Bulevar), Telep, Gradske lokacije, Novi Sad | 4zida.rs
117.000 €
2.659 €/m²

Bulevar Patrijarha Pavla (Somborski Bulevar)

Bulevar Patrijarha Pavla (Somborski Bulevar), Telep, Gradske lokacije, Novi Sad

jednoiposoban stan • 44 m²

Agencija

Bulevar Patrijarha Pavla (Somborski Bulevar), Telep, Gradske lokacije, Novi Sad | 4zida.rs
116.150 €
2.833 €/m²

Bulevar Patrijarha Pavla (Somborski Bulevar)

Bulevar Patrijarha Pavla (Somborski Bulevar), Telep, Gradske lokacije, Novi Sad

jednoiposoban stan • 41 m²

Agencija

Bulevar Patrijarha Pavla (Somborski Bulevar), Telep, Gradske lokacije, Novi Sad | 4zida.rs
115.900 €
2.827 €/m²

Bulevar Patrijarha Pavla (Somborski Bulevar)

Bulevar Patrijarha Pavla (Somborski Bulevar), Telep, Gradske lokacije, Novi Sad

jednoiposoban stan • 41 m²

Agencija

Bulevar Patrijarha Pavla (Somborski Bulevar), Telep, Gradske lokacije, Novi Sad | 4zida.rs
116.150 €
2.833 €/m²

Bulevar Patrijarha Pavla (Somborski Bulevar)

Bulevar Patrijarha Pavla (Somborski Bulevar), Telep, Gradske lokacije, Novi Sad

jednoiposoban stan • 41 m²

Agencija

Telep, Gradske lokacije, Novi Sad | 4zida.rs
115.400 €
2.404 €/m²

Telep

Telep, Gradske lokacije, Novi Sad

dvosoban stan • 48 m²

Agencija

Bulevar Patrijarha Pavla (Somborski Bulevar), Telep, Gradske lokacije, Novi Sad | 4zida.rs
117.400 €
2.730 €/m²

Bulevar Patrijarha Pavla (Somborski Bulevar)

Bulevar Patrijarha Pavla (Somborski Bulevar), Telep, Gradske lokacije, Novi Sad

dvosoban stan • 43 m²

Agencija

Bulevar Patrijarha Pavla (Somborski Bulevar), Telep, Gradske lokacije, Novi Sad | 4zida.rs
117.400 €
2.730 €/m²

Bulevar Patrijarha Pavla (Somborski Bulevar)

Bulevar Patrijarha Pavla (Somborski Bulevar), Telep, Gradske lokacije, Novi Sad

dvosoban stan • 43 m²

Agencija

Bulevar Patrijarha Pavla (Somborski Bulevar), Telep, Gradske lokacije, Novi Sad | 4zida.rs
117.400 €
2.730 €/m²

Bulevar Patrijarha Pavla (Somborski Bulevar)

Bulevar Patrijarha Pavla (Somborski Bulevar), Telep, Gradske lokacije, Novi Sad

dvosoban stan • 43 m²

Agencija

Bulevar Patrijarha Pavla (Somborski Bulevar), Telep, Gradske lokacije, Novi Sad | 4zida.rs
117.400 €
2.730 €/m²

Bulevar Patrijarha Pavla (Somborski Bulevar)

Bulevar Patrijarha Pavla (Somborski Bulevar), Telep, Gradske lokacije, Novi Sad

dvosoban stan • 43 m²

Agencija

Bulevar Patrijarha Pavla (Somborski Bulevar), Telep, Gradske lokacije, Novi Sad | 4zida.rs
117.400 €
2.730 €/m²

Bulevar Patrijarha Pavla (Somborski Bulevar)

Bulevar Patrijarha Pavla (Somborski Bulevar), Telep, Gradske lokacije, Novi Sad

dvosoban stan • 43 m²

Agencija

Bulevar Patrijarha Pavla (Somborski Bulevar), Telep, Gradske lokacije, Novi Sad | 4zida.rs
117.400 €
2.730 €/m²

Bulevar Patrijarha Pavla (Somborski Bulevar)

Bulevar Patrijarha Pavla (Somborski Bulevar), Telep, Gradske lokacije, Novi Sad

dvosoban stan • 43 m²

Agencija

Bulevar Patrijarha Pavla (Somborski Bulevar), Telep, Gradske lokacije, Novi Sad | 4zida.rs
117.400 €
2.730 €/m²

Bulevar Patrijarha Pavla (Somborski Bulevar)

Bulevar Patrijarha Pavla (Somborski Bulevar), Telep, Gradske lokacije, Novi Sad

dvosoban stan • 43 m²

Agencija

Bulevar Patrijarha Pavla (Somborski Bulevar), Telep, Gradske lokacije, Novi Sad | 4zida.rs
117.400 €
2.730 €/m²

Bulevar Patrijarha Pavla (Somborski Bulevar)

Bulevar Patrijarha Pavla (Somborski Bulevar), Telep, Gradske lokacije, Novi Sad

dvosoban stan • 43 m²

Agencija

Bulevar Patrijarha Pavla (Somborski Bulevar), Telep, Gradske lokacije, Novi Sad | 4zida.rs
117.400 €
2.730 €/m²

Bulevar Patrijarha Pavla (Somborski Bulevar)

Bulevar Patrijarha Pavla (Somborski Bulevar), Telep, Gradske lokacije, Novi Sad

dvosoban stan • 43 m²

Agencija

Bulevar Patrijarha Pavla (Somborski Bulevar), Telep, Gradske lokacije, Novi Sad | 4zida.rs
117.400 €
2.730 €/m²

Bulevar Patrijarha Pavla (Somborski Bulevar)

Bulevar Patrijarha Pavla (Somborski Bulevar), Telep, Gradske lokacije, Novi Sad

dvosoban stan • 43 m²

Agencija

Bulevar Patrijarha Pavla (Somborski Bulevar), Telep, Gradske lokacije, Novi Sad | 4zida.rs
117.400 €
2.730 €/m²

Bulevar Patrijarha Pavla (Somborski Bulevar)

Bulevar Patrijarha Pavla (Somborski Bulevar), Telep, Gradske lokacije, Novi Sad

dvosoban stan • 43 m²

Agencija

Bulevar Patrijarha Pavla (Somborski Bulevar), Telep, Gradske lokacije, Novi Sad | 4zida.rs
117.400 €
2.730 €/m²

Bulevar Patrijarha Pavla (Somborski Bulevar)

Bulevar Patrijarha Pavla (Somborski Bulevar), Telep, Gradske lokacije, Novi Sad

dvosoban stan • 43 m²

Agencija

Avijatičarsko Naselje, Gradske lokacije, Novi Sad | 4zida.rs
116.200 €
2.767 €/m²

Avijatičarsko Naselje

Avijatičarsko Naselje, Gradske lokacije, Novi Sad

dvosoban stan • 42 m²

Agencija

Avijatičarsko Naselje, Gradske lokacije, Novi Sad | 4zida.rs
116.200 €
2.767 €/m²

Avijatičarsko Naselje

Avijatičarsko Naselje, Gradske lokacije, Novi Sad

dvosoban stan • 42 m²

Agencija

Avijatičarsko Naselje, Gradske lokacije, Novi Sad | 4zida.rs
116.200 €
2.767 €/m²

Avijatičarsko Naselje

Avijatičarsko Naselje, Gradske lokacije, Novi Sad

dvosoban stan • 42 m²

Agencija

Kompletna ponuda