Dvoiposoban stan na prodaju, Adice, 87.950€, 50m²








87.950 €
1.759 € / m2
- Stan u zgradi
- U izgradnji
- Oglas oglašava agencija pod reg. brojem 174
Opis oglasa
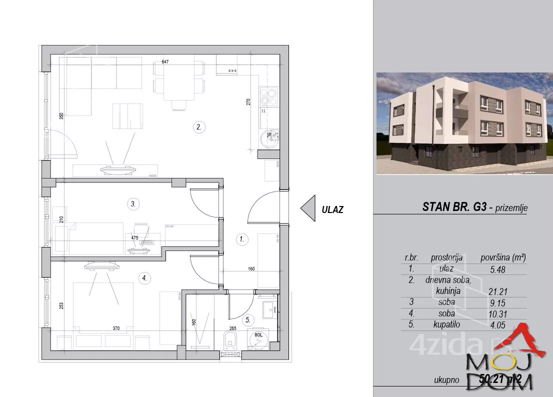
Predstavljamo vam savremenu urbanu vilu u mirnom delu Adica, projektovanu za kvalitetan i funkcionalan porodičan život. U ponudi su garažni stanovi sa pažljivo osmišljenim rasporedom koji maksimalno koristi svaki kvadrat prostora.
Objekat se gradi po najnovijim standardima gradnje, uz fokus na kvalitet materijala, energetsku efikasnost i moderan dizajn.
Prodaja je isključivo za keš, bez mogućnosti povrata PDV-a.
Planirani rok završetka radova: kraj 2026. / početak 2027. godine.
Za više informacija pozovite:
063... (prikaži broj telefona)
Šifra: 1032056
Moj Dom nekretnine, Novi Sad, Reg. br. 174
(Moj Dom nekretnine,Novi Sad,Reg.br.174)
*Sačuvaj oglas uz belešku i primaj obaveštenja o njihovom pojeftinjenju ili pojavljivanju sličnih
Prikaz stana na mapi
Parkovi u blizini
- Park Bistrica47 min

Obeležja kulture u blizini
- Jodna Banja14 min
- Dvorac Hadik-Kotek14 min
- Dvorac Eđšeg15 min

Škole/Fakulteti/Vrtići u blizini
- Osnovna škola (Osnovna škola Marija Trandafil)manje od 1 min
- Srednja škola (Privatna medicinska škola Dositej Obradović)6 min
- Vrtić (Dečiji vrtić Zlatokosa)5 min
- Fakultet (Protestantski teološki fakultet)11 min

- Bolnica (Ginekološka bolnica Ferona)10 min
- Klinika (Family Medica poliklinika)11 min
- Teretana (Fintess centar Basic Control Academy)8 min
- Prodavnica (Mikromarket)1 min
- Restoran (Restoran Exit West)28 min
- Kafana (Kafanica Kod Dače)45 min
- Taksi stajalište (Taxi prevoz Novi Sad)34 min
- Autobuska stanica (Veternička - Fešter osnovna škola)1 min
- Banka (Erste Bank Ekspres ekspozitura)10 min
- Pošta (Pošta Veternik 21203)5 min
Kontakt oglašivača

Krediti OTP banke
Saznaj više
Prikazana rata odnosi se na maksimalni period otplate. Kalkulator je informativnog karaktera.
* Nakon isteka 5 godina, prelazi se na varijabilnu kamatnu stopu

