Magacin na prodaju, Rade Končara, 113.500€, 151m²






































113.500 €
752 € / m2
- Novo
- Oglas oglašava agencija pod reg. brojem 508
- 1 lift
- Godina izgradnje: 2013.
Opis oglasa
Na prodaju magacinski prostor – Zemun, naselje Sava Kovačević, ulica Rada Končara
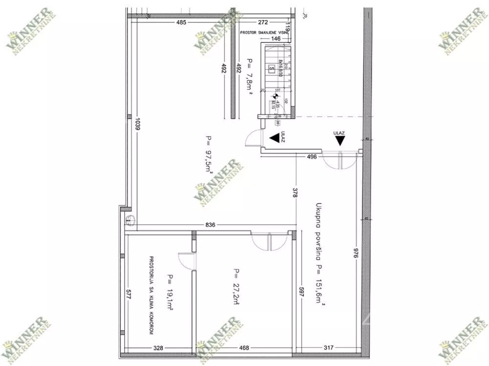
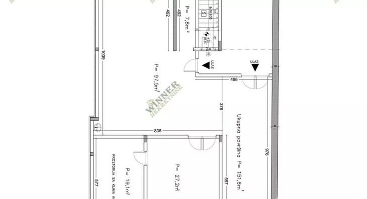
Prodaje se uknjižen magacinski prostor ukupne površine 151 m², smešten na nivou -2 kvalitetno građene zgrade iz 2013. godine. Objekat je izgrađen od armirano-betonske konstrukcije, uz visok standard završnih radova i funkcionalna tehnička rešenja. Prostor je odmah useljiv.
Magacin poseduje:
Standardnu visinu plafona od 2,6 m
Uvedenu struju i vodu
Ventilaciju, odvod i kanalizaciju
Direktan ulaz sa ulice
Raspored je veoma praktičan i prilagodljiv različitim delatnostima. Sastoji se od dve velike prostorije koje se po potrebi mogu pregraditi u više manjih celina. U nastavku se nalaze još dve odvojene prostorije, od kojih je jedna osposobljena kao hladnjača sa mogućnošću održavanja kontrolisane temperature (prostor je prethodno korišćen za skladištenje vina).
Objekat poseduje auto-lift nosivosti do 2,5 tone, sa mogućnošću pozivanja putem telefona, kao i pristupom pomoću ključa. Pored lifta, magacinu se može pristupiti i kroz zgradu korišćenjem stepeništa.
Ulaz u prostor je organizovan na dva načina:
Velika dupla vrata pogodna za ulazak automobila ili manjeg kombija
Poseban pešački ulaz
Zahvaljujući kvalitetnoj gradnji, dobroj organizaciji prostora i odličnoj pristupačnosti, magacin je idealan za skladištenje robe, arhivu, distributivni centar, vinoteku, hladnjaču ili druge poslovne namene.
📞 Za dodatne informacije i dogovor oko gledanja kuće, pozovite:
Stamenović Željko – 069... (prikaži broj telefona)
WINNER NEKRETNINE d.o.o.
Agencija upisana u registar posrednika pod brojem 508.
Agencijsku proviziju placa kupac u iznosu od 2% od kupoprodajne cene.
*Sačuvaj oglas uz belešku i primaj obaveštenja o njihovom pojeftinjenju ili pojavljivanju sličnih
Prikaz poslovnog prostora na mapi
Parkovi u blizini
- Park Sava Kovačević11 min
- Dečje igralište17 min
- Park Jelovac18 min

Obeležja kulture u blizini
- Ičkova kuća9 min
- Livnica Pantelić11 min
- Kula Sibinjanin Janka Gardoš11 min

Škole/Fakulteti/Vrtići u blizini
- Osnovna škola (Osnovna škola Petar Kočić)7 min
- Srednja škola (Specijalna srednja škola Veljko Ramadanović)12 min
- Vrtić (Dečiji vrtić Povratak prirodi)10 min
- Fakultet (Kriminalističko policijski univerzitet)4 min

- Bolnica (Hirurška ordinacija Renova)7 min
- Klinika (Poliklinika O2)5 min
- Teretana (Fitness club Pump It Up)4 min
- Prodavnica (Market Mona)2 min
- Restoran (Restoran Dubočica)3 min
- Kafana (Kafana Biblioteka kod Majora)8 min
- Taksi stajalište (Taxi stanica)2 min
- Autobuska stanica (Rada Končara /Dom Zdravlja/)2 min
- Banka (Eurobank Direktna)9 min
- Pošta (Pošta Beograd 100)9 min
Kontakt oglašivača
Krediti OTP banke
Saznaj više
Prikazana rata odnosi se na maksimalni period otplate. Kalkulator je informativnog karaktera.
* Nakon isteka 5 godina, prelazi se na varijabilnu kamatnu stopu

