Kuća na prodaju, Omladinska, 795.000€, 170m²




























































795.000 €
4.676 € / m2
- Površina: 170 m²
- Grejanje na gas
- Oglas oglašava agencija pod reg. brojem 18
- 1 telefonska linija
Opis oglasa
Prodaje se petosoban stan koji se nalazi u srednjoj od tri četvorospratne vertikale u porodičnoj zgradi na Dedinju,
neposredno pored Belog Dvora u mirnoj ulici.
Kvalitetna gradnja, materijali i unutrašnja obrada. Sopstveni sistem i brojila potrošnje struje, gasa i vode.
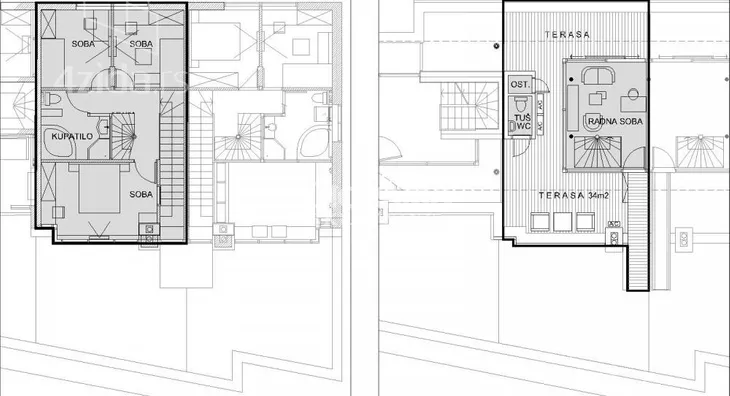
Prostrana terasa 31m2 ispred dnevne sobe. Prostrana terasa 34m2, oko radne sobe na drugom spratu,
pogodna za sunčanje i sa prelepim vidikom na Avalu i Šumadiju, , sa priručnim sanitarnim čvorom (WC/Tuš)
i ostavom za opremu. Konzolna platforma -vidikovac.
Nisko prizemlje - sa velikom sobom, 25m2, pogodnom za igru, rekreaciju. Ima priključak za mini kuhinju
i eventualno tuš kabinu,toalet je u susednom hodniku.
Odvojena garaža 24m2, pristup sa ulice po rampi sa električnim podnim grejanjem i parkiranje dozvoljeno na ulici.
Mašina za pranje veša, centralni bojler i kotlovi, gasni i električni. Velika kućna ostava/garderober 15m2.
Visoko prizemlje - sa ulaznim hodnikom, toalet, kuhinja i dnevna soba sa trpezarijom (klima - inverter,hlađenje/grejanje),
akvarijum u pregradnom zidu sa kuhinjom, izlaz na terasu.
Prvi sprat - sa tri sobe i kupatilom sa tušem, đakuzi kadom i sa električnim podnim grejanjem sa tajmerom.
Veća spavaća soba je sa panoramskim pogledom na Šumadiju. Sve sobe imaju klimu - inverter (hlađenje/grejanje).
Drugi sprat - sa radnom sobom i dvostranim izlazom na veliku terasu, sa južne i sa severne strane (klizna vrata).
Soba ima klimu - inverter (hlađenje/grejanje).
Enterijerska obrada je dominantno bela sa specijalnim štuko radom zidova dnevne sobe, kaskadnim plafonom sa zvezdanim nebom
i led trakastim osvetljenjem. Stepenišni zid je obložen prirodnim lomljenim kamenom boje peska.
Podovi su višeslojni parket od prirodne lakirane bukve. Akvarijum je dvostrano orijentisan, ka kuhinji i ka dnevnoj sobi.
Stepenice dnevne sobe su staklene da propuste svetlost na silazne stepenice u donje prizemlje.
Vrata svih soba imaju ostakljeno nadsvetlo tako da se cela kuća "kupa" u sunčanom svetlu.
Spoljna obrada fasade je od štokovanog veštačkog kamena, alu stolarija Schüco, spoljne drvene obloge, pregrade i kapije su od sibirskog ariša.
Kuća je opremljena motorizovanim "Solomatic 80" alu žaluzinama preko cele južne fasade (prema terasi ispred dnevne sobe),
priključkom za kablovsku i satelitsku televiziju i za internet, podnim grejanjem kupatila i podnim grejanjem garažne rampe, video i interfonom.
Agencijska provizija 2%
Za više informacija kontakt telefon 060... (prikaži broj telefona) Marija
*Sačuvaj oglas uz belešku i primaj obaveštenja o njihovom pojeftinjenju ili pojavljivanju sličnih
Prikaz kuće na mapi
Parkovi u blizini
- Park Rozali Morton18 min
- Bajronov park30 min
- Banjička šuma33 min

Obeležja kulture u blizini
- Dvorska crkva Svetog Apostola Andreja Prvozvanog4 min
- Beli dvor5 min
- Kraljevski dvor5 min

Škole/Fakulteti/Vrtići u blizini
- Osnovna škola (Osnovna škola Vojvoda Radomir Putnik)6 min
- Srednja škola (Škola za dizajn)9 min
- Vrtić (Dečiji vrtić Meda)8 min
- Fakultet (Visoka medicinska škola strukovnih studija Milutin Milanković)5 min

- Bolnica (Bolnica za hiperbaričnu medicinu CHM)4 min
- Klinika (Poliklinika Protekal)8 min
- Teretana (Fitness klub Sinergija Fitness)manje od 1 min
- Prodavnica (Prodavnica KoVoli.com dobra hrana i ukusi)manje od 1 min
- Restoran (Cafe & Restaurant Dedinje)3 min
- Kafana (Pivnica Drvce Kiselo 2002)24 min
- Taksi stajalište (Taxi stanica)8 min
- Autobuska stanica (Baje Pivljanina)2 min
- Tramvajska stanica (Vitanovačka)34 min
- Trolejbuska stanica (Paje Adamova)12 min
- Banka (OTP banka)6 min
- Pošta (Pošta Beograd 7)4 min
Kontakt oglašivača
Krediti OTP banke
Saznaj više
Prikazana rata odnosi se na maksimalni period otplate. Kalkulator je informativnog karaktera.
* Nakon isteka 5 godina, prelazi se na varijabilnu kamatnu stopu


