Reklama

Jednoiposoban stan na prodaju, Novogradnja, Zvezdara opština, 143286€, 43.42m²

Zvezdara opština, Beograd
Jednoiposoban stan | 4zida
Jednoiposoban stan | 4zida

od 143.286 €

3.300 € / m2

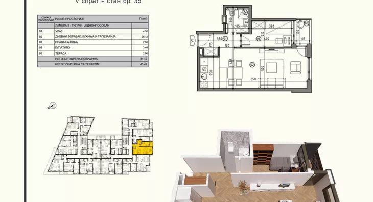
Jednoiposoban stan
43.42m²
1/6 spratova
Nije uknjiženo

O stanu
  • Status izgradnje: U izgradnji
  • Status prodaje: Na prodaju
O zgradi
  • Centralno grejanje
  • Materijal gradnje: Drugo
  • Stolarija: PVC
  • Podovi: Tarket
  • Energetski pasoš: Da
  • Prodaja parkinga: Dostupno
  • 4 lifta
  • Kalorimetar: Ne
  • Godina izgradnje: 2028.

Ovaj oglas je deo projekta
Bulevar Residence

LEVERAGE NEKRETNINE PROZvezdara opština, Beograd
pozadinska slika

O projektu oglašivača LEVERAGE NEKRETNINE PRO

🏢 BULEVAR RESIDENCE

Zašto Bulevar Residence

Bulevar Residence predstavlja savremeni stambeni kompleks razvijen sa jasnom idejom — da ponudi više od same nekretnine. Ovaj projekat osmišljen je kao dugoročna vrednost, kako za kvalitetan porodični život, tako i za sigurnu investiciju na tržištu nekretnina. U vremenu kada se grad ubrzano razvija, a ponuda novogradnje raste, Bulevar Residence se izdvaja kroz pažljivo odabranu lokaciju, proverene standarde gradnje i koncept koji odgovara stvarnim potrebama modernog života.

📍 Lokacija kao ključna prednost Jedan od najvažnijih faktora pri kupovini nekretnine jeste lokacija — a upravo tu Bulevar Residence pravi jasnu razliku. Projekat se nalazi na uglu Bosanske ulice i Bulevara kralja Aleksandra, jednog od najvažnijih urbanih pravaca u gradu. Ova pozicija omogućava izuzetnu povezanost sa centralnim gradskim zonama, ali i jednostavan pristup svim delovima grada. Istovremeno, sama mikrolokacija pruža mirnije okruženje, izdvojeno od gradske buke, što je retka kombinacija u urbanim sredinama. U neposrednoj blizini nalaze se svi sadržaji neophodni za svakodnevni život: osnovna škola – oko 300 m vrtić – oko 250–400 m prodavnice i marketi – 50–150 m stanice gradskog prevoza – oko 100 m Dom zdravlja Zvezdara – oko 1.200 m Aviv Park Zvezdara – oko 1.800 m Pored toga, projekat je odlično povezan i sa ključnim gradskim tačkama: Hram Svetog Save – oko 4.500 m centar grada (Trg republike) – oko 5.500 m

Ovakva pozicija omogućava optimalan balans između urbanog života i svakodnevnog komfora.

🏗️ Kvalitet gradnje i izbor materijala

Posebna pažnja u okviru projekta posvećena je kvalitetu izgradnje i izboru materijala, sa ciljem da se obezbedi dugotrajnost, energetska efikasnost i estetska vrednost objekta. Bulevar Residence karakterišu: antracit PVC stolarija visokih termo i zvučnih performansi savremena demit fasada u kombinaciji sa dekorativnom belgijskom ciglom

Tarkett parket, sa mogućnošću izbora dezena uvozna keramika prve klase, uz mogućnost izbora blindirana sigurnosna vrata sa kompletnom oblogom centralno grejanje Svi elementi projekta pažljivo su usklađeni kako bi pružili visok standard stanovanja i dugoročnu vrednost nekretnine.

🏢 Sigurnost kroz iskustvo investitora

Jedan od ključnih faktora poverenja prilikom kupovine nekretnine jeste sam investitor. Bulevar Residence realizuje investitor sa iskustvom i već uspešno završenim projektima, što omogućava potencijalnim kupcima da se lično uvere u kvalitet prethodnih objekata i standarde gradnje. Ova transparentnost dodatno doprinosi sigurnosti kupovine i smanjuje rizik.

🧠 Pametna investicija i dugoročna vrednost

Kupovina nekretnine u okviru projekta Bulevar Residence ne predstavlja samo rešavanje stambenog pitanja, već i ulaganje u stabilnu i dugoročnu vrednost. Zahvaljujući kombinaciji lokacije, kvaliteta izgradnje i ograničenog broja stambenih jedinica, ovaj projekat ima potencijal rasta vrednosti u vremenu. Pored toga, stanovi u ovakvim kompleksima predstavljaju atraktivnu opciju za izdavanje.

🏡 Životni koncept, ne samo prostor Bulevar Residence je osmišljen kao prostor koji prati savremeni način života — sa fokusom na funkcionalnost, komfor i svakodnevnu praktičnost. Stanovi su projektovani tako da obezbede maksimalnu iskorišćenost prostora, prirodno osvetljenje i fleksibilnost u organizaciji enterijera.

Zaključak

Bulevar Residence predstavlja pažljivo razvijen projekat koji objedinjuje sve ključne elemente kvalitetne nekretnine — lokaciju, gradnju, sigurnost i investicionu vrednost. Za one koji traže pouzdan dom ili sigurnu investiciju, ovaj projekat predstavlja izbor koji ima smisla danas — i vrednost koja traje u budućnosti.





Krediti OTP banke

OTP bank logo

Bez troškova obrade kredita
NKS 4.50% - EKS 5.74%
Period otplate 96 -360 meseca

Saznaj više

Prikazana rata odnosi se na maksimalni period otplate. Kalkulator je informativnog karaktera.

* Nakon isteka 5 godina, prelazi se na varijabilnu kamatnu stopu


Osiguranje domaćinstva online

Osiguraj svoje domaćinstvo u slučaju požara...