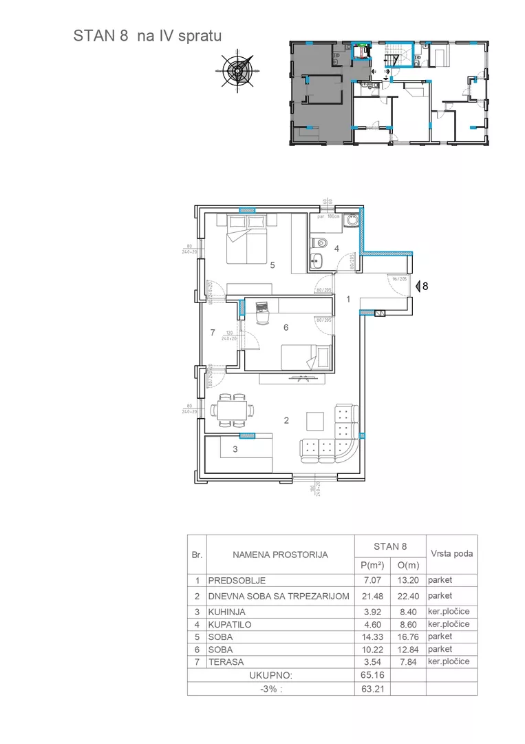
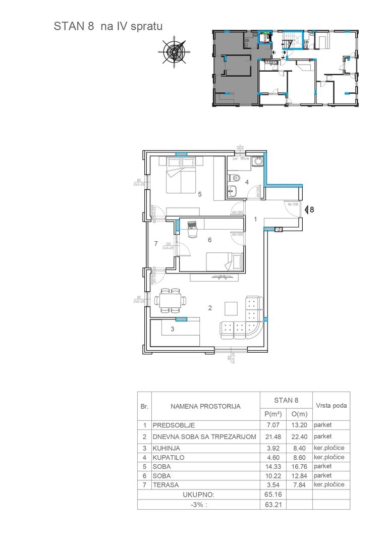
Jednoiposoban stan na prodaju, Novogradnja, Pantelej, 132750€, 63.21m²


od 132.750 €
2.100 € / m2
- Status izgradnje: U izgradnji
- Status prodaje: Na prodaju
- Etažno grejanje
- Energent: Struja
- Materijal gradnje: Termo blok
- Stolarija: PVC
- Podovi: Tarket
- Energetski pasoš: Da
- Prodaja parkinga: Dostupno
- 1 lift
- Kalorimetar: Da
- Godina izgradnje: 2027.
Ovaj oglas je deo projekta
Novogradnja na Panteleju

O projektu oglašivača Etagi Nekretnine
Na prodaju stan u kvalitetno gradjenoj zgradi pouzdanog investitora. Zgrada poseduje odličnu termo i zvučnu izolaciju, što obezbedjuje visok nivo komfora. Uz svaki stan ide i podrumska prostorija. Postoji i mogućnost kupovine parking mesta. Ova nekretnina je moguća i putem kredita postoji i povrat PDV-a. Završetak radova predvidjen je za jun 2027. godine.Etažno grejanje – individualna kontrola potrošnje i niži troškovi ✔️ Petokomorna PVC stolarija sa termo i zvučnom izolacijom ✔️ Kvalitetna termo i zvučna izolacija celog objekta i etažno grejanje ✔️ Prvoklasna keramika velikih dimenzija i parket ✔️ Video-nadzor i bezbedan ulaz u zgradu ✔️ Lift ✔️ Obezbeđen parking prostor ✔️ Moderna arhitektura i pažljivo birani materijali Više informacija o ovoj ponudi možete dobiti pozivom. Agencija ETAGI NEKRETNINE DOO je upisana u registar posrednika pod rednim brojem 2068.
Krediti OTP banke
Saznaj više
Prikazana rata odnosi se na maksimalni period otplate. Kalkulator je informativnog karaktera.
* Nakon isteka 5 godina, prelazi se na varijabilnu kamatnu stopu

