Poslovni prostor za izdavanje, Vršačka, 2.700€, 330m²





















2.700 €
- Opremljenost: Prazno - klima
- Oglas oglašava agencija pod reg. brojem 1596
- 1 parking mesto
Opis oglasa
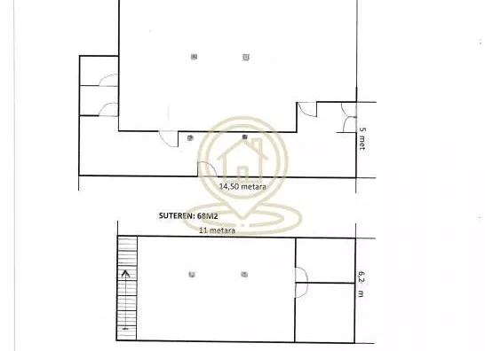
Izdaje se višenamenski poslovni prostor u Novom Sadu, ukupne površine 330m² (prizemlje 262m² + suteren 68m²).
Lokal je kompletno sređen, dvostrano orijentisan i poseduje velike staklene portale, što obezbeđuje odličnu vidljivost i prirodno osvetljenje. Visina plafona iznosi 3,8m, što dodatno doprinosi funkcionalnosti prostora.
Prostor je klimatizovan i pokriven video nadzorom, kako u prodajnom tako i u magacinskom delu. Ulaz u magacinski prostor omogućen je sa zadnje i bočne strane objekta.
Ispred lokala nalazi se veliki parking, a uz lokal dolaze i 2 parking mesta.
Zahvaljujući svojoj strukturi i poziciji, pogodan je za različite delatnosti kao što su marketi, prodavnice, restorani, ordinacije, kancelarije, call centri i slično.
Lokal se nalazi u blizini hotela i poslovno-stambenih kompleksa, što garantuje veliku frekvenciju ljudi i odličan poslovni potencijal.
Cena zakupa: 2700€
Depozit u visini jedne mesečne zakupnine
Useljivo od 01.06.
Agencijska provizija u skladu sa opštim uslovima poslovanja.
Kompas Nekretnine – vaš pouzdan partner u iznajmljivanju i rentiranju nekretnina.
*Sačuvaj oglas uz belešku i primaj obaveštenja o njihovom pojeftinjenju ili pojavljivanju sličnih
Prikaz poslovnog prostora na mapi
Parkovi u blizini
- Park Bistrica15 min
- Futoški park22 min
- Železnički park38 min

Obeležja kulture u blizini
- Jodna Banja6 min
- Galerija Matice srpske7 min
- Dvorac Eđšeg7 min

Škole/Fakulteti/Vrtići u blizini
- Osnovna škola (Osnovna škola Nikola Tesla)8 min
- Srednja škola (Gimnazija Laza Kostić)24 min
- Vrtić (Dečiji vrtić Pužić)2 min
- Fakultet (Protestantski teološki fakultet)8 min

- Bolnica (Specijalna bolnica za hemodijalizu Fresenius Medical Care FMC)5 min
- Klinika (Poliklinika Consilium)2 min
- Teretana (Teretana Alpha Gym)11 min
- Prodavnica (IDEA)4 min
- Restoran (Restoran Đurđević)3 min
- Kafana (Atos pub)9 min
- Taksi stajalište (Taxi prevoz Novi Sad)23 min
- Autobuska stanica (Futoški put - Vršačka)2 min
- Banka (NLB Komercijalna banka)6 min
- Pošta (Pošta Novi Sad 21107)11 min
Kontakt oglašivača
Krediti OTP banke
Period otplate
13 mesecimesečno
Period otplate 13 - 71 mesec
Saznaj više
