Lokal za izdavanje, Cara Dušana, 1.800€, 60m²
Beograd, Stari Grad opština, Dorćol
Prikaži mapuŠifra oglasa: 4zida-44150Oglas ažuriran: pre 15 sati






1.800 €
Lokal
60 m²
Prazno
- Prizemlje od ukupno 8 spratova
- Novo
- Oglas oglašava agencija pod reg. brojem 416
Opis oglasa
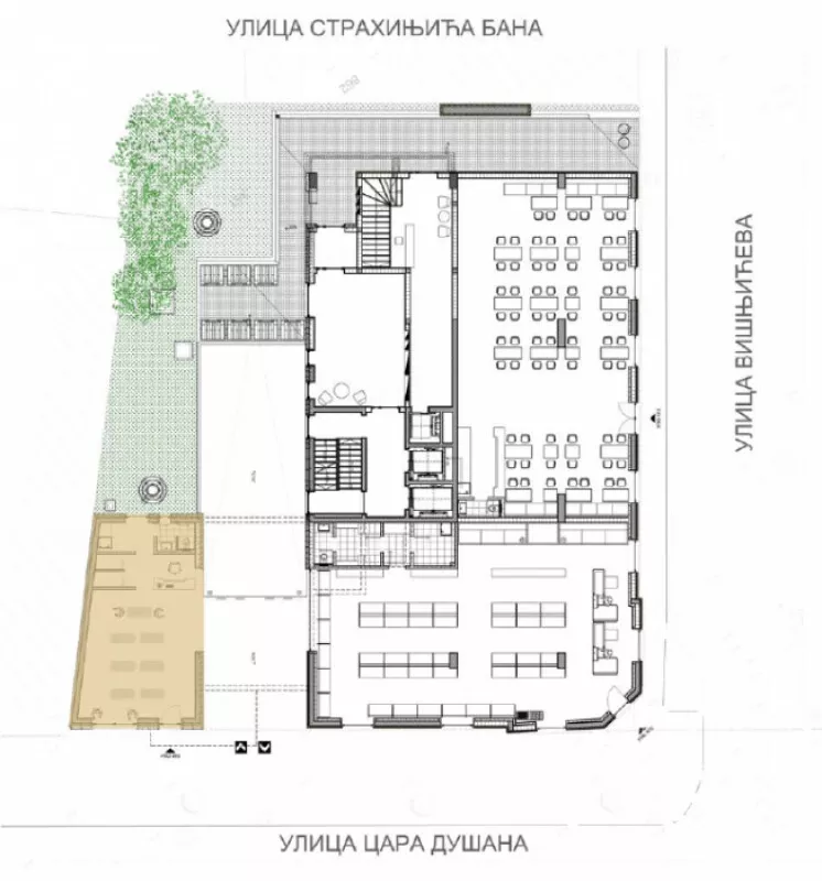
Odličan prodajni i izložbeni prostor koji se nalazi u prizemlju novoizgrađenog objekta Dorćol House. Sam objekat je spratnosti -3 + PR + 7 + PS. Površina prostora je 59,53 m2 u prizemlju i orijentisan je ka ulici Cara Dušana. Lokal se može lako brendirati prema zahtevima različitih delatnosti. Prostor je IV fazi izgradnje i zakupcu je omogućeno da samostalno prilagodi prostor svojoj nameni. ID oglasa: 44150.
*Sačuvaj oglas uz belešku i primaj obaveštenja o njihovom pojeftinjenju ili pojavljivanju sličnih
Prikaz poslovnog prostora na mapi
Parkovi u blizini
- Pančićev park5 min
- Univerzitetski park8 min
- Dečiji zabavni park11 min

Obeležja kulture u blizini
- Spomenik Čukur česma6 min
- Kuća Stevana Mokranjca7 min
- Kuća Nikole Pašića8 min

Škole/Fakulteti/Vrtići u blizini
- Osnovna škola (Osnovna škola Mihailo Petrović Alas)7 min
- Srednja škola (Tehnička škola Drvo art)5 min
- Vrtić (Dečiji vrtić M&M Elefantino)6 min
- Fakultet (Univerzitet Nikola Tesla)4 min

Zdravlje
- Bolnica (Specijalna bolnica Sveti vid)6 min
- Klinika (Poliklinika Aarona Medical B)4 min
- Teretana (Magic Wand Fitness)1 min
Hrana i piće
- Prodavnica (Super Diskont)2 min
- Restoran (Restoran Car)1 min
- Kafana (Krafter Bar)3 min
Prevoz
- Taksi stajalište (Taxi stanica)6 min
- Autobuska stanica (Dušanova)7 min
- Tramvajska stanica (Dorćol /Kneginje Ljubice/)3 min
- Trolejbuska stanica (Studentski trg)8 min
Ostale ustanove
- Banka (NLB Komercijalna banka)3 min
- Pošta (Pošta Beograd 10)7 min
Kontakt oglašivača
▾Reklama▾
Keš krediti
RSDIznos kredita
Period otplate
13 meseci- Period otplate od 13 -71 mesec
- NKS 10.55%
- EKS od 10.87%
- Za klijente banke
od 12.261 RSD
mesečno
Saznaj višemesečno
