Jednoiposoban stan na prodaju, Vrdnik, 85.170€, 46m²












85.170 €
1.852 € / m2
- Stan u zgradi
- Grejanje na gas
- Novo
- Prostorije: terasa
- Opremljenost: Prazno - internet, interfon, klima, kanalizacija
- Oglas oglašava agencija pod reg. brojem 1767
- 1 parking mesto
- 1 lift
- Kanalizacija
- Godina izgradnje: 2025.
- Kablovska
- 1 telefonska linija
Opis oglasa
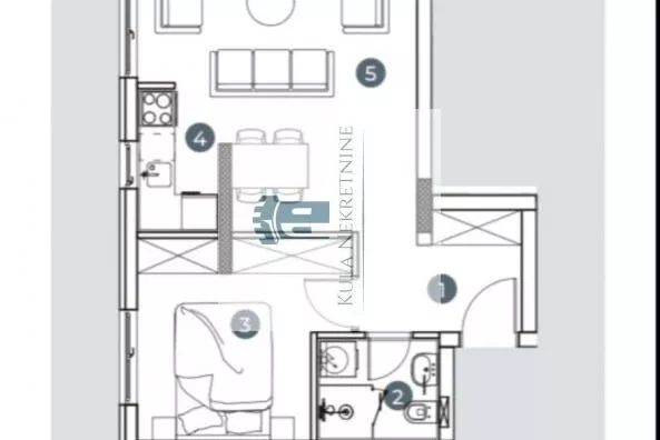
Predstavljamo vam jednoiposoban stan u novogradnji, u centru Vrdnika.
Strukturu stana čine predsoblje, prostran dnevni boravak sa izlazom na terasu, kuhinja, kupatilo i spavaća soba.
Nekretnina se nalazi na trećem spratu u zgradi sa liftom.
Važno je napomenuti da će oko kompleksa biti slobodnih parking mesta, kao i to da su mesečni troškovi niski, jer se grejanje plaća po utrošku.
Agencijska provizija je uračunata u cenu.
Za više informacija slobodno pozovite 063... (prikaži broj telefona) Kula nekretnine
*Sačuvaj oglas uz belešku i primaj obaveštenja o njihovom pojeftinjenju ili pojavljivanju sličnih
Prikaz stana na mapi
Parkovi u blizini
- Park Vrdnik16 min
- Dečije igralište23 min

Obeležja kulture u blizini
- Spomenik Milici Stojadinović Srpkinji6 min
- Vrdnička kula15 min
- Spomenik palim borcima NOB-a18 min

Škole/Fakulteti/Vrtići u blizini
- Osnovna škola (Osnovna škola Milica Stojadinović Srpkinja)5 min
- Srednja škola (Srednja škola Borislav Mihajlović Mihiz)17 min
- Vrtić (Dečiji vrtić Mala škola)26 min
- Fakultet (Educons Univerzitet)28 min

- Bolnica (Specijalna bolnica za rehabilitaciju Termal Vrdnik)9 min
- Klinika (Poliklinika Nedić)20 min
- Teretana (Joga Yogaja Studio)30 min
- Prodavnica (Expeto market)9 min
- Restoran (Etno kuća Kod tašte - restoran i prenoćište)18 min
- Kafana (Red Baron pub)12 min
- Taksi stajalište (Taxi stanica)11 min
- Autobuska stanica (Vrdnik (Železnička Stanica) - Okretnica)11 min
- Banka (OTP banka)17 min
- Pošta (Pošta Vrdnik)5 min
Kontakt oglašivača
Krediti OTP banke
Saznaj više
Prikazana rata odnosi se na maksimalni period otplate. Kalkulator je informativnog karaktera.
* Nakon isteka 5 godina, prelazi se na varijabilnu kamatnu stopu


