Trosoban stan na prodaju, Vračar, 315.000€, 84m²


















315.000 €
3.750 € / m2
- Novo
- Prostorije: kupatila (2)
- Opremljenost: interfon, klima
- Oglas oglašava agencija pod reg. brojem 2027
- 1 garažno mesto
- 1 lift
- Godina izgradnje: 2027.
- Zgrada poseduje: lođa
Opis oglasa
Postoje stanovi koji su samo raspored prostorija.
A postoje stanovi koji se projektuju sa idejom kako ćete u njima živeti.
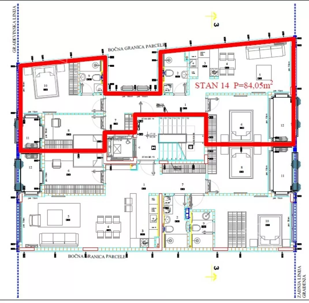
U okviru GV19 Residence, na četvrtom spratu, nalazi se stan površine 84,05 m², osmišljen za porodicu koja želi jasno definisan komfor, privatnost i dugoročnu vrednost.
Ulaskom u stan dočekuje vas prostrana dnevna zona – dnevni boravak povezan sa trpezarijom i kuhinjom, prostor namenjen okupljanju, razgovorima i svakodnevnim ritualima. Dovoljno svetla, dovoljno širine, dovoljno mesta da dom zaista diše.
Noćna zona je pažljivo izdvojena.
Master spavaća soba pruža intimu i mir, dok dodatne dve spavaće sobe ostavljaju mogućnost fleksibilnosti – dečije sobe, radni prostor ili gostinska soba. Stan je koncipiran tako da prati faze vašeg života.
Površina od 84,05 m² iskorišćena je racionalno, bez suvišnih prolaza i izgubljenih kvadrata. Svaki deo ima svoju svrhu.
Zgrada poseduje lift i dva nivoa garažnih parking mesta, što na Vračaru predstavlja ozbiljnu dodatnu vrednost i komfor u svakodnevici.
Planirano useljenje je 2027. godine, što vam daje vreme da planirate, organizujete i investirate strateški. Kupovina je direktno od investitora, bez agencijske provizije za kupce.
Cena iznosi 3.700 € / m² + PDV.
Ovo nije samo trosoban stan.
Ovo je prostor koji može postati vaša dugoročna adresa, mesto stabilnosti i investicija koja zadržava vrednost.
Za tlocrt, dinamiku plaćanja i dodatne informacije, zakažite prezentaciju.
*Sačuvaj oglas uz belešku i primaj obaveštenja o njihovom pojeftinjenju ili pojavljivanju sličnih
Prikaz stana na mapi
Parkovi u blizini
- Karađorđev park3 min
- Svetosavski plato7 min
- Park mira Jelena Šantić7 min

Obeležja kulture u blizini
- Spomenik Internacionalnim brigadama2 min
- Spomenik žrtvama bombardovanja Beograda2 min
- Spomenik Lamartinu2 min

Škole/Fakulteti/Vrtići u blizini
- Osnovna škola (Privatna osnovna škola Vladislav Petković Dis)5 min
- Srednja škola (Prva škola integrativne medicine Alvita Plus)4 min
- Vrtić (Dečiji vrtić Beli zeka)3 min
- Fakultet (Univerzitet u Beogradu Stomatološki fakultet)2 min

- Bolnica (Specijalna bolnica za dermatovenerologiju Ioanna)3 min
- Klinika (Poliklinika Jatros)2 min
- Teretana (Apurva Body Studio)3 min
- Prodavnica (Trafika)manje od 1 min
- Restoran (Restoran The View Rooftop)manje od 1 min
- Kafana (Tatar Bar)4 min
- Taksi stajalište (Taxi stanica)6 min
- Autobuska stanica (Franše d'Eperea)6 min
- Tramvajska stanica (Karađorđev Park)7 min
- Trolejbuska stanica (Mačvanska)11 min
- Banka (Banca Intesa)10 min
- Pošta (Pošta Beograd 20)4 min
Kontakt oglašivača
Krediti OTP banke
Saznaj više
Prikazana rata odnosi se na maksimalni period otplate. Kalkulator je informativnog karaktera.
* Nakon isteka 5 godina, prelazi se na varijabilnu kamatnu stopu


