Trosoban stan na prodaju, Nikolaja Hartviga, 351.042€, 86m²






351.042 €
4.082 € / m2
- Stan u zgradi
- Centralno grejanje
- Luksuzno
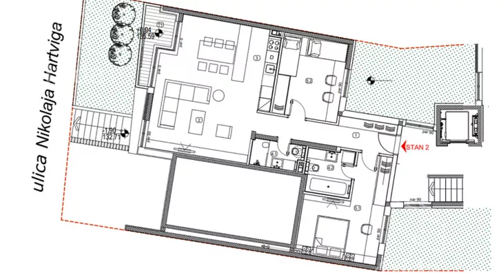
- Prostorije: kupatilo, toalet, kuhinja, ostava, terasa
- Opremljenost: Prazno - klima
- Uknjiženo
- Oglas oglašava agencija pod reg. brojem 1299
- 1 garažno mesto, garaža u sklopu zgrade
- 1 parking mesto
- 1 lift
- Godina izgradnje: 2025.
Opis oglasa
Predstavljamo vam modernu i luksuznu zgradu u ulici Nikolaja Hartviga, smeštenu u jednom od najboljih rezidencijalnih delova Beograda na Vračaru. Zgrada je savršena kombinacija moderne arhitekture, udobnosti i prestižne lokacije i pružiće vam sve što je potrebno za kvalitetan i udoban život. Nalazi se u mirnom kraju Beograda, na samo 200 m od Čuburskog parka i 600 m od Hrama Svetog Save. Udaljena je 1 km od autoputa, što omogućava odličnu povezanost sa Novim Beogradom. Uživajte u modernom životu sa pametnim kućnim sistemom koji vam omogućava kontrolu rasvete, klima uređaja i spoljašnjih roletni putem mobilne aplikacije. Pored mogućnosti kupovine garažnog prostora, zgrada nudi i dodatne ostavinske prostore, pružajući vam više mesta za skladištenje i odlaganje.
Postoji mogućnost kupovine Garažnog mesto cena je sa PDV 42.000e i Parking mehanizmom 36.000e.
Za dodatne informacije slobodno nam se obratite. Završetak radova predvidjen je za kraj 2026. godine.
Представляем вам современное и роскошное здание на улице Николая Хартвига, расположенное в одном из лучших жилых районов Белграда — Врачаре. Здание представляет собой идеальное сочетание современной архитектуры, комфорта и престижного месторасположения и предоставит вам все необходимое для качественной и комфортной жизни. Он расположен в тихой части Белграда, всего в 200 метрах от Чубурского парка и в 600 метрах от храма Святого Саввы. Расстояние до автомагистрали составляет 1 км, что обеспечивает отличное сообщение с Новым Белградом. Наслаждайтесь современной жизнью с системой «умный дом», которая позволяет управлять освещением, кондиционированием воздуха и внешними жалюзи через мобильное приложение. Помимо возможности приобрести гаражное место, в здании также имеются дополнительные складские помещения, что дает вам больше места для хранения и складских помещений. Не стесняйтесь обращаться к нам за дополнительной информацией. Завершение работ запланировано на конец 2026 года.
We present to you a modern and luxurious building in Nikolaja Hartwig Street, located in one of the best residential areas of Belgrade, Vračar. The building is a perfect combination of modern architecture, comfort and prestigious location and will provide you with everything you need for a quality and comfortable life. It is located in a quiet part of Belgrade, just 200 m from Čuburski Park and 600 m from the Temple of Saint Sava. It is 1 km away from the highway, which allows for excellent connections with New Belgrade. Enjoy modern life with a smart home system that allows you to control lighting, air conditioning and external blinds via a mobile app. In addition to the option to purchase garage space, the building also offers additional storage space, giving you more storage and storage space. Feel free to contact us for additional information. Completion of the works is planned for the end of 2026.
*Sačuvaj oglas uz belešku i primaj obaveštenja o njihovom pojeftinjenju ili pojavljivanju sličnih
Prikaz stana na mapi
Parkovi u blizini
- Čuburski park4 min
- Park mira Jelena Šantić8 min
- Park vojvode Petra Bojovića10 min

Obeležja kulture u blizini
- Spomenik Petru Kočiću5 min
- Osnovna škola Kralj Petar II Karađorđević5 min
- Čuburska avlija iznad potoka 1928.4 min

Škole/Fakulteti/Vrtići u blizini
- Osnovna škola (Privatna osnovna škola Vladislav Petković Dis)7 min
- Srednja škola (Gimnazija Vladislav Petković Dis)7 min
- Vrtić (Dečiji vrtić Naš vrtić)5 min
- Fakultet (Univerzitet u Beogradu Stomatološki fakultet)6 min

- Bolnica (Specijalna bolnica za dermatovenerologiju Ioanna)10 min
- Klinika (Poliklinika Labodijagnostika)5 min
- Teretana (Fitnes lanac samo za žene: 30)7 min
- Prodavnica (Soulfood market)1 min
- Restoran (Restoran Stara Srbija)2 min
- Kafana (Kafana Gradimir)9 min
- Taksi stajalište (Taxi stanica)5 min
- Autobuska stanica (Pijaca „Kalenić“)5 min
- Tramvajska stanica (Karađorđev Park)16 min
- Trolejbuska stanica (Vojvode Dragomira)6 min
- Banka (OTP banka)6 min
- Pošta (Pošta Beograd 32)5 min
Kontakt oglašivača
Krediti OTP banke
Saznaj više
Prikazana rata odnosi se na maksimalni period otplate. Kalkulator je informativnog karaktera.
* Nakon isteka 5 godina, prelazi se na varijabilnu kamatnu stopu


