Šestosoban stan na prodaju, Kostolačka, 390.000€, 207m²














































390.000 €
1.884 € / m2
- Stan u zgradi
- Etažno grejanje
- Oglas oglašava agencija pod reg. brojem 1000
- 1 garažno mesto
- Godina izgradnje: 1962.
Opis oglasa
Voždovačka crkva - Kostolačka
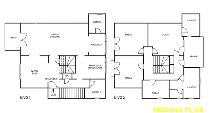
6.0, 207m2(terasa 18m2), 1+Pk,
U mirnoj ulici, dvoetažni stan sa sopstvenim ulazom, u stambenom objektu sa ukupno 3 stana.
sa korišćenjem pripadajućeg dela dvorišta i garažom.
II sprat: dnevno-trpezarijski deo od oko 60m2 sa kaminom i bibliotekom kao I izlazom na terasu ka ulici, kuhinja, kupatilo sa ležećom kadom, prostorija za vešeraj i dve ostave . Mogućnost formiranja spavaće sobe od biblioteke za dobijanje
III sprat: četiri spavaće sobe od kojih jedna sa sopstvenim kupatilom i
izlazom na veliku natkrivenu terasu, posebno kupatilo sa Jakuzi kadom,
saunom I tuš kabinom. Dve spavaće sobe sa ulice imaju svaka svoju terasu.
Dvorište ograđeno, popločano, sa pomoćnim prostorijama i prostorom za garden parti,
Garaža : na ulazu u objakat
Ostava u prizemlju objekta ka dvorištu sa mokrim čvorom.
Stan se prodaje sa svim ugradnim plakarima i kompletnom kuhinjom, dvostrano orijentisan, veoma svetao sa lepim pogledom ka istoku.
Grejanje etažno u kombinaciji kotla na struju i kamina.
Ceo prostor je urađen sa izuzetno kvalitetnim materijalima.
Stan je uknjižen bez površine. Po rešenju o ozakonjenju povrišina stana je 207 m2
Agent: Aleksandra Vojinović: 064... (prikaži broj telefona)
Agencijska provizija je 2% i uključuje:
- pokazivanje nekretnine i informacije vezane za mikrolokaciju
- pravnu sigurnost uz tim advokata pri izradi Predugovora i Ugovora, overu kod Javnog beležnika (troškove overe kod notara plaća kupac)
- odjavu prodavca - prijavu kupca (porez na prenos apsolutnih prava i porez na imovinu, infostan, struja, telefon, kablovska)
*Sačuvaj oglas uz belešku i primaj obaveštenja o njihovom pojeftinjenju ili pojavljivanju sličnih
Prikaz stana na mapi
Parkovi u blizini
- Park Jove Ilića6 min
- Bajronov park11 min
- Banjička šuma13 min

Obeležja kulture u blizini
- Spomenik Franše Depereu9 min
- Kuća Flašar11 min
- Spomenik oslobodilaca Beograda 1806. godine11 min

Škole/Fakulteti/Vrtići u blizini
- Osnovna škola (Osnovna škola Veselin Masleša)5 min
- Srednja škola (Geološka i hidrometeorološka škola Milutin Milanković)14 min
- Vrtić (Dečiji vrtić Žikica Jovanović)1 min
- Fakultet (Fakultet za projektni i inovacioni menadžment)5 min

- Bolnica (Bel Medic Opšta bolnica)7 min
- Klinika (Poliklinika Voždmedik)5 min
- Teretana (Ninas Fitness Team)7 min
- Prodavnica (Aroma market)2 min
- Restoran (Restoran Piano Loco)3 min
- Kafana (Robin Hood Pub)15 min
- Taksi stajalište (Taxi stanica)7 min
- Autobuska stanica (Fakultet Organizacionih Nauka)6 min
- Tramvajska stanica (Petrovačka)3 min
- Trolejbuska stanica (Vojnomedicinska akademija)22 min
- Banka (Banca Intesa)12 min
- Pošta (Pošta Beograd 9)8 min
Kontakt oglašivača
Krediti OTP banke
Saznaj više
Prikazana rata odnosi se na maksimalni period otplate. Kalkulator je informativnog karaktera.
* Nakon isteka 5 godina, prelazi se na varijabilnu kamatnu stopu






















