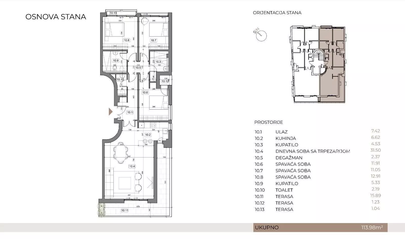
Četvorosoban stan na prodaju, Milovana Marinkovića, 625.000€, 117m²






















































625.000 €
5.342 € / m2
- Grejanje na toplotnu pumpu
- Novo
- Prostorije: ostava, terasa
- Opremljenost: Namešteno - interfon, klima
- Orijentacija ka: jugozapad, severoistok
- Uknjiženo
- Oglas oglašava agencija pod reg. brojem 331
- 1 lift
- Zgrada poseduje: video nadzor
Opis oglasa
Izvanredan, kompletno opremljen četvorosoban stan, dvostrano orijentisan, u ulici Milovana Marinkovića, u kraju popularnom pod nazivom- Voždovačko Dedinje.
Spoljna stolarija je aluminijum, troslojni paket sa nisko emisionim staklom punjenim argonom, hromirane ručke Nore – nemačke, elektro podizači roletni. Fasada je kombinacija demit i ventilisane fasade, obložena kamenom i kompozitnim materijalima.
Ugrađena zasebna jedinica toplotne pumpe za hlađenje za svaku stambenu jedinicu sa protokom vazduha preko plafonskih kanalica. Kotao je skriven u tehničkom prostoru.
Hrastov višeslojni parket, italijanska i španska keramika I klase velikog formata. Sanitarija u kupatilu : Hansgrohe, Duravit, Villeroy Boch. Sva tehnika u stanu je renomiranog brenda Miele.
Sobna vrata od farbanog medijapana, visine 230 cm, video nadzor, protivpožarni sistemi...
Kompletna prateća tehnička dokumentacija, mogućnost kupovine preko kredita. Uknjižen.
Stan nikada nije useljavan!
*Sačuvaj oglas uz belešku i primaj obaveštenja o njihovom pojeftinjenju ili pojavljivanju sličnih
Prikaz stana na mapi
Parkovi u blizini
- Bajronov park4 min
- Park Jove Ilića16 min
- Park Rozali Morton19 min

Obeležja kulture u blizini
- Spomenik Franše Depereu6 min
- Kuća Flašar8 min
- Spomenik heroju Milanu Tepiću8 min

Škole/Fakulteti/Vrtići u blizini
- Osnovna škola (Osnovna škola Karađorđe)6 min
- Srednja škola (Dvanaesta beogradska gimnazija)6 min
- Vrtić (Dečiji vrtić Moj Montessori)3 min
- Fakultet (Fakultet za projektni i inovacioni menadžment)8 min

- Bolnica (Bel Medic Opšta bolnica)7 min
- Klinika (Poliklinika Rea Medika)manje od 1 min
- Teretana (Fitness club M)5 min
- Prodavnica (IDEA)5 min
- Restoran (Restoran Steak & Wine Bar)6 min
- Kafana (Robin Hood Pub)6 min
- Taksi stajalište (Taxi stanica)10 min
- Autobuska stanica (Veljka Lukića Kurjaka)5 min
- Tramvajska stanica (Kralja Vladimira)5 min
- Trolejbuska stanica (Stadion „Partizan“)18 min
- Banka (UniCredit Bank)4 min
- Pošta (Pošta Beograd 9)8 min
Kontakt oglašivača

Krediti OTP banke
Saznaj više
Prikazana rata odnosi se na maksimalni period otplate. Kalkulator je informativnog karaktera.
* Nakon isteka 5 godina, prelazi se na varijabilnu kamatnu stopu

